Россия, Москва, Ходынский бул., 20А
163 392 000 Р 2 120 500 $ или 1 794 600

Информация о помещении и здании

12
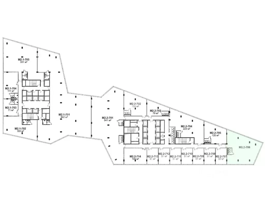
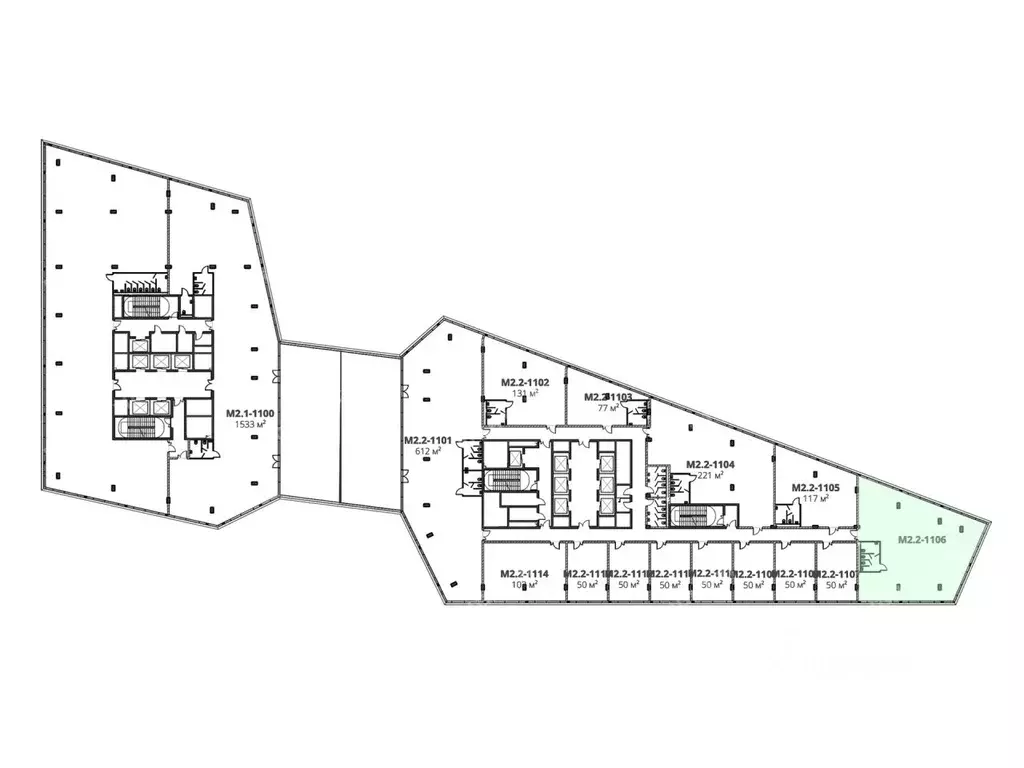
Этаж
14
Этажность
Развернуть
Агент
+7 (980) 470-75-47
Начать чат с агентом

Офис в Москва Ходынский бул., 20А (255 м)

На продажу предлагается офисное помещение 255,3 кв.м наабочих мест с высококачественной отделкой в МФК ЛАЙНЕР ЗАПАД, в комфортной доступности от м.ЦСКА (3 минуты пешком), в непосредственной близости от ТРЦ Авиапарк. Офис готов к въезду. Мебель обсуждается дополнительно.Помещение состоит из восьми апартаментов, имеющих отдельные кадастровые номера. Каждый из апартаментов может использоваться как офис, так и для проживания. Объект продаётся целиком и представляет интерес и для корпоративного сектора под размещение офиса собственной компании, и для инвесторов под стратегию последующей сдачи в аренду и/или продажи отдельных апартаментов под жилое назначение. В каждый апартамент заведены сантехнические коммуникации (вода, канализация). В текущем состоянии помещения используются под офис, оборудован отдельный санузел на 3 кабинки + индивидуальный санузел расположен в кабинете руководителя. В остальных лотах вся площадь полезная офисная. В каждом апартаменте большая площадь остекления + есть лоджия с открывающимися окнами.ВАЖНО: Конституционный суд 03.02.2026г. разрешил временную регистрацию в апартаментах. Теперь в апартаментах собственник может зарегистрировать себя и родственников на срок от 90 дней до 5 лет, что расширяет права собственников, делая для них доступными городские объекты социальной инфраструктуры по месту регистрации: детские сады, школы, поликлиники. Паркинг: подземный в Лайнер Запад (482 м/места) можно арендовать при наличии мест + в ТЦ Авиапарк (5000 м/мест) с удобными тарифами и невысокими ценами.Развитая инфраструктура комплекса и района: бизнес, спорт, магазины, рестораны, детсады, школы, ВУЗы, мед.учреждения.Парки Ходынское поле, Берёзовая роща и Чапаевский в пешей доступности.Запоминающая архитектура. Комплекс ЛАЙНЕР состоит из двух корпусов Запад и Восток, проект комплекса разработан под руководством архитектора с мировым именем Хади Тегерани и выполнен в современном урбанистическом стиле: стильная цветовая гамма, панорамное остекление, закрытый двор без машин, переменная этажность.

Читать полностью
    Позвонить Написать
    163 392 000 Р2 120 500 $ или 1 794 600
    Агент
    +7 (980) 470-75-47
    Начать чат с агентом
    Похожие предложения
    Бизнес-центр на западе Москвы - Фото 1
    Бизнес-центр на западе Москвы - Фото 2
    Бизнес-центр на западе Москвы - Фото 3
    Бизнес-центр на западе Москвы - Фото 4
    Бизнес-центр на западе Москвы - Фото 5
    Бизнес-центр на западе Москвы - Фото 6
    Бизнес-центр на западе Москвы - Фото 7
    Бизнес-центр на западе Москвы - Фото 8
    Бизнес-центр на западе Москвы - Фото 9
    Бизнес-центр на западе Москвы - Фото 10
    Бизнес-центр на западе Москвы - Фото 11
    Бизнес-центр на западе Москвы - Фото 12
    реализуемая площадь 318.8м², 8-й этаж, всего 40 этажей, открытая планировка

    Предложение от застройщика. Старт продаж нового бизнес-центра класса «А» в минуте от метро Молодёжная. МУЛЬТИОФИС Концепция мультиофиса позволит эффективно разделить операционные процессы в рамках одного бизнес-центра. - Фронт-офис: Разместите подразделения,...
    • 318.8 м²
    • A
    • 8/40 эт.
    165 803 002 Р
    Агент
    +7 (495) Показать номер
    Посмотреть контакты
    Офис в Москва ул. Бутырский Вал, 68/70С1 (425 м) - Фото 1
    Офис в Москва ул. Бутырский Вал, 68/70С1 (425 м) - Фото 2
    5-й этаж, всего 5 этажей

    1108318 . Предлагаем офисное помещение площадью 424,8 кв. м, расположенное на 5 этаже бизнес-центра Бэйкер Плаза Преимущества объекта:- Бизнес-центр класса В+- Шаговая доступность от станции метро Савёловская (10 минут пешком)- Этаж: 5- Помещение предлагается...
    • 5/5 эт.
    169 920 000 Р
    Агент
    +7 (938) Показать номер
    Посмотреть контакты
    Офис в Москва Барклая ул., 6С5 (412 м) - Фото 1
    Офис в Москва Барклая ул., 6С5 (412 м) - Фото 2
    6-й этаж, всего 8 этажей

    Продаём Офис в бизнес-центре Барклай Плаза 2 по адресу: Москва, улица Барклая, 6с5. Рабочих мест: от 52 до 91*.Площадь: 412 м2.Планировка: смешанная.Состояние: готово к въезду.Цена за м2:Стоимость:Налог: УСН.Собственник: физ. лицо.Этаж: 3, 6 из 8.Охрана:...
    • 6/8 эт.
    167 000 000 Р
    Агент
    +7 (985) Показать номер
    Посмотреть контакты
    Офис в Москва ул. Нижние Мневники, 37Ас3 (242 м) - Фото 1
    Офис в Москва ул. Нижние Мневники, 37Ас3 (242 м) - Фото 2
    7-й этаж, всего 18 этажей

    Офисное помещение 242.2 кв. м в бизнес-центре STONE Мневники . Прямая продажа, без комиссии. Объект на стадии активного строительства, готовность ко въезду уточняется по запросу. Округ: Северо-Западный (СЗАО). Район: Хорошево-Мневники. Характеристики:-...
    • 7/18 эт.
    153 312 600 Р
    Агент
    +7 (915) Показать номер
    Посмотреть контакты
    Офис в Москва ул. Нижние Мневники, 37Ас3 (242 м) - Фото 1
    Офис в Москва ул. Нижние Мневники, 37Ас3 (242 м) - Фото 2
    11-й этаж, всего 18 этажей

    Офисное помещение 242.2 кв. м в бизнес-центре STONE Мневники . Прямая продажа, без комиссии. Объект на стадии активного строительства, готовность ко въезду уточняется по запросу. Округ: Северо-Западный (СЗАО). Район: Хорошево-Мневники. Характеристики:-...
    • 11/18 эт.
    158 156 600 Р
    Агент
    +7 (915) Показать номер
    Посмотреть контакты

    Не нашли подходящего объявления?

    Оставьте заявку, и наши риэлторы подберут офис в районе Москвы

    (0)