Россия, Москва, ул. Большая Молчановка, 12С1
184 455 000 Р 2 390 100 $ или 2 033 000

Информация о помещении и здании

5
Этаж
5
Этажность
Развернуть
Агент
+7 (989) 048-35-61
Начать чат с агентом

Офис в Москва ул. Большая Молчановка, 12С1 (410 м)

Продается помещение на 5 этаже в административном здании В класса, которое находится по адресу: ул. Большая Молчановка, д. 12, стр. 1. Без комиссии для Арендатора ЛОКАЦИЯ: Шаговая доступность от станций метро Арбатская, Александровский сад. Удобный выезд на улицу Новый Арбат, Никитский бульвар, Садовое кольцо.ПОМЕЩЕНИЕ: В помещении выполнена офисная отделка, смешанная планировка. Естественная вентиляция, кондиционирование - сплит-системы. В наличии наземная парковка. Условия сделки и стоимость подлежат обсуждению.Звоните, отвечаем по будням с 09:00 до 18:00, а в другое время передадим Ваш контакт нашему менеджеру

Читать полностью
    Позвонить Написать
    184 455 000 Р2 390 100 $ или 2 033 000
    Агент
    +7 (989) 048-35-61
    Начать чат с агентом
    Похожие предложения
    Офис (129 м) - Фото 1
    Офис (129 м) - Фото 2
    1-й этаж, всего 5 этажей

    Продажа офиса 129 кв.м на 1 этаже в жилом доме «Леонтьевский переулок, 11 по адресу Москва, Леонтьевский переулок, 11.Помещение с отделкойПланировка смешаннаяВход отдельный со двораНазначение: ОфисЦена за кв.м:Цена за офис:Форма сделки: ДКПНалог: УСНИнформация...
    • 1/5 эт.
    174 924 000 Р
    Агент
    +7 (984) Показать номер
    Посмотреть контакты
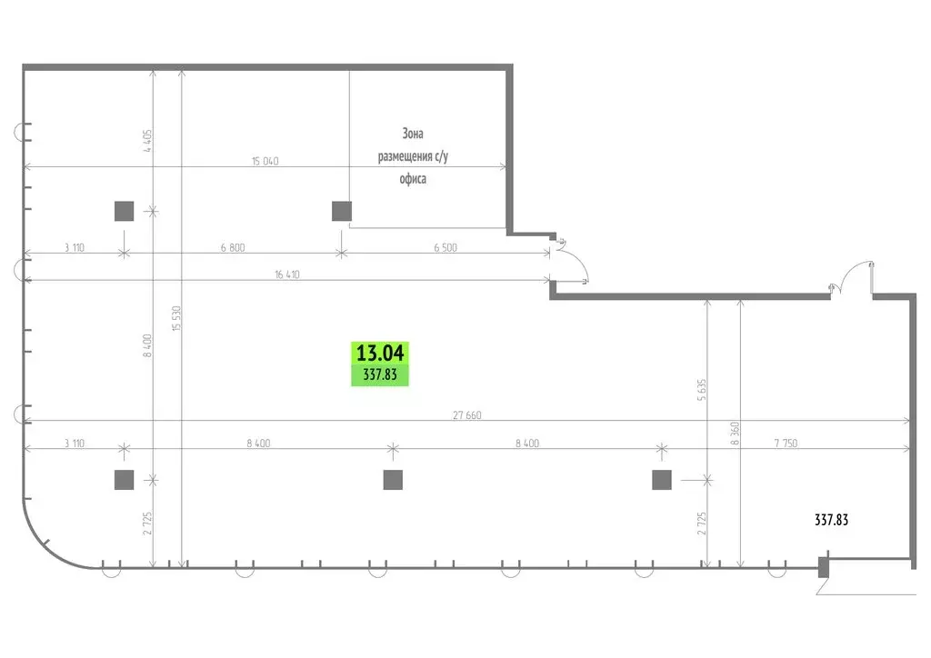
    Офис (337.83 м) - Фото 1
    Офис (337.83 м) - Фото 2
    13-й этаж, всего 18 этажей

    Продается офис на 13 этаже, площадью 337.83 м Upside Ямская — бизнес центр класса«А у ТТК в динамично развивающейся локации Москвы. Проект объединяет центральную локацию с атмосферой приватности, выразительную архитектуру и гибкую офисную планировку....
    • 13/18 эт.
    180 097 168 Р
    Агент
    +7 (985) Показать номер
    Посмотреть контакты
    Продажа офиса, м. Деловой центр, Пресненская наб - Фото 1
    Продажа офиса, м. Деловой центр, Пресненская наб - Фото 2
    Продажа офиса, м. Деловой центр, Пресненская наб - Фото 3
    Продажа офиса, м. Деловой центр, Пресненская наб - Фото 4
    Продажа офиса, м. Деловой центр, Пресненская наб - Фото 5
    Продажа офиса, м. Деловой центр, Пресненская наб - Фото 6
    Продажа офиса, м. Деловой центр, Пресненская наб - Фото 7
    Продажа офиса, м. Деловой центр, Пресненская наб - Фото 8
    общая площадь офисного здания 213м², реализуемая площадь 213м², 50-й этаж, всего 64 этажа

    Продажа представительского офисного помещения площадью 213 м2, расположенного на 50 этаже, в Башне Федерация Запад. Выполнен качественный ремонт. Офис светлый - благодаря наличию большого количества панорамных окон. Планировка смешанная – кабинет руководителя,...
    • 213 м²
    • 50/64 эт.
    175 000 000 Р
    Агент
    +7 (903) Показать номер
    Посмотреть контакты
    Продажа офиса, м. Деловой центр, Пресненская наб - Фото 1
    Продажа офиса, м. Деловой центр, Пресненская наб - Фото 2
    Продажа офиса, м. Деловой центр, Пресненская наб - Фото 3
    Продажа офиса, м. Деловой центр, Пресненская наб - Фото 4
    Продажа офиса, м. Деловой центр, Пресненская наб - Фото 5
    Продажа офиса, м. Деловой центр, Пресненская наб - Фото 6
    Продажа офиса, м. Деловой центр, Пресненская наб - Фото 7
    Продажа офиса, м. Деловой центр, Пресненская наб - Фото 8
    Продажа офиса, м. Деловой центр, Пресненская наб - Фото 9
    Продажа офиса, м. Деловой центр, Пресненская наб - Фото 10
    Продажа офиса, м. Деловой центр, Пресненская наб - Фото 11
    Продажа офиса, м. Деловой центр, Пресненская наб - Фото 12
    общая площадь офисного здания 197.3м², реализуемая площадь 197.3м², 40-й этаж, всего 60 этажей

    Продажа офисного помещения в Башне Империя с ремонтом. Помещение расположено на 40 этаже, площадь офиса 197,3 м2. Офис видовой, с высококачественным ремонтом, полностью оборудован всей необходимой мебелью. Панорамные окна открывают красивые виды на Москву....
    • 197.3 м²
    • 40/60 эт.
    171 651 000 Р
    Агент
    +7 (903) Показать номер
    Посмотреть контакты
    Продажа офиса, м. Белорусская, 1-я Ямского Поля ул - Фото 1
    Продажа офиса, м. Белорусская, 1-я Ямского Поля ул - Фото 2
    Продажа офиса, м. Белорусская, 1-я Ямского Поля ул - Фото 3
    Продажа офиса, м. Белорусская, 1-я Ямского Поля ул - Фото 4
    Продажа офиса, м. Белорусская, 1-я Ямского Поля ул - Фото 5
    Продажа офиса, м. Белорусская, 1-я Ямского Поля ул - Фото 6
    Продажа офиса, м. Белорусская, 1-я Ямского Поля ул - Фото 7
    Продажа офиса, м. Белорусская, 1-я Ямского Поля ул - Фото 8
    Продажа офиса, м. Белорусская, 1-я Ямского Поля ул - Фото 9
    Продажа офиса, м. Белорусская, 1-я Ямского Поля ул - Фото 10
    Продажа офиса, м. Белорусская, 1-я Ямского Поля ул - Фото 11
    Продажа офиса, м. Белорусская, 1-я Ямского Поля ул - Фото 12
    общая площадь офисного здания 268.4м², реализуемая площадь 268.4м², 6-й этаж, всего 48 этажей

    Рассрочка 0%. Офисное помещение площадью 268,37 масположено на 6-м этаже в офисной башне BELL (класса Прайм). БЦ возводится рядом с метро Белорусская (5 минут пешком), в Беговом районе САО. Офис хорошо освещен благодаря наличию большого количества окон,...
    • 268.4 м²
    • 6/48 эт.
    170 683 320 Р
    Агент
    +7 (903) Показать номер
    Посмотреть контакты

    Не нашли подходящего объявления?

    Оставьте заявку, и наши риэлторы подберут офис в районе Москвы

    (0)