549 999 800 Р 7 310 500 $ или 6 198 600

Информация о помещении и здании

1
Этаж
7
Этажность
Развернуть
Агент
+7 (919) 724-42-49
Начать чат с агентом

Офис в Москва Трубная ул., 25к1 (1400 м)

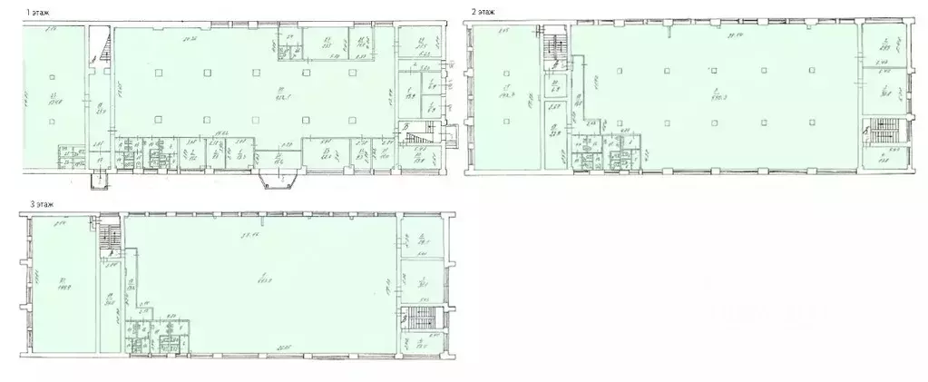
ID 5690. Продажа отдельно стоящего здания на Трубной, в трех минутах пешком от метро Цветной бульвар.Характеристика объекта: отличное состояние всего здания и помещений, высота потолков 3м-5м, электрическая мощность 92 кВт, с/у , мокрая точка.Возможное назначение помещения: офис, магазин, салон красоты. Intermark Real Estate - участник ассоциации AREA. Мы работаем в выходные и праздничные дни, будем рады вашим звонкам в любое время.

Читать полностью
    Позвонить Написать
    549 999 800 Р7 310 500 $ или 6 198 600
    Агент
    +7 (919) 724-42-49
    Начать чат с агентом
    Похожие предложения
    Офис в Москва Графский пер., 12АС1 (2607 м) - Фото 1
    Офис в Москва Графский пер., 12АС1 (2607 м) - Фото 2
    1-й этаж, всего 3 этажа

    Офисное помещение 2 606.8 кв. м в бизнес-центре Графский 12Ас1 . Прямая продажа, без комиссии.Округ: Северо-Восточный (СВАО). Район: Алексеевский. Характеристики:- Класс: B; - Код налоговой: 17; - Арендопригодная площадь: 2210; - Высота потолков: 3...
    • 1/3 эт.
    550 000 000 Р
    Агент
    +7 (915) Показать номер
    Посмотреть контакты
    Офис в Москва Трубная ул., 25к1 (1400 м) - Фото 1
    Офис в Москва Трубная ул., 25к1 (1400 м) - Фото 2
    1-й этаж, всего 6 этажей

    Агентства просьба не беспокоить Предлагается на продажу многоквартирный дом, расположенный в Мещанском районе (ЦАО) на первой линии домов Трубной улицы, в шаговой доступности от станций метро Цветной бульвар, Сухаревская и Чистые пруды. Общая площадь...
    • 1/6 эт.
    550 000 000 Р
    Агент
    +7 (985) Показать номер
    Посмотреть контакты
    Офис (2606.8 м) - Фото 1
    Офис (2606.8 м) - Фото 2
    всего 3 этажа

    Офисное помещение 2 606.8 кв. м в бизнес-центре «Графский 12Ас1 . Прямая продажа, без комиссии.Округ: Северо-Восточный (СВАО). Район: Алексеевский. Характеристики:- Класс: B; - Арендопригодная площадь: 2210; - Код налоговой: 17; - Высота потолков: 3...
    • 3 этажа
    550 000 000 Р
    Агент
    +7 (929) Показать номер
    Посмотреть контакты
    Офис в Москва ул. Вавилова, 13А (932 м) - Фото 1
    Офис в Москва ул. Вавилова, 13А (932 м) - Фото 2
    2-й этаж, всего 23 этажа

    Предлагаем на продажу помещения в бизнес-центре напрямую от собственника объекта.Адрес: Москва, ул. Вавилова, д. 13А.Транспортная инфраструктура:• Объект располагается в шаговой доступности от ст. м. Воробьевы горы , Ленинский пр-т , Площадь Гагарина...
    • 2/23 эт.
    554 540 000 Р
    Агент
    +7 (916) Показать номер
    Посмотреть контакты
    Офис в Москва Верейская ул., 29С29 (1488 м) - Фото 1
    Офис в Москва Верейская ул., 29С29 (1488 м) - Фото 2
    18-й этаж, всего 38 этажей

    Старт продаж Продаётся офисное помещение площадью 1488.09 м на 18 этаже в новом бизнес-центре SET в башне K2. БЦ SET — современные офисы класса А от MR Office, расположенные в Можайском районе Западного административного округа Москвы на ул. Верейская....
    • 18/38 эт.
    543 152 850 Р
    Агент
    +7 (985) Показать номер
    Посмотреть контакты

    Не нашли подходящего объявления?

    Оставьте заявку, и наши риэлторы подберут офис в районе Москвы

    (0)