585 900 000 Р 7 682 300 $ или 6 417 400

Информация о помещении и здании

3
Этаж
6
Этажность
Развернуть
Агент
+7 (985) 158-20-12
Начать чат с агентом

Офис в Москва ул. Бутырский Вал, 68/70С1 (1395 м)

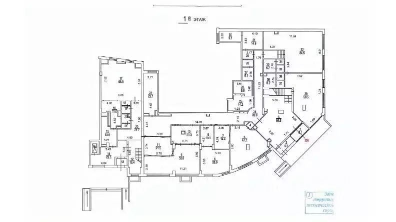
Продаём Офис в бизнес-центре Бэйкер Плаза по адресу: Москва, улица Бутырский Вал, 68/70с1. Рабочих мест: от 175 до 310*.Площадь: 1 395 м2.Планировка: открытая.Состояние: готово к въезду.Цена за м2:Стоимость:Налог: УСН.Собственник: физ. лицо.Этаж: 1, 2, 3 из 6.Охрана: круглосуточная охрана здания.Метро рядом: м. Савёловская в 8 минутах пешком, м. Белорусская в 14 минутах пешком, м. Менделеевская в 14 минутах пешком. Этот адрес обслуживает налоговая 7. Парковка наземная.Системы здания:Вентиляция: приточно-вытяжная.Кондиционирование: центральное.Пожарная сигнализация: спринклерная система.Этот лот состоит из нескольких помещений: 400 кв. м., 289 кв. м., 347 кв. м. и 359 кв. м.>ID объекта - 017750. Объявление актуально. Пришлём презентацию объекта и альтернатив (5-10 шт.).*Количество рабочих мест рассчитано автоматически: от 4,5 м2 на человека до 8 м2 на человека.Почему клиенты доверяют нам?1. 12000 объектов коммерческой недвижимости Москвы и Области, включая эксклюзивные и внерыночные.2. Работаем без комиссии и скрытых платежей. Вы заключаете договор напрямую с собственником.3. Профессиональное сопровождение: консультации на каждом этапе, помощь в подборе оптимального решения для вашего бизнеса.4. 17 лет опыта в коммерческой недвижимости.Не тратьте время, доверьте поиски нам Позвоните, и мы оперативно организуем просмотр или подготовим подборку объектов.

Читать полностью
    Позвонить Написать
    585 900 000 Р7 682 300 $ или 6 417 400
    Агент
    +7 (985) 158-20-12
    Начать чат с агентом
    Похожие предложения
    Офис в Москва ул. Бутырский Вал, 68/70С1 (1392 м) - Фото 1
    Офис в Москва ул. Бутырский Вал, 68/70С1 (1392 м) - Фото 2
    3-й этаж, всего 6 этажей

    Продаём Офис в бизнес-центре Бэйкер Плаза по адресу: Москва, улица Бутырский Вал, 68/70с1. Рабочих мест: от 174 до 309*.Площадь: 1 392 м2.Планировка: открытая.Состояние: готово к въезду.Цена за м2:Стоимость:Налог: УСН.Собственник: физ. лицо.Этаж: 1,...
    • 3/6 эт.
    584 640 000 Р
    Агент
    +7 (985) Показать номер
    Посмотреть контакты
    м. Белорусская, Ленинградский проспект, 2515 м2, Офис (ном. объекта: ... - Фото 1
    м. Белорусская, Ленинградский проспект, 2515 м2, Офис (ном. объекта: ... - Фото 2
    м. Белорусская, Ленинградский проспект, 2515 м2, Офис (ном. объекта: ... - Фото 3
    м. Белорусская, Ленинградский проспект, 2515 м2, Офис (ном. объекта: ... - Фото 4
    м. Белорусская, Ленинградский проспект, 2515 м2, Офис (ном. объекта: ... - Фото 5
    м. Белорусская, Ленинградский проспект, 2515 м2, Офис (ном. объекта: ... - Фото 6
    м. Белорусская, Ленинградский проспект, 2515 м2, Офис (ном. объекта: ... - Фото 7
    м. Белорусская, Ленинградский проспект, 2515 м2, Офис (ном. объекта: ... - Фото 8
    м. Белорусская, Ленинградский проспект, 2515 м2, Офис (ном. объекта: ... - Фото 9
    м. Белорусская, Ленинградский проспект, 2515 м2, Офис (ном. объекта: ... - Фото 10
    м. Белорусская, Ленинградский проспект, 2515 м2, Офис (ном. объекта: ... - Фото 11
    м. Белорусская, Ленинградский проспект, 2515 м2, Офис (ном. объекта: ... - Фото 12
    м. Белорусская, Ленинградский проспект, 2515 м2, Офис (ном. объекта: ... - Фото 13
    м. Белорусская, Ленинградский проспект, 2515 м2, Офис (ном. объекта: ... - Фото 14
    м. Белорусская, Ленинградский проспект, 2515 м2, Офис (ном. объекта: ... - Фото 15
    м. Белорусская, Ленинградский проспект, 2515 м2, Офис (ном. объекта: ... - Фото 16
    м. Белорусская, Ленинградский проспект, 2515 м2, Офис (ном. объекта: ... - Фото 17
    общая площадь офисного здания 2515.6м², реализуемая площадь 2515.6м², 3-й этаж, всего 3 этажа

    Офис 2515,6 м2 занимает второй и третий этажи в здании на первой линии Ленинградского проспекта рядом с метро Белорусская. Во внутреннем дворе здания расположена автостоянка. Планировка здания кабинетная. Инженерные коммуникации центральные. Выделенная...
    • 2 515.6 м²
    • 3/3 эт.
    588 400 000 Р
    Агент
    +7 (965) Показать номер
    Агентство
    Телус
    Посмотреть контакты
    Офис в Москва просп. Вернадского, 92К1 (1728 м) - Фото 1
    Офис в Москва просп. Вернадского, 92К1 (1728 м) - Фото 2
    1-й этаж, всего 21 этаж

    Предложение, на которое стоит обратить Ваше внимание Прямая продажа от собственника Офис расположен в элитном ЖК Корона Эйр и имеет отдельный вход не только вздание, но и на территорию ЖК.Двухэтажный офис общей площадью 1727,5 кв.м.Высота потолков на...
    • 1/21 эт.
    600 000 000 Р
    Агент
    +7 (986) Показать номер
    Посмотреть контакты
    м Баррикадная, ЦАО, Большой Тишинский пер., 1727 м2, Часть здания ... - Фото 1
    м Баррикадная, ЦАО, Большой Тишинский пер., 1727 м2, Часть здания ... - Фото 2
    м Баррикадная, ЦАО, Большой Тишинский пер., 1727 м2, Часть здания ... - Фото 3
    м Баррикадная, ЦАО, Большой Тишинский пер., 1727 м2, Часть здания ... - Фото 4
    м Баррикадная, ЦАО, Большой Тишинский пер., 1727 м2, Часть здания ... - Фото 5
    м Баррикадная, ЦАО, Большой Тишинский пер., 1727 м2, Часть здания ... - Фото 6
    м Баррикадная, ЦАО, Большой Тишинский пер., 1727 м2, Часть здания ... - Фото 7
    м Баррикадная, ЦАО, Большой Тишинский пер., 1727 м2, Часть здания ... - Фото 8
    м Баррикадная, ЦАО, Большой Тишинский пер., 1727 м2, Часть здания ... - Фото 9
    м Баррикадная, ЦАО, Большой Тишинский пер., 1727 м2, Часть здания ... - Фото 10
    м Баррикадная, ЦАО, Большой Тишинский пер., 1727 м2, Часть здания ... - Фото 11
    м Баррикадная, ЦАО, Большой Тишинский пер., 1727 м2, Часть здания ... - Фото 12
    м Баррикадная, ЦАО, Большой Тишинский пер., 1727 м2, Часть здания ... - Фото 13
    м Баррикадная, ЦАО, Большой Тишинский пер., 1727 м2, Часть здания ... - Фото 14
    м Баррикадная, ЦАО, Большой Тишинский пер., 1727 м2, Часть здания ... - Фото 15
    м Баррикадная, ЦАО, Большой Тишинский пер., 1727 м2, Часть здания ... - Фото 16
    м Баррикадная, ЦАО, Большой Тишинский пер., 1727 м2, Часть здания ... - Фото 17
    общая площадь офисного здания 1728м², реализуемая площадь 1728м², 3-й этаж, всего 3 этажа

    Продается часть здания 1727 масположенный на земельном участке 755 м2 в долгосрочной аренде. Центральные коммуникации, 250 кВт электрической мощности. Год постройки 1915, кирпичные стены, потолки от 3 до 4 метров. Помещение включает в себя небольшой подвал...
    • 1 728 м²
    • 3/3 эт.
    600 000 000 Р
    Агент
    +7 (968) Показать номер
    Агентство
    Телус
    Посмотреть контакты
    Продажа офиса 1727.5 м2 - Фото 1
    Продажа офиса 1727.5 м2 - Фото 2
    Продажа офиса 1727.5 м2 - Фото 3
    Продажа офиса 1727.5 м2 - Фото 4
    Продажа офиса 1727.5 м2 - Фото 5
    Продажа офиса 1727.5 м2 - Фото 6
    Продажа офиса 1727.5 м2 - Фото 7
    Продажа офиса 1727.5 м2 - Фото 8
    Продажа офиса 1727.5 м2 - Фото 9
    Продажа офиса 1727.5 м2 - Фото 10
    Продажа офиса 1727.5 м2 - Фото 11
    Продажа офиса 1727.5 м2 - Фото 12
    Продажа офиса 1727.5 м2 - Фото 13
    Продажа офиса 1727.5 м2 - Фото 14
    Продажа офиса 1727.5 м2 - Фото 15
    Продажа офиса 1727.5 м2 - Фото 16
    реализуемая площадь 1727.5м², 1-й этаж, всего 21 этаж, коридорно-кабинетная планировка

    Предложение, на которое стоит обратить Ваше внимание! Прямая продажа от собственника! Офис расположен в элитном ЖК "Корона Эйр" и имеет отдельный вход не только в здание, но и на территорию ЖК. Двухэтажный офис общей площадью 1727,5 кв.м. Высота потолков...
    • 1 727.5 м²
    • 1/21 эт.
    600 000 000 Р
    Агент
    +7 (932) Показать номер
    Посмотреть контакты

    Не нашли подходящего объявления?

    Оставьте заявку, и наши риэлторы подберут офис в районе Москвы

    (0)