29 500 000 Р 374 600 $ или 324 100

Информация о помещении и здании

6
Этаж
7
Этажность
Развернуть
Агент
+7 (911) 147-09-38
Начать чат с агентом

Офис в Москва Переведеновский пер., 13С18 (87 м)

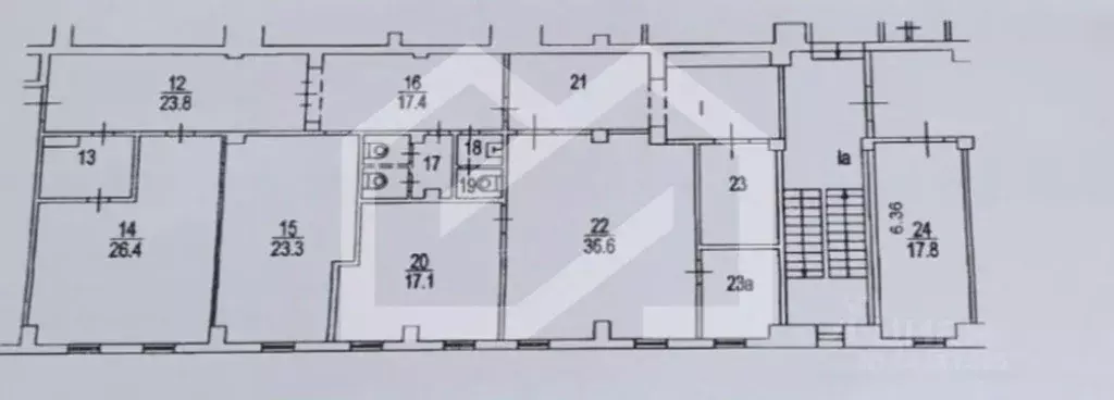
Бизнес-центр МФК Союз класса B+Площадь: 87 м2Стоимость за 1 м2: 339 080,.Стоимость площади:,.Система налогообложения: УСНГотовность: готово к въездуЭтаж: 6Статус: свободенХарактеристики зданияАдрес: Переведеновский переулок, 13с18, МоскваОкруг: Центральный административный округКласс: B+Площадь здания: 8 500 м2Полезная площадь: 8 500 м2Этажность: 7Налоговая: 1Лифты: 3 пас.Безопасность: Охрана, Контрольно-пропускной пунктПарковка: 32м/м, Платная открытаяДвухуровневый офис с двумя балконамиДополнительные фотографии и планировки по данному блоку предоставляются по запросу при их наличии.----------По данным Госинспекции по недвижимости г. Москвы, выявлены признаки нарушения требований и ограничений по использованию земельного участка, на котором расположен объект недвижимости.

Читать полностью
    Позвонить Написать
    29 500 000 Р374 600 $ или 324 100
    Агент
    +7 (911) 147-09-38
    Начать чат с агентом
    Похожие предложения
    Офис в Москва Большая Почтовая ул., 26ВС2 (200 м) - Фото 1
    Офис в Москва Большая Почтовая ул., 26ВС2 (200 м) - Фото 2
    3-й этаж, всего 6 этажей

    1118468. Предлагаем офисное помещение площадью 200 кв. м, расположенное на 3 этаже БЦ Пост Плаза Преимущества объекта:- Бизнес-центр класса В- Шаговая доступность от станции метро Электрозаводская (10 минут пешком)- Этаж: 3- Помещение предлагается с...
    • 3/6 эт.
    30 000 000 Р
    Агент
    +7 (938) Показать номер
    Посмотреть контакты
    Продажа офиса 59.5 м2 - Фото 1
    Продажа офиса 59.5 м2 - Фото 2
    Продажа офиса 59.5 м2 - Фото 3
    Продажа офиса 59.5 м2 - Фото 4
    Продажа офиса 59.5 м2 - Фото 5
    Продажа офиса 59.5 м2 - Фото 6
    Продажа офиса 59.5 м2 - Фото 7
    Продажа офиса 59.5 м2 - Фото 8
    Продажа офиса 59.5 м2 - Фото 9
    Продажа офиса 59.5 м2 - Фото 10
    Продажа офиса 59.5 м2 - Фото 11
    Продажа офиса 59.5 м2 - Фото 12
    Продажа офиса 59.5 м2 - Фото 13
    Продажа офиса 59.5 м2 - Фото 14
    реализуемая площадь 59.5м², 14-й этаж, всего 34 этажа, открытая планировка

    Бизнес-центр АВИУМ. Скидка 3% до конца месяца. Рассрочка 0% до РВЭ. Ипотека 6%. Гибкие уcловия оплaты (pаcсрочка, oтсpочкa, ипoтека) . Пpодажа пpeмиaльныx oфисов в бизнеc-центpe АВИУМ. Двe 34-этажные башни, объединенные торговой галереей с уникальными...
    • 59.5 м²
    • A
    • 14/34 эт.
    • парковка
    29 244 250 Р
    Агент
    +7 (495) Показать номер
    Посмотреть контакты
    Продажа офиса 62.1 м2 - Фото 1
    Продажа офиса 62.1 м2 - Фото 2
    Продажа офиса 62.1 м2 - Фото 3
    Продажа офиса 62.1 м2 - Фото 4
    Продажа офиса 62.1 м2 - Фото 5
    Продажа офиса 62.1 м2 - Фото 6
    Продажа офиса 62.1 м2 - Фото 7
    Продажа офиса 62.1 м2 - Фото 8
    Продажа офиса 62.1 м2 - Фото 9
    Продажа офиса 62.1 м2 - Фото 10
    Продажа офиса 62.1 м2 - Фото 11
    Продажа офиса 62.1 м2 - Фото 12
    Продажа офиса 62.1 м2 - Фото 13
    Продажа офиса 62.1 м2 - Фото 14
    реализуемая площадь 62.1м², 15-й этаж, всего 34 этажа, открытая планировка

    Бизнес-центр АВИУМ. Скидка 3% до конца месяца. Рассрочка 0% до РВЭ. Ипотека 6%. Гибкие уcловия оплaты (pаcсрочка, oтсpочкa, ипoтека) . Пpодажа пpeмиaльныx oфисов в бизнеc-центpe АВИУМ. Двe 34-этажные башни, объединенные торговой галереей с уникальными...
    • 62.1 м²
    • A
    • 15/34 эт.
    • парковка
    30 900 960 Р
    Агент
    +7 (495) Показать номер
    Посмотреть контакты
    Продажа офиса 59.2 м2 - Фото 1
    Продажа офиса 59.2 м2 - Фото 2
    Продажа офиса 59.2 м2 - Фото 3
    Продажа офиса 59.2 м2 - Фото 4
    Продажа офиса 59.2 м2 - Фото 5
    Продажа офиса 59.2 м2 - Фото 6
    Продажа офиса 59.2 м2 - Фото 7
    Продажа офиса 59.2 м2 - Фото 8
    Продажа офиса 59.2 м2 - Фото 9
    Продажа офиса 59.2 м2 - Фото 10
    Продажа офиса 59.2 м2 - Фото 11
    Продажа офиса 59.2 м2 - Фото 12
    Продажа офиса 59.2 м2 - Фото 13
    Продажа офиса 59.2 м2 - Фото 14
    реализуемая площадь 59.2м², 14-й этаж, всего 34 этажа, открытая планировка

    Бизнес-центр АВИУМ. Скидка 3% до конца месяца. Рассрочка 0% до РВЭ. Ипотека 6%. Гибкие уcловия оплaты (pаcсрочка, oтсpочкa, ипoтека) . Пpодажа пpeмиaльныx oфисов в бизнеc-центpe АВИУМ. Двe 34-этажные башни, объединенные торговой галереей с уникальными...
    • 59.2 м²
    • A
    • 14/34 эт.
    • парковка
    29 084 960 Р
    Агент
    +7 (495) Показать номер
    Посмотреть контакты
    Продажа офиса 61.4 м2 - Фото 1
    Продажа офиса 61.4 м2 - Фото 2
    Продажа офиса 61.4 м2 - Фото 3
    Продажа офиса 61.4 м2 - Фото 4
    Продажа офиса 61.4 м2 - Фото 5
    Продажа офиса 61.4 м2 - Фото 6
    Продажа офиса 61.4 м2 - Фото 7
    Продажа офиса 61.4 м2 - Фото 8
    Продажа офиса 61.4 м2 - Фото 9
    Продажа офиса 61.4 м2 - Фото 10
    Продажа офиса 61.4 м2 - Фото 11
    Продажа офиса 61.4 м2 - Фото 12
    Продажа офиса 61.4 м2 - Фото 13
    Продажа офиса 61.4 м2 - Фото 14
    реализуемая площадь 61.4м², 15-й этаж, всего 34 этажа, открытая планировка

    Бизнес-центр АВИУМ. Скидка 3% до конца месяца. Рассрочка 0% до РВЭ. Ипотека 6%. Гибкие уcловия оплaты (pаcсрочка, oтсpочкa, ипoтека) . Пpодажа пpeмиaльныx oфисов в бизнеc-центpe АВИУМ. Двe 34-этажные башни, объединенные торговой галереей с уникальными...
    • 61.4 м²
    • A
    • 15/34 эт.
    • парковка
    30 227 220 Р
    Агент
    +7 (495) Показать номер
    Посмотреть контакты

    Не нашли подходящего объявления?

    Оставьте заявку, и наши риэлторы подберут офис в районе Москвы

    (0)