165 000 000 Р 2 118 500 $ или 1 795 600

Информация о помещении и здании

1
Этажность
Развернуть
Агент
+7 (925) 837-35-62
Начать чат с агентом

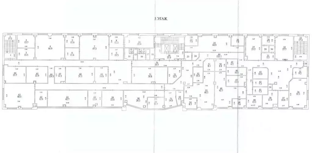
Офис (1119.8 м)

Продается 1 этажное административное здание с подвалом В класса, которое расположено по адресу: ул. Суздальская, д. 14А.Пешая доступность от станций метро Новокосино, Новогиреево. Удобный выезд на Носовихинского шоссе и МКАД.В помещениях стандартная офисная отделка, смешанная планировка, с мебелью. Высота потолков: 2,5-3 м. Отдельный вход с улицы. Центральная система кондиционирования и приточно-вытяжная система вентиляции. В наличии наземная парковка.Условия сделки и стоимость подлежат обсуждению.

Читать полностью
    Позвонить Написать
    165 000 000 Р2 118 500 $ или 1 795 600
    Агент
    +7 (925) 837-35-62
    Начать чат с агентом
    Похожие предложения
    3-й этаж, всего 4 этажа

    Продаём Офис в бизнес-центре Вольная ул., 35С4 по адресу: Москва, Вольная улица, 35с4. Рабочих мест: от 125 до 221*.Площадь: 998 м2.Планировка: смешанная.Состояние: готово к въезду.Цена за м2:Стоимость:Налог: УСН.Собственник: физ. лицо.Этаж: 2, 3 из...
    • 3/4 эт.
    166 660 000 Р
    Агент
    +7 (985) Показать номер
    Посмотреть контакты
    3-й этаж, всего 4 этажа

    Продаём Офис в бизнес-центре Вольная ул., 35С4 по адресу: Москва, Вольная улица, 35с4. Рабочих мест: от 125 до 220*.Площадь: 994 м2.Планировка: смешанная.Состояние: готово к въезду.Цена за м2:Стоимость:Налог: УСН.Собственник: физ. лицо.Этаж: 2, 3 из...
    • 3/4 эт.
    161 860 000 Р
    Агент
    +7 (985) Показать номер
    Посмотреть контакты
    Офис в Москва проезд Серебрякова, 6 (1344 м) - Фото 1
    Офис в Москва проезд Серебрякова, 6 (1344 м) - Фото 2
    3-й этаж, всего 5 этажей

    827908 . Предлагаем офисное помещение с гарантированным арендным потоком, площадью 1 344 кв. м., расположенное на 3 этаже в Деловом Центре Серебрякова Преимущества объекта:- Бизнес-центр класса В- Шаговая доступность от станции метро Ботанический сад...
    • 3/5 эт.
    168 000 000 Р
    Агент
    +7 (938) Показать номер
    Посмотреть контакты
    Офис в Москва проезд Серебрякова, 6 (1344 м) - Фото 1
    Офис в Москва проезд Серебрякова, 6 (1344 м) - Фото 2
    4-й этаж, всего 5 этажей

    827912 . Предлагаем офисное помещение с гарантированным арендным потоком, площадью 1 344 кв. м., расположенное на 4 этаже в Деловом Центре Серебрякова Преимущества объекта:- Бизнес-центр класса В- Шаговая доступность от станции метро Ботанический сад...
    • 4/5 эт.
    168 000 000 Р
    Агент
    +7 (938) Показать номер
    Посмотреть контакты
    Офис в Москва проезд Серебрякова, 6 (1307 м) - Фото 1
    Офис в Москва проезд Серебрякова, 6 (1307 м) - Фото 2
    5-й этаж, всего 5 этажей

    827915 . Предлагаем офисное помещение с гарантированным арендным потоком, площадью 1 307 кв. м., расположенное на 5 этаже в Деловом Центре Серебрякова Преимущества объекта:- Бизнес-центр класса В- Шаговая доступность от станции метро Ботанический сад...
    • 5/5 эт.
    176 445 000 Р
    Агент
    +7 (938) Показать номер
    Посмотреть контакты

    Не нашли подходящего объявления?

    Оставьте заявку, и наши риэлторы подберут офис в районе Москвы

    (0)