201 075 000 Р 2 581 700 $ или 2 188 200

Информация о помещении и здании

5
Этаж
21
Этажность
Развернуть
Агент
+7 (985) 158-20-12
Начать чат с агентом

Офис в Москва ул. Бутлерова, 17 (599 м)

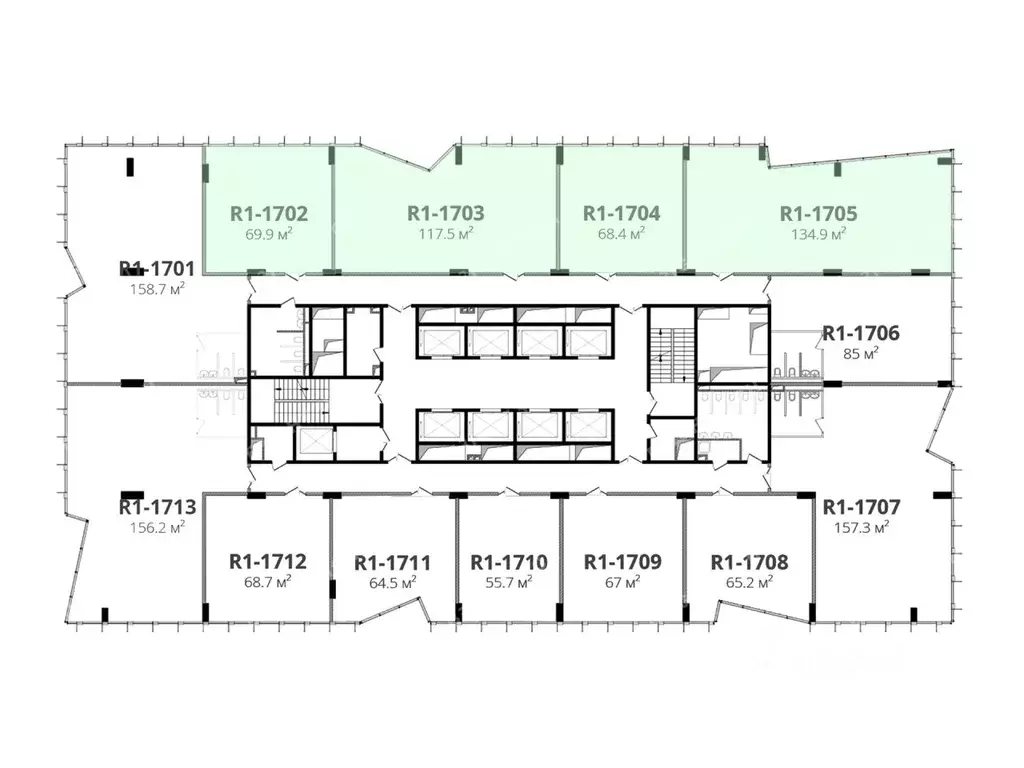
Продаём Офис в бизнес-центре Нео Гео по адресу: Москва, улица Бутлерова, 17. Рабочих мест: от 75 до 133*.Площадь: 599 м2.Планировка: открытая.Состояние: готово к въезду.Цена за м2:Стоимость:Налог: УСН.Собственник: физ. лицо.Этаж: 4, 5 из 21.Охрана: круглосуточная охрана здания.Метро рядом: м. Калужская в 9 минутах пешком, м. Беляево в 14 минутах пешком. Этот адрес обслуживает налоговая 28. Парковка наземная, подземная.Системы здания:Вентиляция: приточно-вытяжная.Кондиционирование: центральное.Пожарная сигнализация: спринклерная система.Этот лот состоит из нескольких помещений: 502 кв. м. и 97 кв. м.>ID объекта - 033196. Объявление актуально. Пришлём презентацию объекта и альтернатив (5-10 шт.).*Количество рабочих мест рассчитано автоматически: от 4,5 м2 на человека до 8 м2 на человека.Почему клиенты доверяют нам?1. 12000 объектов коммерческой недвижимости Москвы и Области, включая эксклюзивные и внерыночные.2. Работаем без комиссии и скрытых платежей. Вы заключаете договор напрямую с собственником.3. Профессиональное сопровождение: консультации на каждом этапе, помощь в подборе оптимального решения для вашего бизнеса.4. 17 лет опыта в коммерческой недвижимости.Не тратьте время, доверьте поиски нам Позвоните, и мы оперативно организуем просмотр или подготовим подборку объектов.

Читать полностью
    Позвонить Написать
    201 075 000 Р2 581 700 $ или 2 188 200
    Агент
    +7 (985) 158-20-12
    Начать чат с агентом
    Похожие предложения
    Офис в Москва ул. Золоторожский Вал, 11С1 (390 м) - Фото 1
    Офис в Москва ул. Золоторожский Вал, 11С1 (390 м) - Фото 2
    17-й этаж, всего 23 этажа

    Офисное помещение 390 кв. м в бизнес-центре STONE Римская . Прямая продажа, без комиссии. Объект на стадии активного строительства, готовность ко въезду уточняется по запросу. Округ: Юго-Восточный (ЮВАО). Характеристики:- Класс: A; - Размер типового...
    • 17/23 эт.
    204 362 200 Р
    Агент
    +7 (915) Показать номер
    Посмотреть контакты
    Офис в Москва Афи Парк Воронцовский жилой комплекс, 2 (487 м) - Фото 1
    Офис в Москва Афи Парк Воронцовский жилой комплекс, 2 (487 м) - Фото 2
    17-й этаж, всего 21 этаж

    Офисное помещение 487.3 кв. м в бизнес-центре AFI PARK. Прямая продажа, без комиссии. Объект на стадии активного строительства, готовность ко въезду уточняется по запросу. Округ: Юго-Западный (ЮЗАО). Район: Обручевский. Характеристики:- Класс: A; - Арендопригодная...
    • 17/21 эт.
    194 239 359 Р
    Агент
    +7 (915) Показать номер
    Посмотреть контакты
    Офис в Москва Холодильный пер., 3к1с8 (429 м) - Фото 1
    Офис в Москва Холодильный пер., 3к1с8 (429 м) - Фото 2
    2-й этаж, всего 2 этажа

    839623 . Предлагаем офисное помещение с гарантированным арендным потоком, площадью 428,8 кв. м., расположенное на 2 этаже бизнес квартала Товарищество Рябовской Мануфактуры Преимущества объекта:- Бизнес-центр класса В+- Шаговая доступность от станции...
    • 2/2 эт.
    205 824 000 Р
    Агент
    +7 (938) Показать номер
    Посмотреть контакты
    Офис в Москва Холодильный пер., 3к1с6 (429 м) - Фото 1
    Офис в Москва Холодильный пер., 3к1с6 (429 м) - Фото 2
    2-й этаж, всего 5 этажей

    ID 586579Продаётся офис 8210 в лофт-квартале Товарищество Рябовской Мануфактуры (100 м от метро).Два этажа, кабинетная планировка и большие окна. Наличие мокрой точки.Свободный доступ в квартал 24/7, парковка на территории квартала.Товарищество Рябовской...
    • 2/5 эт.
    205 824 000 Р
    Агент
    +7 (933) Показать номер
    Посмотреть контакты
    Продажа офиса, м. Шелепиха, ул. Ермакова Роща - Фото 1
    Продажа офиса, м. Шелепиха, ул. Ермакова Роща - Фото 2
    Продажа офиса, м. Шелепиха, ул. Ермакова Роща - Фото 3
    Продажа офиса, м. Шелепиха, ул. Ермакова Роща - Фото 4
    Продажа офиса, м. Шелепиха, ул. Ермакова Роща - Фото 5
    Продажа офиса, м. Шелепиха, ул. Ермакова Роща - Фото 6
    Продажа офиса, м. Шелепиха, ул. Ермакова Роща - Фото 7
    Продажа офиса, м. Шелепиха, ул. Ермакова Роща - Фото 8
    общая площадь офисного здания 261.5м², реализуемая площадь 261.5м², 12-й этаж, всего 61 этаж

    Готовое премиальное офисное помещение площадью 261,5 масположено на 12-м этаже в высотном БЦ iCITY (класса А). БЦ находится в ЦАО, район Пресненский, в 460 м от Москва-Сити, рядом с ТТК и Шелепихинским мостом, в 400 метрах от м.Шелепиха, в 7 минутах от...
    • 261.5 м²
    • 12/61 эт.
    202 662 500 Р
    Агент
    +7 (903) Показать номер
    Посмотреть контакты

    Не нашли подходящего объявления?

    Оставьте заявку, и наши риэлторы подберут офис в районе Москвы

    (0)