249 999 438 Р 3 181 800 $ или 2 711 600

Информация о помещении и здании

1
Этаж
2
Этажность
Развернуть
Агент
+7 (915) 101-43-18
Начать чат с агентом

Офис в Москва Новохохловская ул., 11С12 (1209 м)

БЕЗ КОМИССИИ Складской комплекс класса B. Продаётся здание целиком площадью 1209 кв.м. Стандартная офисная отделка. Электрическая мощность 145 кВт.УСН. Новохохловская улица, 11с12, 30 минут пешком от метро Волгоградский проспект. ЛОТ 240160

Читать полностью
    Позвонить Написать
    249 999 438 Р3 181 800 $ или 2 711 600
    Агент
    +7 (915) 101-43-18
    Начать чат с агентом
    Похожие предложения
    Офис в Москва ул. Академика Семенихина, 2 (580 м) - Фото 1
    Офис в Москва ул. Академика Семенихина, 2 (580 м) - Фото 2
    18-й этаж, всего 23 этажа

    Цена указана с учётом скидки 15 . Выгодный актив: 50 средний рост стоимости за период строительства. На проекте полностью завершены монолитные работы.Возможность возврата ндс после покупки.Продаётся помещение площадью 579.60 кв. м в Level work Воронцовская...
    • 18/23 эт.
    250 753 406 Р
    Агент
    +7 (967) Показать номер
    Посмотреть контакты
    Продажа офиса, м. Деловой центр, Пресненская наб - Фото 1
    Продажа офиса, м. Деловой центр, Пресненская наб - Фото 2
    Продажа офиса, м. Деловой центр, Пресненская наб - Фото 3
    Продажа офиса, м. Деловой центр, Пресненская наб - Фото 4
    Продажа офиса, м. Деловой центр, Пресненская наб - Фото 5
    Продажа офиса, м. Деловой центр, Пресненская наб - Фото 6
    Продажа офиса, м. Деловой центр, Пресненская наб - Фото 7
    Продажа офиса, м. Деловой центр, Пресненская наб - Фото 8
    общая площадь офисного здания 311м², реализуемая площадь 311м², 29-й этаж, всего 64 этажа

    Продажа офисного помещения общей площадью 311 м2 (282,4 м2 + 28,6 м2 МОП), расположенного на 29 этаже, в Башне Федерация Запад. Выполнен качественный ремонт - стеклянные перегородки, на полу в кабинетах - ковролин. Планировка смешанная - кабинеты, зона...
    • 311 м²
    • 29/64 эт.
    255 020 000 Р
    Агент
    +7 (903) Показать номер
    Посмотреть контакты
    Офис в Москва ул. Фридриха Энгельса, 46С2 (750 м) - Фото 1
    Офис в Москва ул. Фридриха Энгельса, 46С2 (750 м) - Фото 2
    5-й этаж, всего 5 этажей

    Продаём Офис в бизнес-центре Loft 46 по адресу: Москва, улица Фридриха Энгельса, 46. Рабочих мест: от 94 до 166*.Площадь: 750 м2.Планировка: смешанная.Состояние: готово к въезду.Цена за м2:Стоимость:Налог: включая НДС.Собственник: физ. лицо.Этаж: 2,...
    • 5/5 эт.
    240 000 000 Р
    Агент
    +7 (985) Показать номер
    Посмотреть контакты
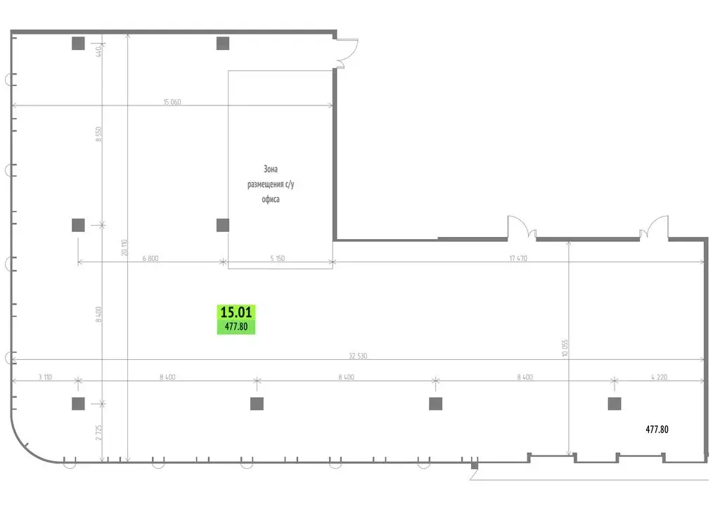
    Офис (477.8 м) - Фото 1
    Офис (477.8 м) - Фото 2
    15-й этаж, всего 18 этажей

    Продается офис на 15 этаже, площадью 477.8 м Upside Ямская — бизнес центр класса«А у ТТК в динамично развивающейся локации Москвы. Проект объединяет центральную локацию с атмосферой приватности, выразительную архитектуру и гибкую офисную планировку....
    • 15/18 эт.
    251 657 264 Р
    Агент
    +7 (985) Показать номер
    Посмотреть контакты
    Офис в Москва Садовая-Самотечная ул., 24/27 (350 м) - Фото 1
    Офис в Москва Садовая-Самотечная ул., 24/27 (350 м) - Фото 2
    4-й этаж, всего 10 этажей

    Бизнес-центр Mosenka Plaza III класса B+Площадь: 350 м2Стоимость за 1 м2: 707 091,. включая НДССтоимость площади:,. включая НДССистема налогообложения: НДСГотовность: готово к въездуЭтаж: 4Планировка: смешаннаяНаличие с/у: , ВнутриСтатус: свободенВысота...
    • 4/10 эт.
    247 482 082 Р
    Агент
    +7 (911) Показать номер
    Посмотреть контакты

    Не нашли подходящего объявления?

    Оставьте заявку, и наши риэлторы подберут офис в районе Москвы

    (0)