50 400 000 Р 648 700 $ или 552 600

Информация о помещении и здании

6
Этаж
13
Этажность
Развернуть
Агент
+7 (910) 181-08-54
Начать чат с агентом

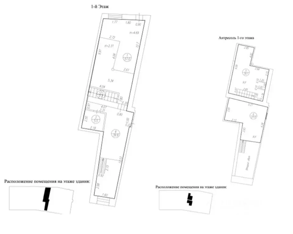
Офис в Москва Холодильный пер., 3к1 (105 м)

Продажа офиса 105 м2 (6 этаж) в премиальном БЦ класса А Башня Рябов , Холодильный переулок, дом 3, к. 1 стр. 1.Старт продаж в премиальном бизнес-центре класса А Башня Рябов Ключевые характеристики помещения:Класс здания: АОбщая площадь: 105 мВысота потолков: 3,7 мПаркинг: подземный, три уровняПланировка: гибкаяСкоростные лифтыОтделка Shell CoreПанорамное остекление обеспечивает высокий уровень естественного освещенияНаличие мокрой зоны с выведенными коммуникациями для обустройства кухниКрасивая и благоустроенная территория Товарищества Рябовской МануфактурыПредложение напрямую от девелопера. Рассрочка до 10 Инвестиционное предложение подходит для размещения штаб-квартиры собственной компании, дальнейшей перепродажи по более высокой стоимости или сдачи в аренду.Преимущества вложений:— Доступная цена в период строительства— Рост цен к завершению строительства до 50 .— Строительная готовность в 2026 годуТранспортная доступность:— 2 мин. пешком от метро Тульская — 10 мин. от Кремля— Удобный выезд на ТТК и Садовое кольцо

Читать полностью
    Позвонить Написать
    50 400 000 Р648 700 $ или 552 600
    Агент
    +7 (910) 181-08-54
    Начать чат с агентом
    Похожие предложения
    Офис в Москва ул. Горбунова, 2С3 (220 м) - Фото 1
    Офис в Москва ул. Горбунова, 2С3 (220 м) - Фото 2
    6-й этаж, всего 10 этажей

    Бизнес-центр Grand Setun Plaza класса B+Площадь: 220,4 м2Стоимость за 1 м2: 230 000,. включая НДССтоимость площади:,. включая НДССистема налогообложения: НДСГотовность: готово к въездуЭтаж: 6Статус: свободенХарактеристики зданияАдрес: Горбунова yлица,...
    • 6/10 эт.
    50 692 001 Р
    Агент
    +7 (911) Показать номер
    Посмотреть контакты
    Продажа офиса, Силикатный 3-й проезд - Фото 1
    Продажа офиса, Силикатный 3-й проезд - Фото 2
    Продажа офиса, Силикатный 3-й проезд - Фото 3
    Продажа офиса, Силикатный 3-й проезд - Фото 4
    Продажа офиса, Силикатный 3-й проезд - Фото 5
    Продажа офиса, Силикатный 3-й проезд - Фото 6
    Продажа офиса, Силикатный 3-й проезд - Фото 7
    Продажа офиса, Силикатный 3-й проезд - Фото 8
    Продажа офиса, Силикатный 3-й проезд - Фото 9
    Продажа офиса, Силикатный 3-й проезд - Фото 10
    Продажа офиса, Силикатный 3-й проезд - Фото 11
    Продажа офиса, Силикатный 3-й проезд - Фото 12
    Продажа офиса, Силикатный 3-й проезд - Фото 13
    Продажа офиса, Силикатный 3-й проезд - Фото 14
    общая площадь офисного здания 114.2м², реализуемая площадь 114.2м², 6-й этаж, всего 43 этажа

    Покупка с рассрочкой 0%. Офисное помещение площадью 114,19 масположено на 6-м этаже в высотном БЦ JOIS (класса А). БЦ возводится в СЗАО, район Хорошево-Мневники, в 10 минутах от Москва-Сити. Офис находится в башне MAST (43-х этажная). Высота потолков...
    • 114.2 м²
    • 6/43 эт.
    50 643 265 Р
    Агент
    +7 (903) Показать номер
    Посмотреть контакты
    Продажа офиса 137 м2 - Фото 1
    Продажа офиса 137 м2 - Фото 2
    Продажа офиса 137 м2 - Фото 3
    Продажа офиса 137 м2 - Фото 4
    Продажа офиса 137 м2 - Фото 5
    Продажа офиса 137 м2 - Фото 6
    Продажа офиса 137 м2 - Фото 7
    Продажа офиса 137 м2 - Фото 8
    Продажа офиса 137 м2 - Фото 9
    Продажа офиса 137 м2 - Фото 10
    Продажа офиса 137 м2 - Фото 11
    Продажа офиса 137 м2 - Фото 12
    Продажа офиса 137 м2 - Фото 13
    Продажа офиса 137 м2 - Фото 14
    реализуемая площадь 137м², 26-й этаж, всего 26 этажей

    AFI2B «Тагильская» - первый бизнес-центр класса «А» в Метрогородке. Идеальное пространство для амбициозного бизнеса. Современная архитектура, панорамные виды и безупречная локация - AFI2B «Тагильская» задает новый стандарт деловых пространств на востоке...
    • 137 м²
    • 26/26 эт.
    49 826 688 Р
    Агент
    +7 (495) Показать номер
    Посмотреть контакты
    Продажа офиса 176 м2 - Фото 1
    Продажа офиса 176 м2 - Фото 2
    Продажа офиса 176 м2 - Фото 3
    Продажа офиса 176 м2 - Фото 4
    Продажа офиса 176 м2 - Фото 5
    Продажа офиса 176 м2 - Фото 6
    Продажа офиса 176 м2 - Фото 7
    Продажа офиса 176 м2 - Фото 8
    Продажа офиса 176 м2 - Фото 9
    Продажа офиса 176 м2 - Фото 10
    Продажа офиса 176 м2 - Фото 11
    Продажа офиса 176 м2 - Фото 12
    Продажа офиса 176 м2 - Фото 13
    Продажа офиса 176 м2 - Фото 14
    реализуемая площадь 176м², 9-й этаж, всего 26 этажей

    AFI2B «Тагильская» - первый бизнес-центр класса «А» в Метрогородке. Идеальное пространство для амбициозного бизнеса. Современная архитектура, панорамные виды и безупречная локация - AFI2B «Тагильская» задает новый стандарт деловых пространств на востоке...
    • 176 м²
    • 9/26 эт.
    50 772 448 Р
    Агент
    +7 (495) Показать номер
    Посмотреть контакты
    Офис в Москва Весковский пер., 7 (170 м) - Фото 1
    Офис в Москва Весковский пер., 7 (170 м) - Фото 2
    3-й этаж, всего 3 этажа

    БЕЗ КОМИССИИ Бизнес-центр, рядом с метро. Продаётся блок с санузлом на 3-м этаже площадью 170 кв.м. Стандартная офисная отделка.НДС включен. Весковский переулок, 7, 1 минута пешком от метро Новослободская. ЛОТ 244304
    • 3/3 эт.
    49 499 920 Р
    Агент
    +7 (915) Показать номер
    Посмотреть контакты

    Не нашли подходящего объявления?

    Оставьте заявку, и наши риэлторы подберут офис в районе Москвы

    (0)