41 624 000 Р 524 600 $ или 447 900

Информация о помещении и здании

2
Этаж
3
Этажность
Развернуть
Агент
+7 (984) 321-93-22
Начать чат с агентом

Офис в Москва Холодильный пер., 3к1с4 (97 м)

Продажа помещения 4210 свободного назначения в лофт-квартале Товарищество Рябовской Мануфактуры, метро Тульская 100 метров. Площадь 96,8 м2, Помещение расположено на 2- м этаже Есть своя мокрая точка Потолки 4,2мБольшие окна Светлое помещение Стильная, благоустроенная территория Свободный доступ 24/7 (без пропускной системы) Товарищество Рябовской Мануфактуры - это лофт-квартал, где мы вместе создаем открытую среду для воплощения идей: больших и малых, отложенных в долгий ящик и требующих быстрой реализации, смелых и осторожных, быстрых и долгосрочных. Наша концепция - это пространство для бизнеса, в котором можно не только комфортно работать, но и проводить время, заниматься спортом, посещать различные мероприятия для развития. В нашем объекте мы сохранили историю квартала, историю города и построили новое пространство для взаимодействий. Метро Тульская -район с развитой инфраструктурой, в пешей доступности находятся ТЦ Ереван плаза, МФК Тульский, Даниловский рынок, ТЦ Тульский, Арбитражный суд, Данилов монастырь, бизнес-центры, театры и объекты культуры.Арт.

Читать полностью
    Позвонить Написать
    41 624 000 Р524 600 $ или 447 900
    Агент
    +7 (984) 321-93-22
    Начать чат с агентом
    Похожие предложения
    Офис в Москва Холодильный пер., 3к1с4 (97 м) - Фото 1
    Офис в Москва Холодильный пер., 3к1с4 (97 м) - Фото 2
    2-й этаж, всего 4 этажа

    Продается офисное помещение с готовым ремонтом и действующим арендатором в современном лофт-квартале. Отличная инвестиция с доходом с первого дня.Помещение полностью готово к работе: выполнен качественный ремонт, подведены все коммуникации. Мы предлагаем...
    • 2/4 эт.
    41 624 000 Р
    Агент
    +7 (915) Показать номер
    Посмотреть контакты
    Продажа офиса, м. Тульская, Холодильный пер. - Фото 1
    Продажа офиса, м. Тульская, Холодильный пер. - Фото 2
    Продажа офиса, м. Тульская, Холодильный пер. - Фото 3
    Продажа офиса, м. Тульская, Холодильный пер. - Фото 4
    Продажа офиса, м. Тульская, Холодильный пер. - Фото 5
    Продажа офиса, м. Тульская, Холодильный пер. - Фото 6
    Продажа офиса, м. Тульская, Холодильный пер. - Фото 7
    Продажа офиса, м. Тульская, Холодильный пер. - Фото 8
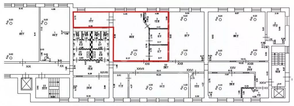
    общая площадь офисного здания 96.8м², реализуемая площадь 96.8м², 2-й этаж, всего 2 этажа

    Арендный бизнес. ПСН площадью 96,8 м2 (№4210) расположено в Деловом квартале в стиле Лофт – в ДК «Товарищество Рябовской Мануфактуры», в 3-х минутах пешком от метро Тульская. Помещение расположено на 2-м этаже в 2-х этажном здании (строение 4), с высокими...
    • 96.8 м²
    • 2/2 эт.
    41 624 000 Р
    Агент
    +7 (903) Показать номер
    Посмотреть контакты
    Офис в Москва Холодильный пер., 3к1с2 (90 м) - Фото 1
    Офис в Москва Холодильный пер., 3к1с2 (90 м) - Фото 2
    2-й этаж, всего 3 этажа

    Продается помещение от собственника под офис/ бюро/ шоу-рум.Уникальное предложение от собственника Продается помещение с арендатором, свободного назначения в лофт-квартале Товарищество Рябовской Мануфактуры, метро Тульская 100 метров (пешком очень удобно...
    • 2/3 эт.
    42 206 000 Р
    Агент
    +7 (986) Показать номер
    Посмотреть контакты
    Офис в Москва Холодильный пер., 3к1с2 (97 м) - Фото 1
    Офис в Москва Холодильный пер., 3к1с2 (97 м) - Фото 2
    2-й этаж, всего 2 этажа

    ВАЖНО: БЕЗ КОММИССИ ДЛЯ АРЕНДАТОРОВ, ПРЯМАЯ ПРОДАЖА ОТ СОБСТВЕННИКАБизнес-центр B+ класса Рябовская мануфактура расположен по адресу Москва, ЮАО, район Даниловский, Холодильный пер., дом3,к1стр2, в пешей доступности от метро Тульская (2 мин).Характеристики...
    • 2/2 эт.
    41 710 000 Р
    Агент
    +7 (980) Показать номер
    Посмотреть контакты
    Офис в Москва Варшавское ш., 1С6 (164 м) - Фото 1
    Офис в Москва Варшавское ш., 1С6 (164 м) - Фото 2
    4-й этаж, всего 4 этажа

    Бизнес-центр W-Plaza 2 класса B+Площадь: 164,3 м2Стоимость за 1 м2:.Стоимость площади:.Система налогообложения: УСНГотовность: готово к въездуЭтаж: 4Планировка: открытаяНаличие с/у: , На этом же этажеСтатус: свободенХарактеристики зданияАдрес: Варшавское...
    • 4/4 эт.
    41 075 000 Р
    Агент
    +7 (911) Показать номер
    Посмотреть контакты

    Не нашли подходящего объявления?

    Оставьте заявку, и наши риэлторы подберут офис в районе Москвы

    (0)