Россия, Москва, Большой Палашевский пер., 1С2
160 000 000 Р 1 981 900 $ или 1 727 800

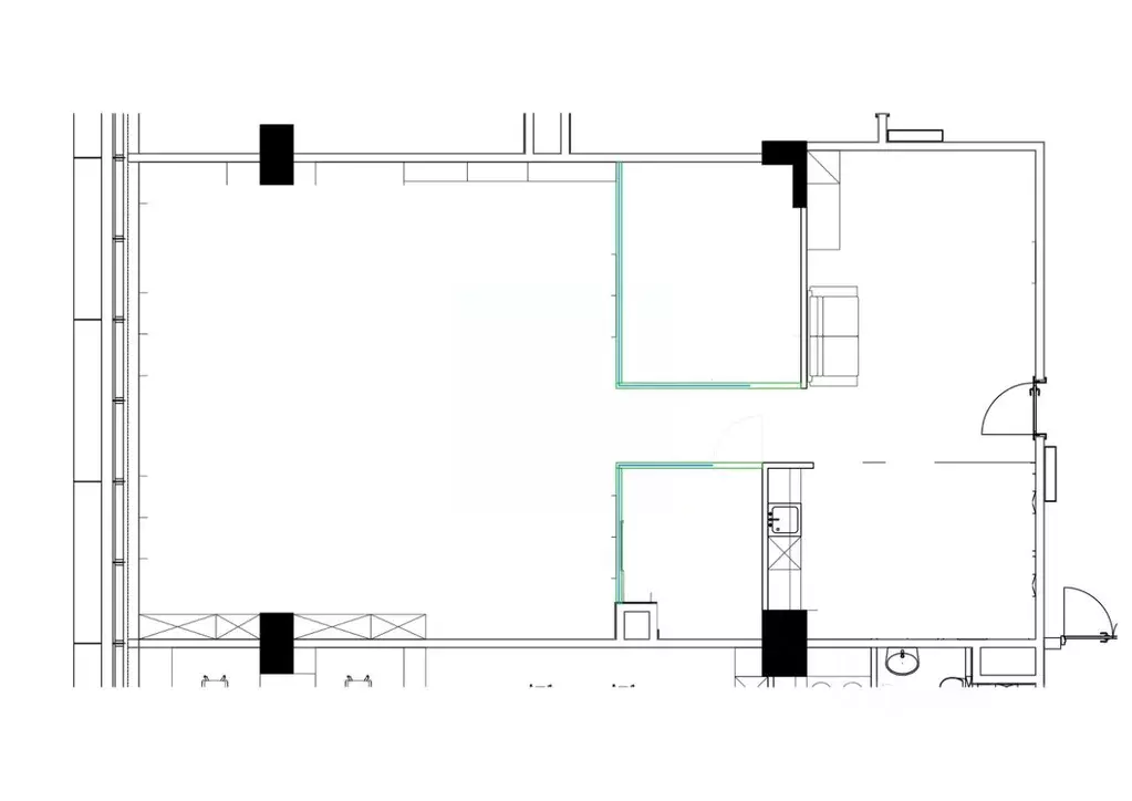
Информация о помещении и здании

1
Этаж
5
Этажность
Развернуть
Агент
+7 (985) 834-19-42
Начать чат с агентом

Офис в Москва Большой Палашевский пер., 1С2 (303 м)

Офисное помещение в комплексе класса Премиумна Патриках- возможно размещение собственной компании- арендный бизнес - доходность от 15 - быстрая окупаемостьВ настоящее время офис сдан в аренду.Удобная планировка: отдельные кабинеты и open space.Кухня и санузел в блоке.Этаж - 1Помещение с отделкойПотолки 4.0Планировка смешаннаяПаркинг Гостевой паркингВентиляция приточно-вытяжная с рекуперациейЦентральное кондиционирование Сплинкерная система пожаротушенияОперативный показ помещенияНаши услуги бесплатны для будущих арендаторовСовременный представительский офис.

Читать полностью
    Позвонить Написать
    160 000 000 Р1 981 900 $ или 1 727 800
    Агент
    +7 (985) 834-19-42
    Начать чат с агентом
    Похожие предложения
    Офис в Москва Большой Палашевский пер., 1С2 (303 м) - Фото 1
    Офис в Москва Большой Палашевский пер., 1С2 (303 м) - Фото 2
    1-й этаж, всего 5 этажей

    Офисное помещение в комплексе класса Премиумна Патриках- возможно размещение собственной компании- арендный бизнес - доходность от 15 - быстрая окупаемостьВ настоящее время офис сдан в аренду.Удобная планировка: отдельные кабинеты и open space.Кухня...
    • 1/5 эт.
    160 000 000 Р
    Агент
    +7 (985) Показать номер
    Посмотреть контакты
    Офис в Москва Петровский пер., 5С8 (254 м) - Фото 1
    Офис в Москва Петровский пер., 5С8 (254 м) - Фото 2
    1-й этаж, всего 4 этажа

    Арт.. Продажа офиса в ЖК Петровский Дворик (год постройки 1882 г.) с отделкой 1 эт.(148м) + подвал(106м)=254.0м.В настоящее время помещение используется под офис и сдано в аренду. Возможно досрочное расторжение договора.Собственная независимая входная...
    • 1/4 эт.
    150 000 000 Р
    Агент
    +7 (915) Показать номер
    Посмотреть контакты
    Офис в Москва Петровский пер., 5С8 (254 м) - Фото 1
    Офис в Москва Петровский пер., 5С8 (254 м) - Фото 2
    1-й этаж, всего 4 этажа

    Лот: 94488. Роман. В продажу предлагается 2-хуровневое помещение с дизайнерским ремонтом. Общая площадь 254 кв.м. из них: 1 этаж - 148 кв.м, подвал - 106 кв.м Собственная независимая входная группа в помещение. Смешанная планировка офиса - зона ресепшн...
    • 1/4 эт.
    150 000 000 Р
    Агент
    +7 (986) Показать номер
    Посмотреть контакты
    Офис в Москва ул. Авиаконструктора Сухого, 2к2 (520 м) - Фото 1
    Офис в Москва ул. Авиаконструктора Сухого, 2к2 (520 м) - Фото 2
    2-й этаж, всего 24 этажа

    Офис 520.4 м2 в состоянии под отделку. В новом бизнес-центреРасположен в районе Ходыныки В 6 минута пешком от метро.Здание класса АНалог: УСНСобственник: Юр. лицо.Этаж: 2 из 24Парковка подземная.Системы здания:Вентиляция: приточно-вытяжная.Кондиционирование:...
    • 2/24 эт.
    156 120 000 Р
    Агент
    +7 (985) Показать номер
    Посмотреть контакты
    Офис в Москва Хорошевское ш., 12к1 (507 м) - Фото 1
    Офис в Москва Хорошевское ш., 12к1 (507 м) - Фото 2
    3-й этаж, всего 5 этажей

    Продажа офисного блока класса В+ с отделкой Назначение - размещение собственной компании или арендный бизнесВысока доходность, быстрая окупаемость- смешанная планировка- потолок 3.5- VIP-зона для руководителя- санузел в блоке - панорамное остекление-...
    • 3/5 эт.
    162 720 000 Р
    Агент
    +7 (985) Показать номер
    Посмотреть контакты

    Не нашли подходящего объявления?

    Оставьте заявку, и наши риэлторы подберут офис в районе Москвы

    (0)