Россия, Москва, ул. Академика Семенихина, 2
24 294 820 Р 299 100 $ или 258 900

Информация о помещении и здании

10
Этаж
23
Этажность
Развернуть
Агент
+7 (985) 158-20-12
Начать чат с агентом

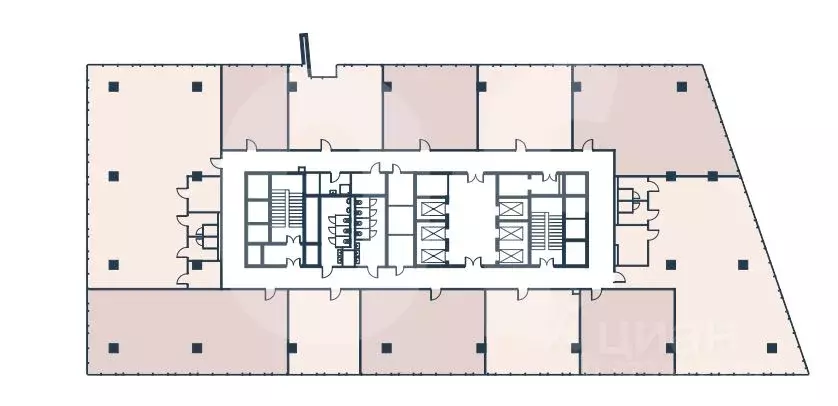
Офис в Москва ул. Академика Семенихина, 2 (55 м)

Продаём офис в бизнес-центре Левел Воронцовская по адресу: Москва, улица Академика Семенихина, 2. Рабочих мест: от 7 до 12*.Площадь: 55 м2.Планировка: смешанная.Состояние: под отделку.Цена за м2:Стоимость:Налог: включая НДС.Собственник: физ. лицо.Этаж: 10 из 23.Охрана: система управления контроля доступа.Метро рядом: м. Воронцовская в 1 минуте пешком, м. Калужская в 5 минутах пешком, м. Новаторская в 15 минутах пешком. Этот адрес обслуживает налоговая 9. Парковка подземная.Системы здания:Вентиляция: приточно-вытяжная.Кондиционирование: центральное.Пожарная сигнализация: спринклерная система.>ID объекта - 101790.Объявление актуально. Пришлём презентацию объекта и альтернатив (5-10 шт.).*Количество рабочих мест рассчитано автоматически: от 4,5 м2 на человека до 8 м2 на человека.Почему клиенты доверяют нам?1. 12000 объектов коммерческой недвижимости Москвы и Области, включая эксклюзивные и внерыночные.2. Работаем без комиссии и скрытых платежей. Вы заключаете договор напрямую с собственником.3. Профессиональное сопровождение: консультации на каждом этапе, помощь в подборе оптимального решения для вашего бизнеса.4. 17 лет опыта в коммерческой недвижимости.Не тратьте время, доверьте поиски нам Позвоните, и мы оперативно организуем просмотр или подготовим подборку объектов.

Читать полностью
    Позвонить Написать
    24 294 820 Р299 100 $ или 258 900
    Агент
    +7 (985) 158-20-12
    Начать чат с агентом
    Похожие предложения
    Офис в Москва ул. Академика Семенихина, 2 (55 м) - Фото 1
    Офис в Москва ул. Академика Семенихина, 2 (55 м) - Фото 2
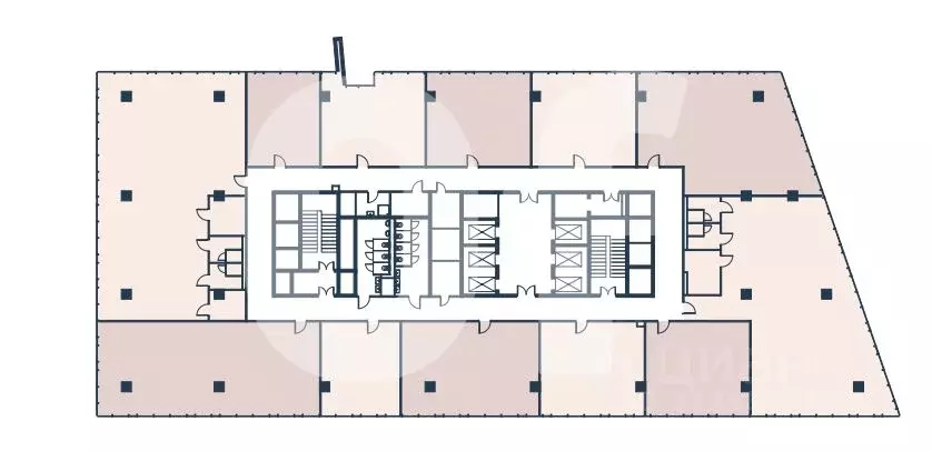
    11-й этаж, всего 23 этажа

    Продаём офис в бизнес-центре Левел Воронцовская по адресу: Москва, улица Академика Семенихина, 2. Рабочих мест: от 7 до 12*.Площадь: 55 м2.Планировка: смешанная.Состояние: под отделку.Цена за м2:Стоимость:Налог: включая НДС.Собственник: физ. лицо.Этаж:...
    • 11/23 эт.
    24 464 330 Р
    Агент
    +7 (985) Показать номер
    Посмотреть контакты
    Офис в Москва Старокалужское ш., 62 (66 м) - Фото 1
    Офис в Москва Старокалужское ш., 62 (66 м) - Фото 2
    1-й этаж, всего 9 этажей

    Предложение на продажу 57965.Предлагается в продажу офисное помещение в бизнес - центре Vallex по адресу Старокалужское шоссе, 62. Помещение на 1 этаже общая площадь 66.4 м2, высота потолков составляет 3,4 м.. . На плане под 17. . Бизнес-центр расположен...
    • 1/9 эт.
    24 568 000 Р
    Агент
    +7 (915) Показать номер
    Посмотреть контакты
    Офис в Москва Старокалужское ш., 62 (73 м) - Фото 1
    Офис в Москва Старокалужское ш., 62 (73 м) - Фото 2
    1-й этаж, всего 9 этажей

    Предложение на продажу 57968.Предлагается в продажу офисное помещение в бизнес - центре Vallex по адресу Старокалужское шоссе, 62. Помещение на 1 этаже общая площадь 73.3 м2, высота потолков составляет 3,4 м.. . На плане под 14. . Бизнес-центр расположен...
    • 1/9 эт.
    23 456 000 Р
    Агент
    +7 (915) Показать номер
    Посмотреть контакты
    5-й этаж, всего 10 этажей

    Лучшее предложение в ЗАО Продажа офисного блока Бизнес-центр класс В+Назначение - офисное, арендный бизнесЗаполненность арендаторами всегда - 100 Доходность от 20 Этаж - 5Помещение с отделкой из премиальных материаловПланировка смешаннаяБольшие окна....
    • 5/10 эт.
    24 975 000 Р
    Агент
    +7 (985) Показать номер
    Посмотреть контакты
    1-й этаж, всего 10 этажей

    Лучшее предложение в ЗАО Продажа офисного блока Бизнес-центр класс В+Назначение - офисное, арендный бизнесЗаполненность арендаторами всегда - 100 Доходность от 20 Этаж - 1Помещение с отделкой из премиальных материаловПланировка смешаннаяБольшие окна....
    • 1/10 эт.
    24 480 000 Р
    Агент
    +7 (985) Показать номер
    Посмотреть контакты

    Не нашли подходящего объявления?

    Оставьте заявку, и наши риэлторы подберут офис в районе Москвы

    (0)