67 930 560 Р 838 500 $ или 723 200

Информация о помещении и здании

15
Этаж
20
Этажность
Развернуть
Агент
+7 (985) 158-20-12
Начать чат с агентом

Офис в Москва Боровское ш., 2 (288 м)

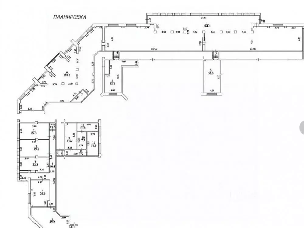
Продаём офис в бизнес-центре Моунт по адресу: г Москва, Боровское шоссе, д 2. Рабочих мест: от 36 до 64*.Площадь: 288 м2.Планировка: смешанная.Состояние: под отделку.Цена за м2:Стоимость:Налог: включая НДС.Собственник: физ. лицо.Этаж: 15 из 20.Охрана: система видео-наблюдения.Метро рядом: м. Говорово в 7 минутах пешком, м. Солнцево в 17 минутах пешком, м. Боровское шоссе в 30 минутах пешком. Этот адрес обслуживает налоговая 29. Парковка наземная охраняемая.Системы здания:Вентиляция: приточно-вытяжная.Кондиционирование: центральное.Пожарная сигнализация: спринклерная система.>ID объекта - 106404.Объявление актуально. Пришлём презентацию объекта и альтернатив (5-10 шт.).*Количество рабочих мест рассчитано автоматически: от 4,5 м2 на человека до 8 м2 на человека.Почему клиенты доверяют нам?1. 12000 объектов коммерческой недвижимости Москвы и Области, включая эксклюзивные и внерыночные.2. Работаем без комиссии и скрытых платежей. Вы заключаете договор напрямую с собственником.3. Профессиональное сопровождение: консультации на каждом этапе, помощь в подборе оптимального решения для вашего бизнеса.4. 17 лет опыта в коммерческой недвижимости.Не тратьте время, доверьте поиски нам Позвоните, и мы оперативно организуем просмотр или подготовим подборку объектов.

Читать полностью
    Позвонить Написать
    67 930 560 Р838 500 $ или 723 200
    Агент
    +7 (985) 158-20-12
    Начать чат с агентом
    Похожие предложения
    Офис в Москва Боровское ш., 2 (285 м) - Фото 1
    Офис в Москва Боровское ш., 2 (285 м) - Фото 2
    18-й этаж, всего 20 этажей

    Продаём офис в бизнес-центре Моунт по адресу: г Москва, Боровское шоссе, д 2. Рабочих мест: от 36 до 63*.Площадь: 285 м2.Планировка: смешанная.Состояние: под отделку.Цена за м2:Стоимость:Налог: включая НДС.Собственник: физ. лицо.Этаж: 18 из 20.Охрана:...
    • 18/20 эт.
    68 397 150 Р
    Агент
    +7 (985) Показать номер
    Посмотреть контакты
    Офис в Москва Боровское ш., 2 (285 м) - Фото 1
    Офис в Москва Боровское ш., 2 (285 м) - Фото 2
    17-й этаж, всего 20 этажей

    Продаём офис в бизнес-центре Моунт по адресу: г Москва, Боровское шоссе, д 2. Рабочих мест: от 36 до 63*.Площадь: 285 м2.Планировка: смешанная.Состояние: под отделку.Цена за м2:Стоимость:Налог: включая НДС.Собственник: физ. лицо.Этаж: 17 из 20.Охрана:...
    • 17/20 эт.
    67 810 050 Р
    Агент
    +7 (985) Показать номер
    Посмотреть контакты
    Продажа офиса 140.7 м2 - Фото 1
    Продажа офиса 140.7 м2 - Фото 2
    Продажа офиса 140.7 м2 - Фото 3
    Продажа офиса 140.7 м2 - Фото 4
    Продажа офиса 140.7 м2 - Фото 5
    Продажа офиса 140.7 м2 - Фото 6
    Продажа офиса 140.7 м2 - Фото 7
    реализуемая площадь 140.7м², 9-й этаж, всего 18 этажей

    Рассрочка 0% до окончания строительства В реализации - офисы в составе бизнес-центра класса А STONE Римская напрямую от застройщика STONE, лидера офисного рынка. Планировки соответствуют требованиям функционального офиса: глубина помещения - до 10 м,...
    • 140.7 м²
    • A
    • 9/18 эт.
    • парковка
    67 113 900 Р
    Агент
    +7 (932) Показать номер
    Посмотреть контакты
    Офис в Москва Челюскинская ул., 9 (261 м) - Фото 1
    Офис в Москва Челюскинская ул., 9 (261 м) - Фото 2
    1-й этаж, всего 14 этажей

    Предложение на продажу 62269.Продажа помещения свободного назначения 260.8 м по адресу Москва, ул. Челюскинская, 9. . Помещение после ремонта — запуск арендатора и эксплуатации без дополнительных капитальных вложений. Возможен формат готового арендного...
    • 1/14 эт.
    68 706 915 Р
    Агент
    +7 (915) Показать номер
    Посмотреть контакты
    3-й этаж, всего 5 этажей

    Продажа офисного блока класса В+ с отделкой Назначение - размещение собственной компании или арендный бизнесВысока доходность, быстрая окупаемость- смешанная планировка- потолок 3.5- VIP-зона для руководителя- санузел в блоке - панорамное остекление-...
    • 3/5 эт.
    68 832 000 Р
    Агент
    +7 (985) Показать номер
    Посмотреть контакты

    Не нашли подходящего объявления?

    Оставьте заявку, и наши риэлторы подберут офис в районе Москвы

    (0)