Россия, Москва, Стоун Савеловская бк
94 655 000 Р 1 218 300 $ или 1 037 800

Информация о помещении и здании

14
Этаж
24
Этажность
Развернуть
Агент
+7 (933) 937-84-91
Начать чат с агентом

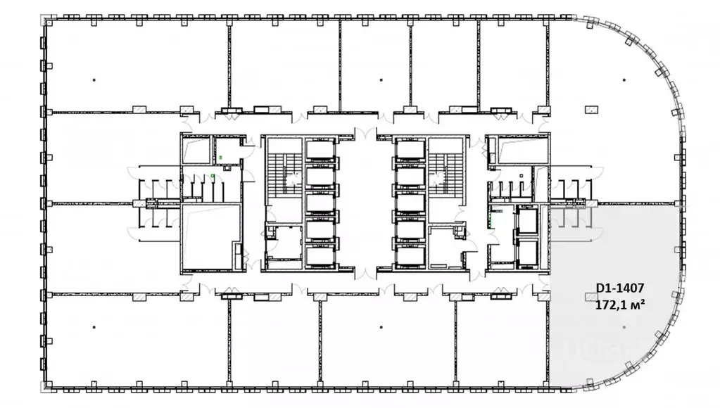
Офис в Москва Стоун Савеловская бк, (172 м)

ПРОДАЖА представительского офиса в бизнес-центре класса А STONE Савеловская в высокой строительной готовности. Срок реализации 2025 год.Бизнес-центр представляет собой две 24-этажные офисные башни, объединенные двухуровневым стилобатом. Общая наземная площадь проекта составит 92 000 м2Характеристики:Планировки офисных этажей соответствуют всем современным требованиям функционального офисного пространства, что позволит организовать любую рассадку сотрудников без снижения уровня комфорта. Увеличенная площадь остекления обеспечит оптимальный уровень инсоляции. - Башня: Tower 1- Этаж 14/24- Площадь: 172,1 м2- Высота потолков от 3,65 - Глубина этажа до 10 м.- Шаг колонн 8,4*8,4- Остекление в пол - Возможность естественного проветривания - Современные инженерные системы - Концепция здорового строительства- Отделка Shell Core - Собственная инфраструктура: столовая, кафе и рестораны, фитнес-центр, торговая галерея- Благоустроенная территория для работы на открытом воздухе- Подземный, наземный, гостевой паркингТранспортная доступность: - 7 мин. пешком от м. Савеловская (кольцевая и радиальная линии) - 7 мин. пешком до МЦД-1 с аэроэкспрессом до Шереметьево и до строящейся станции МЦД-4 - 13 мин. пешком до м. Марьина Роща - 15 мин. до Москва-Сити без пересадок - 500 м от ТТКSTONE — девелопер коммерческой и жилой недвижимости классов бизнес и премиум в Москве с 18-летним опытом. С 2022 года занимает лидирующую позицию на офисном рынке (рейтинг РБК). Сегодня в портфеле девелопера представлено кв. м построенных, строящихся и проектируемых объектов, из которых более 850 тыс. кв. м находятся в стадии строительства. Компания имеет самый масштабный проектный портфель офисной недвижимости класса А на московском рынке (данные NF Group) и возглавляет топ-6 устойчивых девелоперов, согласно исследованию FResearch Forbes. В настоящий момент девелопером представлено 15 бизнес-центров класса А, а также 3 жилых комплекса бизнес+ класса.

Читать полностью
    Позвонить Написать
    94 655 000 Р1 218 300 $ или 1 037 800
    Агент
    +7 (933) 937-84-91
    Начать чат с агентом
    Похожие предложения в Москве
    Офис в Москва наб. Пресненская, 6с2 (135 м) - Фото 1
    Офис в Москва наб. Пресненская, 6с2 (135 м) - Фото 2
    49-й этаж, всего 60 этажей

    Предлагается на продажу офисное помещение в ММДЦ Москва-Сити в башне Империя , общей площадью 135 кв.м. Лот 16. Видовые характеристики: на башни делового комплекса. Функциональная планировка: 4 кабинета, 2 с\у. кухня, опенспейс
    • 49/60 эт.
    95 000 000 Р
    Агент
    +7 (933) Показать номер
    Посмотреть контакты
    Офис в Москва проезд Проектируемый № 4062, 6с2 (341 м) - Фото 1
    Офис в Москва проезд Проектируемый № 4062, 6с2 (341 м) - Фото 2
    6-й этаж, всего 6 этажей

    Предложение на продажу 62511.Продажа офисного помещения в БЦ Порт Плаза по адресу: Проектируемый пр-д 4062, д. 6, строение 2.. Комплекс офисных зданий класса B+ с развитой инфраструктурой, хорошей транспортной доступностью и живописными видами на...
    • 6/6 эт.
    94 310 370 Р
    Агент
    +7 (989) Показать номер
    Посмотреть контакты
    Офис (429.2 м) - Фото 1
    Офис (429.2 м) - Фото 2
    4-й этаж, всего 16 этажей

    Продается офисное помещение на 4 этаже в БЦ Полларс, В+ класса, который находится по адресу: Дербеневская наб., д. 11.Шаговая доступность от м. Павелецкая, Пролетарская. Удобный выезд на ТТК и Садовое Кольцо.В помещении качественная офисная отделка, смешанная...
    • 4/16 эт.
    94 424 000 Р
    Агент
    +7 (925) Показать номер
    Посмотреть контакты
    Офис (242.7 м) - Фото 1
    Офис (242.7 м) - Фото 2
    16-й этаж, всего 21 этаж

    Продается офисное помещение на 16 этаже в БЦ AFI Park Воронцовский, А класса, который находится по адресу: ул. Академика Челомея, д. 1А.Пешая доступность от станций метро Воронцовская, Калужская, Новые Черемушки. Рядом пролегают улицы Наметкина, Обручева,...
    • 16/21 эт.
    95 082 272 Р
    Агент
    +7 (925) Показать номер
    Посмотреть контакты
    Офис (807 м) - Фото 1
    Офис (807 м) - Фото 2
    1-й этаж, всего 2 этажа

    Продается 2-этажное административное здание В класса, которое находится по адресу: ул. Сходненская, д. 10Пешая доступность от станции метро Сходненская. Удобный выезд на Волоколамское шоссе и МКАД.Помещения с отделкой, смешанная планировка. Система вентиляции...
    • 1/2 эт.
    95 000 000 Р
    Агент
    +7 (925) Показать номер
    Посмотреть контакты

    Не нашли подходящего объявления?

    Оставьте заявку, и наши риэлторы подберут офис в районе Москвы

    (0)