150 000 000 Р 1 852 200 $ или 1 585 900

Информация о помещении и здании

1
Этаж
2
Этажность
Развернуть
Агент
+7 (932) 717-17-81
Начать чат с агентом

Офис в Москва Волгоградский просп., 93К2 (861 м)

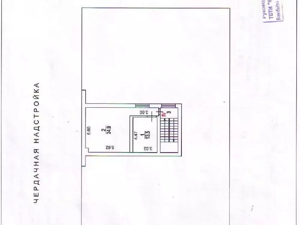
Предложение на продажу 61173.Продается половина отдельно стоящего здания недалеко от метро Кузьминки. . На фото представлены планировки. Рядом есть школа, храм, магазины, фитнес-зал. . Арендаторы - школа танцев, студия йоги, несколько офисов.Этажи с -1 по 3.Без комиссии.

Читать полностью
    Позвонить Написать
    150 000 000 Р1 852 200 $ или 1 585 900
    Агент
    +7 (932) 717-17-81
    Начать чат с агентом
    Похожие предложения
    Офис в Москва Рабочая ул., 91С2 (1054 м) - Фото 1
    Офис в Москва Рабочая ул., 91С2 (1054 м) - Фото 2
    1-й этаж, всего 3 этажа

    Административное здание в шаговой доступности от метро. Удобная транспортная расположенность, в 10 км от МКАД.Налоговая: 09. Лифты: Нет. Вентиляция: Естественная. Кондиционирование: Сплит-системы. Безопасность: Круглосуточная охрана, Система пожаротушений,...
    • 1/3 эт.
    150 000 000 Р
    Агент
    +7 (915) Показать номер
    Посмотреть контакты
    Продажа офиса 283.5 м2 - Фото 1
    Продажа офиса 283.5 м2 - Фото 2
    Продажа офиса 283.5 м2 - Фото 3
    Продажа офиса 283.5 м2 - Фото 4
    Продажа офиса 283.5 м2 - Фото 5
    Продажа офиса 283.5 м2 - Фото 6
    Продажа офиса 283.5 м2 - Фото 7
    Продажа офиса 283.5 м2 - Фото 8
    Продажа офиса 283.5 м2 - Фото 9
    Продажа офиса 283.5 м2 - Фото 10
    Продажа офиса 283.5 м2 - Фото 11
    Продажа офиса 283.5 м2 - Фото 12
    реализуемая площадь 283.5м², 5-й этаж, всего 17 этажей

    Эксклюзивное предложение в ЗАО, ЖК Родина Парк, к5, Москва. Продается премиальный офис класса «А» площадью 283.5 м на 5-м этаже бизнес-центра. Исключительная транспортная доступность: 20 минут до Кремля, 8 - до Кутузовского проспекта, метро «Давыдково»...
    • 283.5 м²
    • 5/17 эт.
    151 365 496 Р
    Агент
    +7 (495) Показать номер
    Посмотреть контакты
    Офис в Москва просп. Вернадского, вл10 (533 м) - Фото 1
    Офис в Москва просп. Вернадского, вл10 (533 м) - Фото 2
    3-й этаж, всего 45 этажей

    Собственник продаетБизнес-центр Vernadsky TowerКласса АПокупка для размещения собственной компании или как арендный бизнес- быстрая окупаемость- высокая доходностьОфисный блокПомещение с качественной отделкойПланировка открытаяПотолок 3,35 м.СИСТЕМА ХОЛОДОСНАБЖЕНИЯ...
    • 3/45 эт.
    159 396 900 Р
    Агент
    +7 (923) Показать номер
    Посмотреть контакты
    Офис в Москва Садовническая ул., 82С2 (323 м) - Фото 1
    Офис в Москва Садовническая ул., 82С2 (323 м) - Фото 2
    2-й этаж, всего 9 этажей

    Офис для своей компании или для бизнесаЛучшее предложение в ЦАО Бизнес-центре класса PRIME- Доходность от 30 - Быстрая окупаемость- НДС включен- смешанная планировка- потолок 3.5- VIP- окна в пол- максимальная инсоляция- возможность проветривания- центральное...
    • 2/9 эт.
    154 800 000 Р
    Агент
    +7 (923) Показать номер
    Посмотреть контакты
    Офис в Москва Ленинградский просп., 37/8 (422 м) - Фото 1
    Офис в Москва Ленинградский просп., 37/8 (422 м) - Фото 2
    3-й этаж, всего 22 этажа

    Офис для своей компании или для бизнесаЛучшее предложение в САО Первая линия Ленинградского проспектаИнфраструктура Prime ParkБизнес-центре класса PRIME- Доходность от 30 - Быстрая окупаемость- НДС включен- смешанная планировка- потолок 3.5- VIP- окна...
    • 3/22 эт.
    154 139 500 Р
    Агент
    +7 (923) Показать номер
    Посмотреть контакты

    Не нашли подходящего объявления?

    Оставьте заявку, и наши риэлторы подберут офис в районе Москвы

    (0)