Реализация объекта недвижимости приостановлена

Информация о помещении и здании

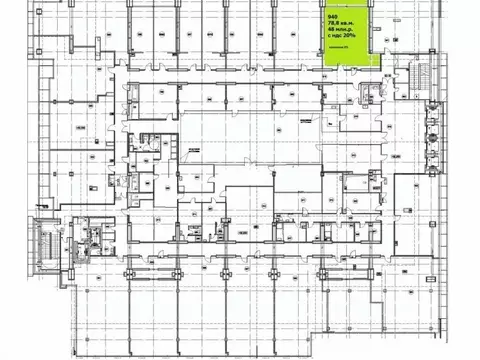
4
Этаж
29
Этажность
Развернуть

Офис в Москва Рябиновая ул., 44 (181 м)

ID: o94659Уважаемый Покупатель, предлагаем Вам приобрести в БЦ LINK, башня RUNE офис 180.9 м на 4 этаже в собственность на выгодных условиях.Приточно-вытяжная вентиляция. Центральное кондиционирование. Пожарная сигнализация. Интернет, телефония. Охрана. Видеонаблюдение. Система контроля доступа. Подземная парковка. В 10 минутах от м. ОзернаяБыстро реагируем на обращения, организуем встречу на объекте в удобное для Вас время, направим план помещения и ответим на все возникшие вопросы Звоните сейчас и получите лучшие условия на рынке

Читать полностью

    Реализация объекта недвижимости приостановлена

    Не нашли подходящего объявления?

    Оставьте заявку, и наши риэлторы подберут офис в районе Москвы

    (0)