14 900 000 Р 199 200 $ или 168 100

Информация о квартире

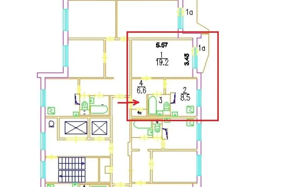
38.3 м2
Площадь
19.2 м2
Жилая
8.5 м2
Кухня
1
Комната
8
Этаж
17
Этажность
19.2 м2
Площадь комнат
1985
Построен

Состояние и оснащение

Наличие балкона
есть
Вид из окон
двор и улица
Ремонт
капитальный
Окна
пластиковые
Покрытие пола
ламинат
Мебель
современная
Мебель на кухне
есть
Количество санузлов
1
Тип санузла
совмещенный
Лифт
есть
Парковка
есть
Мусоропровод
есть

Дополнительная информация

Тип дома
панельный
Тип комнат
раздельные
Лифт
пассажирский и грузовой
Наличие парковки
стихийная парковка
Тип продажи
свободная
Правоустанавливающие документы
договор купли/продажи
Собственников
1

Оснащённость

Плита
электрическая
Холодильник
есть
Домофон
есть

Территория

Сквер
есть
Парковая зона
есть
Детская площадка
есть
Фитнес-клуб
есть
Круглосуточный магазин
есть
Торговый центр
есть
Аптека
есть
Развернуть
Фатина Наталия Владимировна
PRO
+7 (915) 400-44-10
Профессионал AFY.ru с 2015 г.
Начать чат с агентом

Купить однокомнатную квартиру 38.3м ул. Маршала Голованова, 1, Москва

Прекрасная квартира с новым ремонтом с панорамными видами из окон на парковую зону, в 7 минутах ходьбы от метро Марьино.

ПАРАМЕТРЫ КВАРТИРЫ

Общая площадь квартиры 38, 3м2 (без учета балкона). Комната 19,2 м2 с застекленным утепленным балконом, кухня 8,5 м2.

Кухня оборудована гарнитуром Мария со встроенной техникой (вытяжка Haier, варочная панель и духовка ELECTROLUX, холодильник LG). Комната оснащена гарнитуром (шкаф, два комода, книжные полки), новые диван и кресло раздвижные. Балкон из комнаты, утеплен, на полу ламинат. В коридоре вместительный шкаф-купе. С/У совместный. Качественные пластиковые окна, вид из окон на к/т Экран и на парковую зону с каскадом прудов. Электрика Legrand. На стенах дорогие обои, на полу ламинат, новая мебель, текстиль на окнах. Ремонт выполнен в 2017 году в эко тонах с преобладанием теплых пастельных природных оттенков, в квартире практически не жили.

Комфортный 8-ый этаж, красивые рассветы и закаты, соседние дома расположены на большом расстоянии друг от друга, ничего не мешает обзору.

Панельный дом серии П44 1985 года постройки. Потолки 2,64м. В подъезде широкая входная группа, 2 лифта грузовой и пассажирский.

ИНФРАСТРУКТУРА
В шаговой доступности средние общеобразовательные школы, детские сады, государственные поликлиники (детская в 100м), МEDСИ прямо у дома, продуктовые рынки и магазины, Дикси, Улыбка Радуги, бассейн Марьино, парковая зона с водоемами и набережная Москва реки, оборудованы пешеходные и вело дорожки со скамейками, несколько спортивных баз и площадок. В 7 минутах ходьбы метро Марьино, Марьинский пассаж, Аква Фэнтази парк с водяными горками и термальными спа, МФЦ, к/т Экран с Фитнес клубом. Парковка стихийная у дома мест всегда предостаточно.
Один взрослый собственник (не пенсионер), ДКП 2017 года. Без перепланировок. Более 9 лет владения, выписка до сделки, свободная продажа.

Читать полностью

    Для того, чтобы купить однокомнатную квартиру по адресу: м. Марьино, ул. Маршала Голованова, 1, позвоните по телефону +7 (915) 400-44-10. Торопитесь! Объявление №345533096 о продаже однокомнатной квартиры опубликовано 30 апреля 2026.

    Позвонить Написать
    14 900 000 Р199 200 $ или 168 100
    Фатина Наталия Владимировна
    PRO
    +7 (915) 400-44-10
    Профессионал AFY.ru с 2015 г.
    Начать чат с агентом
    Похожие предложения
    1-к кв. Москва ул. Маршала Голованова, 14 (36.5 м) - Фото 1
    1-к кв. Москва ул. Маршала Голованова, 14 (36.5 м) - Фото 2
    1-комнатная квартира, общая площадь 36м², жилая 19м², кухня 8м²

    Продаётся светлая и уютная 1-комнатная квартира в одном из самых удобных и зелёных мест района Марьино — ул. Маршала Голованова, д. 14.Квартира расположена на комфортном 9 этаже 17-этажного дома. Общая площадь — 36,5 м, жилая комната — 19 м, кухня — 8...
    • 36 м²
    • 1-ком
    • 9/17 эт.
    • панельный
    14 500 000 Р
    Агент
    +7 (934) Показать номер
    Посмотреть контакты
    1-к кв. Москва Луговой проезд, 4К2 (37.6 м) - Фото 1
    1-к кв. Москва Луговой проезд, 4К2 (37.6 м) - Фото 2
    1-комнатная квартира, общая площадь 37м², жилая 19м², кухня 8м²

    Продается отличный вариант 1 комнатной квартиры, Панельный дом, Серия П 44, свежий косметический ремонт, санузел совмещенный, полы в коридор, кухня и сан узел плитка,в комнате ламинат,все делалось для себя, окна пвх, вся необходимая современная мебель,...
    • 37 м²
    • 1-ком
    • 6/10 эт.
    • панельный
    14 800 000 Р
    Агент
    +7 (985) Показать номер
    Посмотреть контакты
    отдел Трейд ин /Есть взаимозачёт! - Фото 1
    отдел Трейд ин /Есть взаимозачёт! - Фото 2
    отдел Трейд ин /Есть взаимозачёт! - Фото 3
    отдел Трейд ин /Есть взаимозачёт! - Фото 4
    отдел Трейд ин /Есть взаимозачёт! - Фото 5
    отдел Трейд ин /Есть взаимозачёт! - Фото 6
    Онлайн-показ! 1-комнатная квартира, с косметическим ремонтом, общая площадь 45м², жилая 20м², кухня 12м², с балконом, пластиковые стеклопакеты

    Купить квартиру в Москве, можно уже сегодня! Можем так же по программе Трейд ин купить Вашу квартиру, а Вы купите эту. Звоните! Лучшее предложение в районе! Документы готовы к сделке. Свободная продажа. Полная стоимость в договоре! Оперативный...
    • 45 м²
    • 1-ком
    • 10/17 эт.
    • кирпичный
    14 000 000 Р
    Онлайн показ Доступен онлайн-показ
    PRO
    +7 (967) Показать номер
    Посмотреть контакты
    Продается 2-комнатная квартира - Фото 1
    Продается 2-комнатная квартира - Фото 2
    2-комнатная квартира, общая площадь 40м², жилая 27м², кухня 6м²

    Лот 73488 ДОМ ПОД СНОС, РЕНОВАЦИЯ 2029г. Квартира в среднем состоянии с изолированными комнатами; сдается в аренду, что является дополнительным доходом и компенсацией затрат для покупателя. Первичные документы: приватизация более 20 лет, 1 собственник,...
    • 40 м²
    • 2-ком
    • 3/5 эт.
    14 500 000 Р
    Агент
    +7 (926) Показать номер
    Посмотреть контакты
    Продается 2-комнатная квартира - Фото 1
    Продается 2-комнатная квартира - Фото 2
    2-комнатная квартира, общая площадь 44м², жилая 30м², кухня 6м²

    Арт.Тихое место для лучшей жизни Продается 2-х комнатная квартира 8-10 минут до ст. метро Профсоюзная или Новые Черемушки. Комнаты смежные, совмещенный санузел, балкон. Вид из окон во двор. Один взрослый собственник. Прописанных нет. Наследство от 2013...
    • 44 м²
    • 2-ком
    • 7/9 эт.
    14 100 000 Р
    Агент
    +7 (920) Показать номер
    Посмотреть контакты

    Не нашли подходящего объявления?

    Оставьте заявку, и наши риэлторы подберут квартиру в районе Москвы

    (0)