42 000 000 Р 563 100 $ или 478 500

Информация о квартире

112.2 м2
Площадь
74.1 м2
Жилая
14.5 м2
Кухня
3
Комнаты
24
Этаж
26
Этажность
12.8/23/38.3 м2
Площадь комнат

Состояние и оснащение

Наличие балкона
2 лоджии
Вид из окон
двор и улица
Мебель
отсутствует
Количество санузлов
2
Тип санузла
раздельный
Лифт
есть

Дополнительная информация

Тип дома
монолит
Лифт
пассажирский
Тип продажи
альтернатива
Собственников
1
Возможность ипотеки
да
Развернуть
Агент
МИЭЛЬ
+7 (499) 372-93-34
Начать чат с агентом

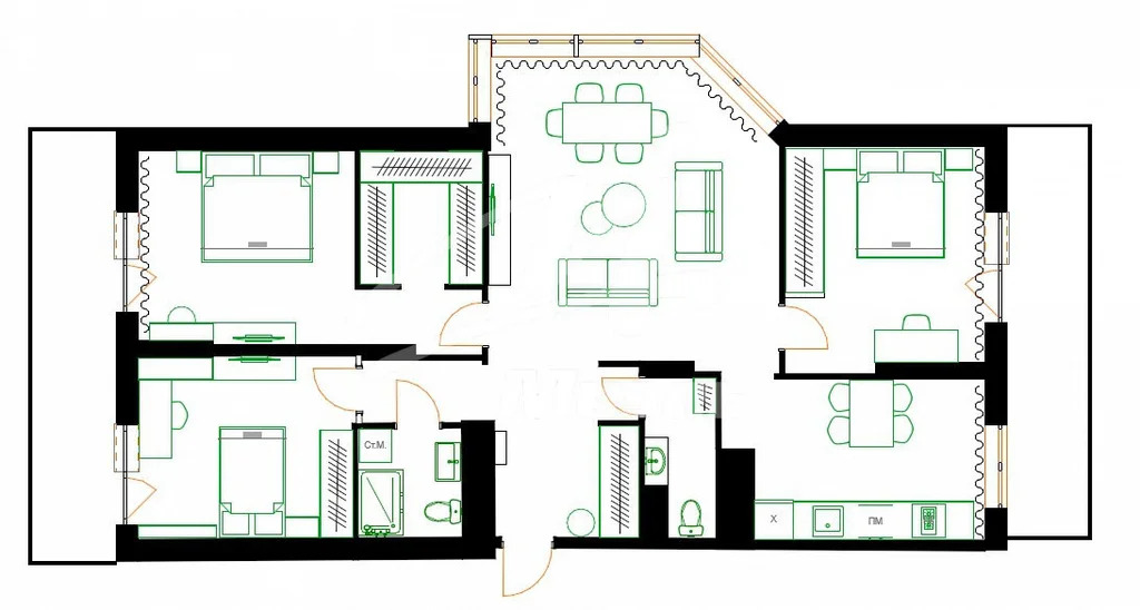
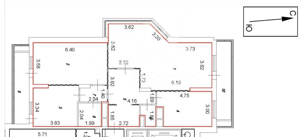
Продажа квартиры, Балаклавский пр-кт.

Арт.
Прекрасная видовая трехкомнатная квартира. ЧЕСТНАЯ площадь по БТИ - 112,2 м2! С учётом площади двух лоджий - около 135 м2!
Смотрите внимательно планировку! Таких квартир всего 5 во всём доме!
Квартира расположена на 24 этаже 26-этажного дома.
Уникальность данной квартиры - планировка! Огромный эркер с панорамными окнами во всю стену в гостиной, откуда открывается великолепный вид на Москву! Окна выходят на 3 стороны, с двух сторон - большие лоджии.
Планировка квартиры позволяет воплотить в жизнь самый смелый дизайн-проект. Возможно изменение планировки на Евро-4 (см.фото).
По плану БТИ квартира состоит из кухни площадью 14,5 м2, комнат 12,8 и 23 м2 и просторной гостиной площадью 38 м2. Два санузла, просторная прихожая, где можно оборудовать места для хранения вещей.
Дом новый, территория огорожена, въезд через шлагбаум. Есть подземный паркинг.
Все соседи - очень приличные люди.
Район с развитой транспортной и социальной инфраструктурой.
Рядом с домом много мест для прогулок и активного отдыха: большой лесной массив, Битцевский лесопарк, Большой Чертановский пруд с зонами отдыха, каток Битца, конно-спортивный клуб, спортклуб, бассейн, Битцевская лыжня.
Рядом школы, детские сады, библиотека, поликлиника, аптеки, супермаркеты.
До ближайшего метро Чертановская 10 минут спокойным шагом.
На автомобиле удобный выезд на Балаклавский проспект, откуда можно легко попасть на Юго-восточную хорду, и все основные автомобильные развязки Москвы.

По запросу предоставим дополнительно видео.
Для получения дополнительной информации и записи на просмотр звоните!
Показ оперативный, ключи на руках!

Покупая квартиру в МИЭЛЬ Химки, вы получаете:Правовой сертификат, подтверждающий юридическую проверку объекта
Помощь в одобрении ипотеки в 20+ Банках-партнёрах
Комфортные и безопасные условия сделки.

Читать полностью

    Для того, чтобы купить трехкомнатную квартиру по адресу: Балаклавский пр-кт., 15, позвоните по телефону +7 (499) 372-93-34. Торопитесь! Объявление №345528531 о продаже трехкомнатной квартиры опубликовано Сегодня.

    Позвонить Написать
    42 000 000 Р563 100 $ или 478 500
    Агент
    МИЭЛЬ
    +7 (499) 372-93-34
    Начать чат с агентом
    Похожие предложения
    Продается 3-комнатная квартира - Фото 1
    Продается 3-комнатная квартира - Фото 2
    3-комнатная квартира, общая площадь 112м², жилая 74м², кухня 14м²

    Арт.Прекрасная видовая трехкомнатная квартира. ЧЕСТНАЯ площадь по БТИ - 112,2 м2 С учётом площади двух лоджий - около 135 м2 Смотрите внимательно планировку Таких квартир всего 5 во всём доме Квартира расположена на 24 этаже 26-этажного дома. Уникальность...
    • 112 м²
    • 3-ком
    • 24/26 эт.
    42 000 000 Р
    Агент
    +7 (499) Показать номер
    Посмотреть контакты
    Продажа квартиры, Пролетарский пр-кт. - Фото 1
    Продажа квартиры, Пролетарский пр-кт. - Фото 2
    Продажа квартиры, Пролетарский пр-кт. - Фото 3
    Продажа квартиры, Пролетарский пр-кт. - Фото 4
    Продажа квартиры, Пролетарский пр-кт. - Фото 5
    Продажа квартиры, Пролетарский пр-кт. - Фото 6
    Продажа квартиры, Пролетарский пр-кт. - Фото 7
    Продажа квартиры, Пролетарский пр-кт. - Фото 8
    Продажа квартиры, Пролетарский пр-кт. - Фото 9
    Продажа квартиры, Пролетарский пр-кт. - Фото 10
    Продажа квартиры, Пролетарский пр-кт. - Фото 11
    Продажа квартиры, Пролетарский пр-кт. - Фото 12
    Продажа квартиры, Пролетарский пр-кт. - Фото 13
    Продажа квартиры, Пролетарский пр-кт. - Фото 14
    Продажа квартиры, Пролетарский пр-кт. - Фото 15
    Продажа квартиры, Пролетарский пр-кт. - Фото 16
    Продажа квартиры, Пролетарский пр-кт. - Фото 17
    Продажа квартиры, Пролетарский пр-кт. - Фото 18
    Продажа квартиры, Пролетарский пр-кт. - Фото 19
    Продажа квартиры, Пролетарский пр-кт. - Фото 20
    4-комнатная квартира, общая площадь 117.3м², жилая 70.5м², кухня 16м², с балконом

    Арт. Прекрасная квартира функциональной планировки в формате кухня-гостиная 25 м2 и три просторные изолированные комнаты в современном ЖК "Миллион Алых Роз". Общая площадь квартиры 117.3 м2, 7 этаж 23-этажного монолитного дома, два с/у, гардеробная...
    • 117.3 м²
    • 4-ком
    • 7/23 эт.
    • монолит
    43 000 000 Р
    Агент
    +7 (499) Показать номер
    Агентство
    МИЭЛЬ
    Посмотреть контакты
    Продам 3-комн. квартиру 83.2 кв.м. - Фото 1
    Продам 3-комн. квартиру 83.2 кв.м. - Фото 2
    Продам 3-комн. квартиру 83.2 кв.м. - Фото 3
    Продам 3-комн. квартиру 83.2 кв.м. - Фото 4
    Продам 3-комн. квартиру 83.2 кв.м. - Фото 5
    Продам 3-комн. квартиру 83.2 кв.м. - Фото 6
    Продам 3-комн. квартиру 83.2 кв.м. - Фото 7
    Продам 3-комн. квартиру 83.2 кв.м. - Фото 8
    Продам 3-комн. квартиру 83.2 кв.м. - Фото 9
    Продам 3-комн. квартиру 83.2 кв.м. - Фото 10
    Продам 3-комн. квартиру 83.2 кв.м. - Фото 11
    Продам 3-комн. квартиру 83.2 кв.м. - Фото 12
    Продам 3-комн. квартиру 83.2 кв.м. - Фото 13
    Продам 3-комн. квартиру 83.2 кв.м. - Фото 14
    Продам 3-комн. квартиру 83.2 кв.м. - Фото 15
    Продам 3-комн. квартиру 83.2 кв.м. - Фото 16
    Продам 3-комн. квартиру 83.2 кв.м. - Фото 17
    Продам 3-комн. квартиру 83.2 кв.м. - Фото 18
    Продам 3-комн. квартиру 83.2 кв.м. - Фото 19
    Продам 3-комн. квартиру 83.2 кв.м. - Фото 20
    3-комнатная квартира, без ремонта, общая площадь 83.2м², жилая 46.3м², кухня 14.3м²

    Продается 3-комн. квартира, площадью 83.2 кв.м. Жилая площадь 46.3 кв. м, кухня 14.3 кв. м, ремонта нет, окна выходят во двор. Квартира располагается на 3 этаже 37-этажного монолитного дома. Дом оборудован пассажирским лифтом, есть мусоропровод,...
    • 83.2 м²
    • 3-ком
    • 3/37 эт.
    • монолит
    41 632 864 Р
    Агент
    +7 (495) Показать номер
    Посмотреть контакты
    Продажа квартиры, Большой Гнездниковский переулок - Фото 1
    Продажа квартиры, Большой Гнездниковский переулок - Фото 2
    Продажа квартиры, Большой Гнездниковский переулок - Фото 3
    Продажа квартиры, Большой Гнездниковский переулок - Фото 4
    Продажа квартиры, Большой Гнездниковский переулок - Фото 5
    Продажа квартиры, Большой Гнездниковский переулок - Фото 6
    Продажа квартиры, Большой Гнездниковский переулок - Фото 7
    Продажа квартиры, Большой Гнездниковский переулок - Фото 8
    3-комнатная квартира, общая площадь 59.8м²

    . Квартира, 3-комн., 59,8 м, ЦАО, (м.Тверская) | ЦАО, Большой Гнездниковский пер., д. 10, Этаж № 4, кв. 429 | Метро: Тверская (пешком 2 мин., транспортом 2 мин., расстояние 0.11 км) Характеристики: Год постройки: 1914 Наличие лифта: Нет Наличие грузового...
    • 59.8 м²
    • 3-ком
    • 4/10 эт.
    41 938 000 Р
    PRO
    +7 (922) Показать номер
    Посмотреть контакты
    Дизайнерский ремонт во французском стиле с 2-я спальнями (ном. ... - Фото 1
    Дизайнерский ремонт во французском стиле с 2-я спальнями (ном. ... - Фото 2
    Дизайнерский ремонт во французском стиле с 2-я спальнями (ном. ... - Фото 3
    Дизайнерский ремонт во французском стиле с 2-я спальнями (ном. ... - Фото 4
    Дизайнерский ремонт во французском стиле с 2-я спальнями (ном. ... - Фото 5
    Дизайнерский ремонт во французском стиле с 2-я спальнями (ном. ... - Фото 6
    Дизайнерский ремонт во французском стиле с 2-я спальнями (ном. ... - Фото 7
    Дизайнерский ремонт во французском стиле с 2-я спальнями (ном. ... - Фото 8
    Дизайнерский ремонт во французском стиле с 2-я спальнями (ном. ... - Фото 9
    Дизайнерский ремонт во французском стиле с 2-я спальнями (ном. ... - Фото 10
    2-комнатная квартира, общая площадь 70м², жилая 50м², кухня 10м²

    ID: 9580 Уютный в светлых оттенках новейший дизайнерский ремонт из качественных материалов! Предусмотрено 2 спальни (одна со своей гардеробной), просторная кухня-гостинная с большим количеством окон (полностью меблирована и укомплектована всей необходимой...
    • 70 м²
    • 2-ком
    • 13/29 эт.
    • монолит
    42 000 000 Р
    Агент
    +7 (901) Показать номер
    Агентство
    Panda Estate
    Посмотреть контакты

    Не нашли подходящего объявления?

    Оставьте заявку, и наши риэлторы подберут квартиру в районе Москвы

    (0)