м. Отрадное, 15 мин. пешком
77:02:0007001:3369
10 844 000 Р 138 600 $ или 117 700

Информация о квартире

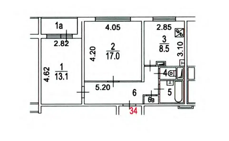
51.9 м2
Площадь
30.1 м2
Жилая
8.5 м2
Кухня
2
Комнаты
10
Этаж
14
Этажность
30.1 м2
Площадь комнат
1992
Построен

Состояние и оснащение

Наличие балкона
лоджия
Количество санузлов
1
Тип санузла
раздельный

Дополнительная информация

Тип дома
панельный
Цена в ДКП
полная
Тип продажи
свободная
Вид собственника
юридическое лицо
Прописаны дети
нет
Собственников
1
Возможность ипотеки
да
Развернуть
Агент
Николай
+7 (495) 981-07-58
Начать чат с агентом

продажа квартиры

Квартира свободная от имущества, никто не зарегистрирован и не проживает. Возможен показ, возможна ипотека.

Читать полностью

    Для того, чтобы купить двухкомнатную квартиру по адресу: м. Отрадное, Алтуфьевское ш., 40Г, позвоните по телефону +7 (495) 981-07-58. Торопитесь! Объявление №345525612 о продаже двухкомнатной квартиры опубликовано 11 декабря 2025.

    Позвонить Написать
    10 844 000 Р138 600 $ или 117 700
    Агент
    Николай
    +7 (495) 981-07-58
    Начать чат с агентом
    Похожие предложения
    Свободной планировки кв. Москва Алтуфьевское ш., 40Г (51.9 м) - Фото 1
    Свободной планировки кв. Москва Алтуфьевское ш., 40Г (51.9 м) - Фото 2
    общая площадь 51м²

    Данные получены с сайта ГИС Торги.Продажа жилого помещения, находящегося в хозяйственном ведении ГУП Моссоцгарантия , расположенного по адресу: Российская Федерация, город Москва, вн.тер.г. муниципальный округ Отрадное, шоссе Алтуфьевское, дом 40Г, квартира...
    • 51 м²
    • 1/14 эт.
    10 844 000 Р
    Агент
    +7 (933) Показать номер
    Посмотреть контакты
    2-к кв. Москва Алтуфьевское ш., 40Г (51.9 м) - Фото 1
    2-к кв. Москва Алтуфьевское ш., 40Г (51.9 м) - Фото 2
    2-комнатная квартира, общая площадь 51м²

    Объект реализуется на городских торгах Дополнительная информация и документы расположены на Инвестиционном портале города Москвы по ссылке:https://investmoscow. ru/tenders/tender/19952835?utm_source=cian utm_me dium=razmeshenie-obectov utm_campaign=flatSale...
    • 51 м²
    • 2-ком
    • 10/14 эт.
    10 844 000 Р
    Агент
    +7 (985) Показать номер
    Посмотреть контакты
    2-к кв. Москва Алтуфьевское ш., 40Г (51.9 м) - Фото 1
    2-к кв. Москва Алтуфьевское ш., 40Г (51.9 м) - Фото 2
    2-комнатная квартира, общая площадь 51м²

    2-комн. кв., 51,9 кв.м--------------------Продажа квартира, Алтуфьевское шоссе, дом 40Г, этаж 10--------------------
    • 51 м²
    • 2-ком
    • 10/14 эт.
    10 844 000 Р
    Агент
    +7 (985) Показать номер
    Посмотреть контакты
    Продается 2-комнатная квартира - Фото 1
    Продается 2-комнатная квартира - Фото 2
    2-комнатная квартира, общая площадь 45м², жилая 38м², кухня 7м²

    Продается уютная 2-комнатная квартира на 2 этаже. Квартира находится на Алтуфьевском шоссе, д. 40. Общая площадь 45,7 кв. м. Две изолированные комнаты, просторная кухня и лоджия. Квартира в хорошем состоянии, выполнен качественный ремонт. Установлены...
    • 45 м²
    • 2-ком
    • 2/12 эт.
    11 800 000 Р
    Агент
    +7 (930) Показать номер
    Посмотреть контакты
    Продается 2-комнатная квартира - Фото 1
    2-комнатная квартира, общая площадь 45м², жилая 38м², кухня 7м²

    Продается уютная 2-комнатная квартира на 2 этаже. Квартира находится на Алтуфьевском шоссе, д. 40. Общая площадь 45,7 кв. м. Две изолированные комнаты, просторная кухня и лоджия. Квартира в хорошем состоянии, выполнен качественный ремонт. Установлены...
    • 45 м²
    • 2-ком
    • 2/12 эт.
    11 999 888 Р
    Агент
    +7 (930) Показать номер
    Посмотреть контакты

    Не нашли подходящего объявления?

    Оставьте заявку, и наши риэлторы подберут квартиру в районе Москвы

    (0)