Узнать последнюю цену

Реализация объекта недвижимости приостановлена

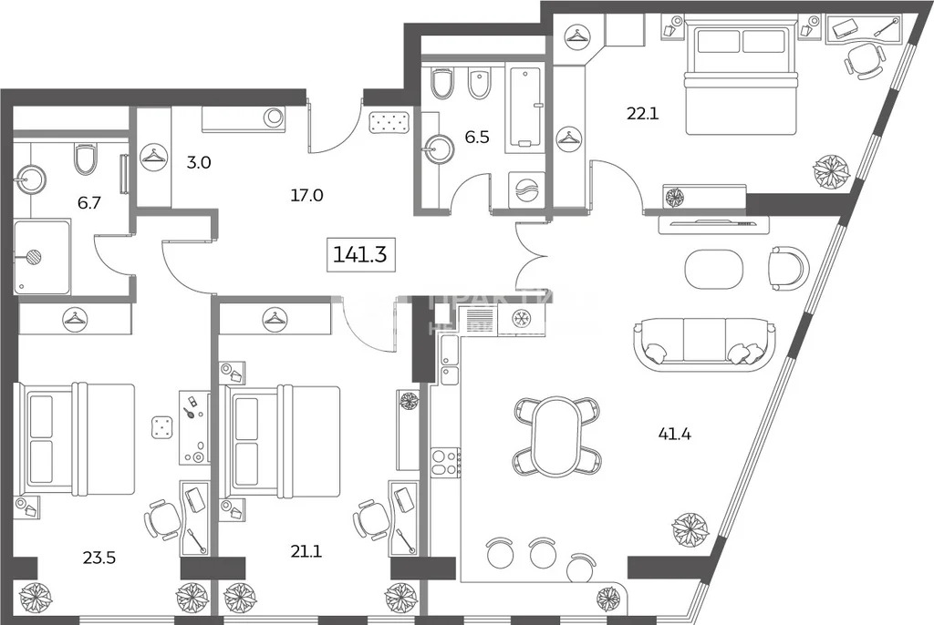
Информация о квартире

143.7 м2
Площадь
90.0 м2
Жилая
40.0 м2
Кухня
3
Комнаты
6
Этаж
29
Этажность
90 м2
Площадь комнат
2022
Построен

Состояние и оснащение

Тип санузла
совмещенный
Лифт
есть

Дополнительная информация

Тип дома
монолит
Тип комнат
смежные
Лифт
пассажирский
Тип продажи
свободная
Собственников
1
Возможность ипотеки
да
Развернуть

Продажа квартиры, ул. Мытная

Код объекта: 1568660. Работаем от собственника. Предлагается квартира в жилом комплексе бизнес-класса "Sky House" на 6 этаже, площадью 143,7 кв. м., свободная планировка с возможностью разместить 3-4 спальни и гостиную. ПЛАНИРОВКА: - КУХНЯ-ГОСТИНАЯ - МАСТЕР-СПАЛЬНЯ С ВАННОЙ КОМНАТОЙ И ГАРДЕРОБНОЙ - ДВЕ КОМНАТЫ СВОБОДНОГО НАЗНАЧЕНИЯ (СПАЛЬНЯ/ДЕТСКАЯ/КАБИНЕТ) - ВАННАЯ КОМНАТА - ГОСТЕВОЙ С/У - ГАРДЕРОБНАЯ. Жилой комплекс Sky House полностью сдан. В здании предусмотрено 3 скоростных лифта, современные системы сигнализации и пожаротушения, видеонаблюдение и контроль доступа, огороженная территория, центральная система кондиционирования, собственная служба эксплуатации и безопасности. ИНФРАСТРУКТУРА: Закрытый двор, большая игровая площадка. В пешей доступности располагаются Школа 1553, центр образования 1496, детский сад 2204, детский сад 281. Имеется двухуровневый ПОДЗЕМНЫЙ ПАРКИНГ на 1330 мест и гостевая парковка на 39 мест. Рядом, в пешей доступности,асположены: парк Музеон, парк Горького, Нескучный сад и Крымская набережная. Также в непосредственной близости находятся Шуховская башня и Донской Ставропигиальный мужской монастырь, Свято-Даниловский монастырь с резиденцией Патриарха. РАСПОЛОЖЕНИЕ: комплекс находится поблизости от пяти станций метро: Шаболовка, Добрынинская, Серпуховская, Октябрьская, Тульская. До Садового кольца - 2 минуты на машине.

Читать полностью
    Узнать последнюю цену

    Реализация объекта недвижимости приостановлена

    Не нашли подходящего объявления?

    Оставьте заявку, и наши риэлторы подберут квартиру в районе Москвы

    (0)