Узнать последнюю цену

Реализация объекта недвижимости приостановлена

Информация о квартире

65.7 м2
Площадь
42.9 м2
Жилая
6.0 м2
Кухня
3
Комнаты
4
Этаж
9
Этажность
14.4/14.3/14.1 м2
Площадь комнат
1979
Построен

Состояние и оснащение

Наличие балкона
есть
Вид из окон
двор и улица
Ремонт
евроремонт
Окна
пластиковые
Входная дверь
железная
Покрытие пола
паркет
Мебель
современная
Мебель на кухне
есть
Количество санузлов
1
Тип санузла
совмещенный
Лифт
есть
Парковка
есть
Мусоропровод
есть

Дополнительная информация

Тип дома
панельный
Тип комнат
раздельные
Свободная планировка
нет
Лифт
пассажирский
Наличие парковки
стихийная парковка
Перекрытия
ж/б
Состояние подъезда
отличное
Цена в ДКП
полная
Тип продажи
свободная
Правоустанавливающие документы
договор купли/продажи
Вид собственника
физическое лицо
Прописаны дети
нет
Собственников
2
Возможность ипотеки
да

Оснащённость

Наличие интернета
подключен
Телефон
есть возможность подключить
Плита
электрическая
Холодильник
есть
СВЧ-печь
есть
Кондиционер
есть
Посудомоечная машина
есть
Стиральная машина
есть
Разноуровневое освещение
есть
Спутниковое ТВ
есть
Домофон
есть
Видеонаблюдение
есть

Территория

Сквер
есть
Парковая зона
есть
Детская площадка
есть
Фитнес-клуб
есть
Круглосуточный магазин
есть
Торговый центр
есть
Аптека
есть
Развернуть

3-комнатная квартира в 15 минутах пешком до метро Строгино

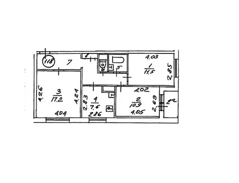
Продается 3-комнатная квартира 65, 7 кв. м. в г. Москве в 15 минутах пешком до станции метро Строгино.

Квартира с современным дизайнерским ремонтом. Вся встроенная мебель и техника входит в стоимость квартиры! По планировке евро-трешка: кухня-гостиная 20,4 кв. м, 2 спальные комнаты 14,3 и 14,1 кв. м, застекленная лоджия с окнами в пол. Теплые полы в санузле, на кухне и прихожей. Санузел совмещенный. Квартира расположена на 4 этаже 9-этажного жилого дом (панельный, перекрытия ж/б, 1979 г.п.).

Престижный район Строгино СЗАО с прекрасно развитой инфраструктурой в пешей доступности: несколько детских садов и школ, множество супермаркетов, поликлиники и т.д. Рядом парковая зона и р. Москва, очень уединенное и живописное место.

По документам: основание собственности - договор купли-продажи, более 3 лет в собственности, 2 взрослых собственника. Полная стоимость в договоре! Свободная продажа.

Возможна ипотека. Для покупателей без достаточной суммы наличных денег поможем одобрить ипотечный кредит (в том числе без первоначального взноса, работаем со всеми банками). Звоните.

Читать полностью
    Узнать последнюю цену

    Реализация объекта недвижимости приостановлена

    Не нашли подходящего объявления?

    Оставьте заявку, и наши риэлторы подберут квартиру в районе Москвы

    (0)