24 200 000 Р 323 400 $ или 276 500

Информация о квартире

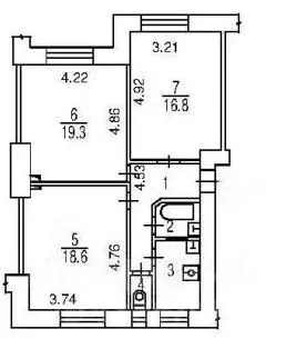
70 м2
Площадь
45 м2
Жилая
8 м2
Кухня
3
Комнаты
2
Этаж
16
Этажность

Дополнительная информация

Тип дома
блочный
Развернуть
Агент
+7 (916) 573-04-26
Начать чат с агентом

3-к кв. Москва Бакунинская ул., 38-42С1 (70.0 м)

Номер объекта: 540360. Id 3104. Продаю 3-х комнатную квартиру в Центральном округе г. Москвы в Басманном районе.Дом после капитального ремонта с заменой всех инженерных сетей, чистый отремонтированный подъезд, имеется консьерж. Дом теплый, с хорошей шумоизоляцией. Закрытый тихий двор, въезд для автомобилей через шлагбаум, своя детская площадка. Квартира расположена на втором этаже, окна выходят во внутренний двор. Удобная планировка с изолированными комнатами и большой лоджией (5 кв. м), просторной прихожей (8 кв. м) и вместительным сан. узлом. В указанную площадь квартиры входит площадь лоджии.От дома до метро Бауманская (10 минут пешком), рядом расположены спортивный клуб БауманкаФит с бассейном и тренажерным залом, детские сады, лучшие учебные заведения: МГТУ им. Баумана, несколько общеобразовательных школ с различными уклонами : школа им. Пушкина, математическая школа им. Карбышева при МГТУ Много зеленых зон отдыха: Сад им. Баумана, Малютин сад, на берегу реки Яуза находится Лефортовский парк, который славится своими аллеями, спортивными площадками, теннисными кортами и прудами.Свободная продажа, один собственник, возможна ипотека.`

Читать полностью

    Для того, чтобы купить трехкомнатную квартиру по адресу: м. Бауманская, ул. Бакунинская, 38-42С1, позвоните по телефону +7 (916) 573-04-26. Торопитесь! Объявление №30095096581 о продаже трехкомнатной квартиры опубликовано Вчера.

    Позвонить Написать
    24 200 000 Р323 400 $ или 276 500
    Агент
    +7 (916) 573-04-26
    Начать чат с агентом
    Похожие предложения
    Продается 1-комнатная квартира - Фото 1
    Продается 1-комнатная квартира - Фото 2
    1-комнатная квартира, общая площадь 40м², жилая 21м², кухня 10м²

    Код объекта: 1354894.Очень светлая квартира в новом монолитном доме 2021 года постройки. Презентабельная входная группа, колясочная, помывочная для собак. Вход в подъезд в обе стороны - на улицу и в закрытый тихий двор без машин. Подземный паркинг (есть...
    • 40 м²
    • 1-ком
    • 7/10 эт.
    24 700 000 Р
    Агент
    +7 (499) Показать номер
    Посмотреть контакты
    3-комнатная квартира: Москва, улица Фридриха Энгельса, 7-21 (60.1 м) - Фото 1
    3-комнатная квартира: Москва, улица Фридриха Энгельса, 7-21 (60.1 м) - Фото 2
    3-комнатная квартира, общая площадь 60м², жилая 42м², кухня 6м²

    Номер лота: вт-0431825.ЦАО. Тихий центр. 2 минуты пешком от м. Бауманская. Под ремонт. Окна на две стороны, есть возможность для перепланировки. Хорошие соседи. Чистый подъезд после ремонта.Насыщенная инфраструктура: рядом сетевые магазины, рестораны,...
    • 60 м²
    • 3-ком
    • 2/12 эт.
    24 000 000 Р
    Агент
    +7 (966) Показать номер
    Посмотреть контакты
    2-к кв. Москва Волховский пер., 2 (48.6 м) - Фото 1
    2-к кв. Москва Волховский пер., 2 (48.6 м) - Фото 2
    2-комнатная квартира, общая площадь 48м², жилая 33м², кухня 6м²

    2-к квартира 48,6/19,7 и 13.9/6.9, балкон (застеклён) 1.7 кв.м., 8/12-этажного панельного дома серия II-68-02/12К, 1974 г.п., собственность: приватизация 2006 г. (2 взрослых собственника), полная стоимость в договоре, панорамный вид (на фото вид из окна),...
    • 48 м²
    • 2-ком
    • 8/12 эт.
    • панельный
    23 000 000 Р
    Агент
    +7 (939) Показать номер
    Посмотреть контакты
    3-к кв. Москва Спартаковская ул., 19С2 (71.7 м) - Фото 1
    3-к кв. Москва Спартаковская ул., 19С2 (71.7 м) - Фото 2
    3-комнатная квартира, общая площадь 71м², жилая 54м², кухня 8м²

    Арт.Эксклюзивное предложение от Самолет и банков-партнеров на получение ипотечной ставки от 16,4 , а также субсидированной ставки 11,9 О КВАРТИРЕ:Предлагаем вашему вниманию просторную квартиру с удачной планировкой в сталинском доме в одном из самых...
    • 71 м²
    • 3-ком
    • 1/5 эт.
    • кирпичный
    25 000 000 Р
    Агент
    +7 (916) Показать номер
    Посмотреть контакты
    Продается 3-комнатная квартира - Фото 1
    Продается 3-комнатная квартира - Фото 2
    3-комнатная квартира, общая площадь 72м², жилая 50м², кухня 8м²

    Код объекта: 1501412.Редкое предложение в одном из наиболее востребованных районов Москвы в уникальном 5-ти этажном кирпичном доме с лифтом.Этот трёхкомнатный объект общей площадью 72,8 кв. м идеально подойдёт для тех, кто ценит комфорт и практичность...
    • 72 м²
    • 3-ком
    • 3/5 эт.
    23 000 000 Р
    Агент
    +7 (499) Показать номер
    Посмотреть контакты

    Не нашли подходящего объявления?

    Оставьте заявку, и наши риэлторы подберут квартиру в районе Москвы

    (0)