12 000 000 Р 158 900 $ или 135 900

Информация о квартире

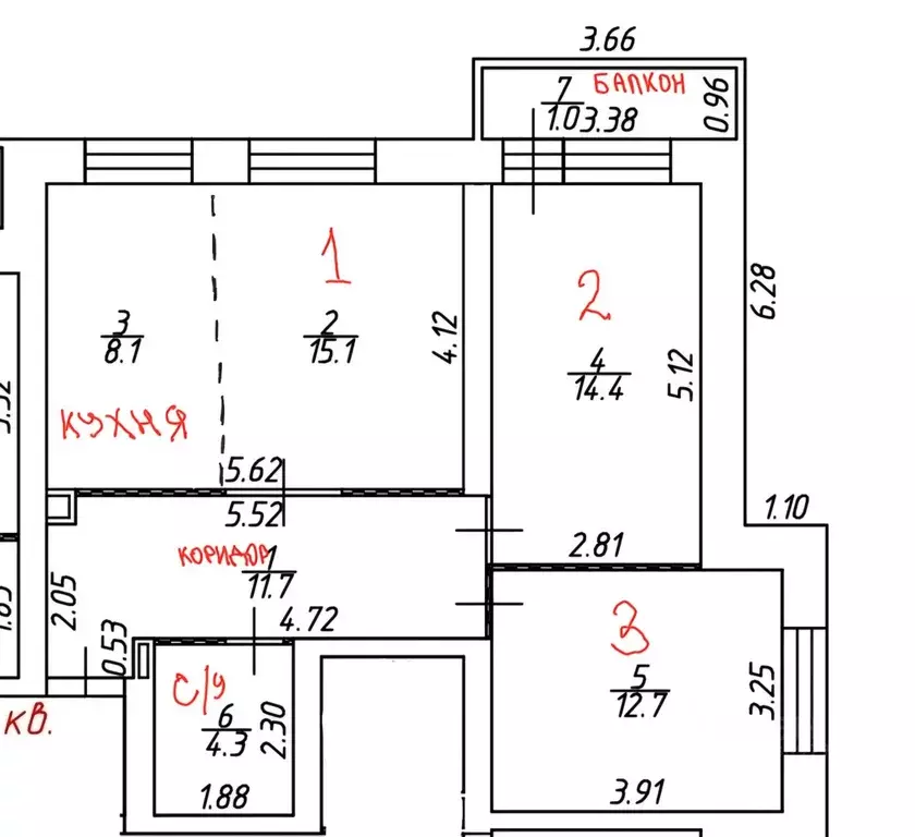
45 м2
Площадь
10 м2
Кухня
1
Комната
14
Этаж
19
Этажность
Развернуть
Агент
+7 (986) 264-17-18
Начать чат с агентом

1-к кв. Москва, Москва, Московский г. 3-й мкр, 9 (45.0 м)

Продается уютная и современная однокомнатная квартира площадью 45 кв. м. на 14-м этаже 19-этажного дома, построенного в 2010 году. Находится в удобном районе с развитой инфраструктурой, недалеко от метро Рассказовка (7 минут на автомобиле).Окна выходят на с-в, в, ю-в, на простор, на школу, на стадион , в сторону Москвы.В квартире сделан качественный евроремонт, который подчеркнет ваш стиль и обеспечит комфортное проживание. Просторная кухня площадью 10 кв. м. станет отличным местом для кулинарных шедевров. Высокие потолки (2.7 метра) добавляют ощущение простора. Санузел совмещенный, что удобно и практично. Из окон открывается вид на улицу, а на балконе можно наслаждаться утренним кофе.Дом оборудован всем необходимым для комфортной жизни: наземная парковка, один пассажирский и один грузовой лифт, пандус для удобства передвижения, мусоропровод. Все это делает проживание здесь максимально удобным и приятным.В шаговой доступности от дома расположены школы, детские сады, клиники и магазины, поэтому все необходимое для жизни находится рядом. Отличное транспортное сообщение, легкий доступ к основным магистралям города.Продажа осуществляется по договору купли-продажи. Ипольщовался мат капитал. Доли выделены. Альтернативная продажа. Возможна ипотека, что делает покупку еще более доступной.Приглашаем вас на просмотр Записывайтесь прямо сейчас, чтобы лично убедиться в преимуществах этого предложения. Ждем вас Возможен обмен на дом, таунхаус

Читать полностью

    Для того, чтобы купить однокомнатную квартиру по адресу: м. Филатов Луг, 3-й мкр, 9, позвоните по телефону +7 (986) 264-17-18. Торопитесь! Объявление №30095060685 о продаже однокомнатной квартиры опубликовано 20 апреля 2026.

    Позвонить Написать
    12 000 000 Р158 900 $ или 135 900
    Агент
    +7 (986) 264-17-18
    Начать чат с агентом
    Похожие предложения
    3-к кв. Москва д. Марьино, ул. Жемчужная, 1к12 (69.0 м) - Фото 1
    3-к кв. Москва д. Марьино, ул. Жемчужная, 1к12 (69.0 м) - Фото 2
    3-комнатная квартира, общая площадь 69м², кухня 12м²

    Трехкомнатная квартира с просторным коридором и большим балконом Можно сделать три изолированные комнаты и кухню или же большую кухню-гостиную и две комнаты - на ваш выбор Прописка Москва, в пешей доступности школы, садики, парки, магазины, строится...
    • 69 м²
    • 3-ком
    • 1/6 эт.
    12 490 000 Р
    Агент
    +7 (985) Показать номер
    Посмотреть контакты
    3-к кв. Москва ул. Золотошвейная, 3 (63.1 м) - Фото 1
    3-комнатная квартира, общая площадь 63м², жилая 41м², кухня 10м²

    Арт.Продается 3х комнатная квартира в комплексе комфорт класса ЖК Цветочные поляны по адресу: Москва, Филимонковский район, Золотошвейная улица, 3ДАННУЮ КВАРТИРУ МОЖНО ПРИОБРЕСТИ ПО СУБСИДИРОВАННОЙ ИПОТЕКЕ 12,25 ИДЕАЛЬНЫЙ ВАРИАНТ ДЛЯ СЕМЬИ С ДЕТЬМИКвартира:Планировка...
    • 63 м²
    • 3-ком
    • 8/9 эт.
    • монолит
    12 900 000 Р
    Агент
    +7 (923) Показать номер
    Посмотреть контакты
    1-к кв. Москва ул. Золотошвейная, 3 (37.0 м) - Фото 1
    1-к кв. Москва ул. Золотошвейная, 3 (37.0 м) - Фото 2
    1-комнатная квартира, общая площадь 37м², кухня 10м²

    ЕВРОДВУШКА, все остается покупателю. Просторная кухня-гостиная и ОТДЕЛЬНАЯ СПАЛЬНЯ, ГАРДЕРОБНАЯ, большая ЛОДЖИЯ.МОСКОВСКАЯ прописка. ЖК Цветочные поляны в 15 минутах транспортом до м. Филатов Луг.Квартира с дизайнерским РЕМОНТОМ, МЕБЕЛЬЮ и ТЕХНИКОЙ. В...
    • 37 м²
    • 1-ком
    • 8/9 эт.
    • монолит
    12 700 000 Р
    Агент
    +7 (986) Показать номер
    Посмотреть контакты
    1-комнатная квартира: Москва, район Троицк, ЖК Деснаречье, к4.2 (34 м) - Фото 1
    1-комнатная квартира: Москва, район Троицк, ЖК Деснаречье, к4.2 (34 м) - Фото 2
    1-комнатная квартира, общая площадь 34м², жилая 20м², кухня 10м²

    Код объекта: 2138809.Продается 1 комнатная квартира в ЖК Деснаречье Ключи на руках В перспективе открытие станции метро.Один взрослый собственник. Обременений нет.Свободная продажа.Новый район находится в природной зоне у слияния рек Десна и Незнайка...
    • 34 м²
    • 1-ком
    • 3/16 эт.
    11 000 000 Р
    Агент
    +7 (906) Показать номер
    Посмотреть контакты
    1-к кв. Москва, Москва, Московский г. ул. Москвитина, 3к2 (37.8 м) - Фото 1
    1-к кв. Москва, Москва, Московский г. ул. Москвитина, 3к2 (37.8 м) - Фото 2
    1-комнатная квартира, общая площадь 37м², жилая 18м², кухня 10м²

    Светлая и уютная 1 комнатная квартира в новом, спокойном районе, вблизи парка Филатов луг , с удобной транспортной доступностью. Готова для проживания.Имеется все необходимое.Изолированная комната с выходом на лоджию.Совмещенный санузел. Ухоженный подъезд....
    • 37 м²
    • 1-ком
    • 11/17 эт.
    • панельный
    12 000 000 Р
    Агент
    +7 (984) Показать номер
    Посмотреть контакты

    Не нашли подходящего объявления?

    Оставьте заявку, и наши риэлторы подберут квартиру в районе Москвы

    (0)