Россия, Москва, 2-я Черногрязская ул., 7К2
21 000 000 Р 278 000 $ или 237 900

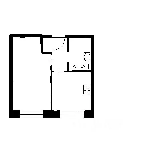
Информация о квартире

34 м2
Площадь
20 м2
Жилая
9 м2
Кухня
1
Комната
10
Этаж
12
Этажность
Развернуть
Агент
+7 (980) 205-12-78
Начать чат с агентом

1-к кв. Москва 2-я Черногрязская ул., 7К2 (34.5 м)

Продается уютная однокомнатная квартира площадью 34,5 кв. м, расположенная на 10 этаже 12-этажного дома. Дом был построен в 1968 году и находится в шаговой доступности от станции метро Улица 1905 года , всего 13 минут пешком. Высота потолков составляет 2,64 метра.В квартире сделан косметический ремонт, который позволит вам без лишних хлопот обустроить пространство на свой вкус. В комнате и кухне общей площадью 25 кв. м можно разместить необходимую мебель и технику. Площадь кухни составляет 7 кв. м, что достаточно для создания комфортной зоны приготовления пищи. Санузел совмещенный, в квартире также есть балкон, окна выходят во двор, поэтому в квартире всегда тихо и спокойно.Дом оборудован двумя пассажирскими лифтами и мусоропроводом, поэтому можно не беспокоиться о бытовых мелочах. Хорошее состояние дома обеспечивает комфортное проживание.Район, в котором расположена квартира, отлично подходит для семей с детьми. В шаговой доступности находятся школы, детские сады, клиники и магазины, поэтому вам не придется тратить много времени на дорогу. Хорошая транспортная доступность позволяет быстро добраться до любой точки города.Квартира продается по договору купли-продажи. Возможна ипотека, юридически чистая история, без обременений. Подходит для одного человека или пары.Приглашаем вас на просмотр Свяжитесь с нами для записи на удобное для вас время. Не упустите шанс стать владельцем этой замечательной квартиры. 2 взрослых собственника, квартира без обременений. Быстрый выход на сделку .

Читать полностью

    Для того, чтобы купить однокомнатную квартиру по адресу: м. Улица 1905 года, 2-я Черногрязская ул., 7К2, позвоните по телефону +7 (980) 205-12-78. Торопитесь! Объявление №30094866891 о продаже однокомнатной квартиры опубликовано 11 апреля 2026.

    Позвонить Написать
    21 000 000 Р278 000 $ или 237 900
    Агент
    +7 (980) 205-12-78
    Начать чат с агентом
    Похожие предложения
    1-к кв. Москва ул. 1905 года, 23 (38.0 м) - Фото 1
    1-к кв. Москва ул. 1905 года, 23 (38.0 м) - Фото 2
    1-комнатная квартира, общая площадь 38м², жилая 24м², кухня 7м²

    Арт.. Эксклюзивное предложение Свободная продажа Продаётся 1-комнатная квартира общей площадью 38 кв.м. рядом с метро Улица 1905 года. Планировкой предусмотрена кухня, гостиная, санузел совмещенный с ванной, прихожая и балкон. Окна выходят во двор. Квартира...
    • 38 м²
    • 1-ком
    • 4/13 эт.
    • кирпичный
    22 000 000 Р
    Агент
    +7 (916) Показать номер
    Посмотреть контакты
    2-к кв. Москва ул. 1905 года, 16 (42.9 м) - Фото 1
    2-к кв. Москва ул. 1905 года, 16 (42.9 м) - Фото 2
    2-комнатная квартира, общая площадь 42м², жилая 28м², кухня 6м²

    Квартира в кирпичном доме. Вид из окон во двор, подъезд аккуратный после капитального ремонта, соседи дружные. В квартире сделан косметический ремонт. Не сделан только санузел. Въезд во двор через шлагбаум. Один взрослый собственник, никто не прописан....
    • 42 м²
    • 2-ком
    • 5/5 эт.
    • кирпичный
    20 000 000 Р
    Агент
    +7 (923) Показать номер
    Посмотреть контакты
    1-к кв. Москва Ильменский проезд, 14к8 (35.0 м) - Фото 1
    1-к кв. Москва Ильменский проезд, 14к8 (35.0 м) - Фото 2
    1-комнатная квартира, общая площадь 35м², жилая 16м², кухня 6м²

    Id 51851. Сдается 1 комнатная квартира в ЖК бизнес класса Селигер Сити . Сдается на длительный срок. Без животных. Студентов не рассматриваем. Иностранцев также не рассматриваем. Квартира сдается впервые, есть все необходимое для комфортной жизни....
    • 35 м²
    • 1-ком
    • 4/32 эт.
    • блочный
    20 500 000 Р
    Агент
    +7 (916) Показать номер
    Посмотреть контакты
    2-к кв. Москва ул. 2-я Синичкина, 24А (56.3 м) - Фото 1
    2-к кв. Москва ул. 2-я Синичкина, 24А (56.3 м) - Фото 2
    2-комнатная квартира, общая площадь 56м², жилая 35м², кухня 8м²

    ДОКУМЕНТЫ: Квартира в одной семье. Два взрослых собственника. Более 10 лет в собственности. Полная стоимость в договоре. Свободная продажа. РАСПАШОНКА ВЫСОКИЕ ПОТОЛКИ Продается уютная двухкомнатная квартира в кирпичном доме на пятом этаже. Общая площадь...
    • 56 м²
    • 2-ком
    • 5/5 эт.
    • кирпичный
    20 000 000 Р
    Агент
    +7 (915) Показать номер
    Посмотреть контакты
    3-к кв. Москва ул. 1-я Ватутинская, 8к2 (87.4 м) - Фото 1
    3-к кв. Москва ул. 1-я Ватутинская, 8к2 (87.4 м) - Фото 2
    3-комнатная квартира, общая площадь 87м², жилая 49м², кухня 12м²

    Код объекта: 2141441.Идеальное место для семьи с детьми.Локация и инфраструктураВсё для комфортной жизни с детьми — рядом:детские сады и школыспортивные секции, стадионгородской паркДворец спорта и образования Ирины Винер академия единоборств (мини-футбол,...
    • 87 м²
    • 3-ком
    • 5/17 эт.
    • панельный
    22 000 000 Р
    Агент
    +7 (915) Показать номер
    Посмотреть контакты

    Не нашли подходящего объявления?

    Оставьте заявку, и наши риэлторы подберут квартиру в районе Москвы

    (0)