Реализация объекта недвижимости приостановлена

Информация о квартире

50.0 м2
Площадь
30.0 м2
Жилая
9.0 м2
Кухня
2
Комнаты
1
Этаж
9
Этажность

Дополнительная информация

Тип дома
панельный
Развернуть

2-к кв. Москва Красноярская ул., 3К2 (50.9 м)

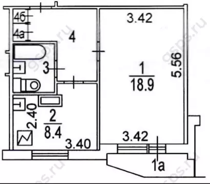
Код объекта: 2065054.Уникальное предложение в Москве: продаётся двухкомнатная квартира в развивающемся районе Москвы Это идеальное предложение для тех, кто ищет комфортное жильё по доступной цене Описание квартирыКвартира расположена на 1 этаже 9-этажного дома В квартире хороший ремонт.Удобная планировка: гостиная, кухня и просторная спальня с выходом на большую лоджию, ванная комната и туалет, что составляет 50,9 кв.м..Пространство использовано органично, нет ничего лишнего, все функционально и продумано до мелочей, что создает ощущение комфорта и простора.Дом и дворДом 1979 года постройки. Во дворе детские площадки и зоны отдыха.Транспортная доступностьДо метро Щелковская 20 минут на транспорте.До автобусной остановки 5 минуты пешком.Выезд на Щелковское шоссе, МКАД.Инфраструктура рядомРазвитая инфраструктура.В районе несколько общеобразовательных школ, детские сады, спорткомплексы, сетевые супермаркеты, интернет магазины, поликлиника, салоны красоты, рестораны, кофейни, МФЦ, почтовое отделение.В шаговой доступности для прогулок национальный парк Лосиный остров, Горенский лесопарк.Условия продажиСвободная продажа, без обременений, один собственник. Оперативный показ.Быстрый выход на сделку.Преимущества покупки с МИЭЛЬ: покупателю выдаётся Правовой сертификат, гарантирующий юридическую чистоту объекта; возможна ипотека с особыми условиями от банков-партнёров; бонусы по партнёрским программам МИЭЛЬ на товары и услуги известных брендов.

Читать полностью

    Реализация объекта недвижимости приостановлена

    Не нашли подходящего объявления?

    Оставьте заявку, и наши риэлторы подберут квартиру в районе Москвы

    (0)