Россия, Москва, Перерва метро (МЦД-2) ( Юго-Восточный адм. округ ) Батюнинская ул., 14
25 900 000 Р 339 700 $ или 290 600

Информация о квартире

85 м2
Площадь
57 м2
Жилая
8 м2
Кухня
4
Комнаты
4
Этаж
12
Этажность
Развернуть
Агент
+7 (985) 229-05-08
Начать чат с агентом

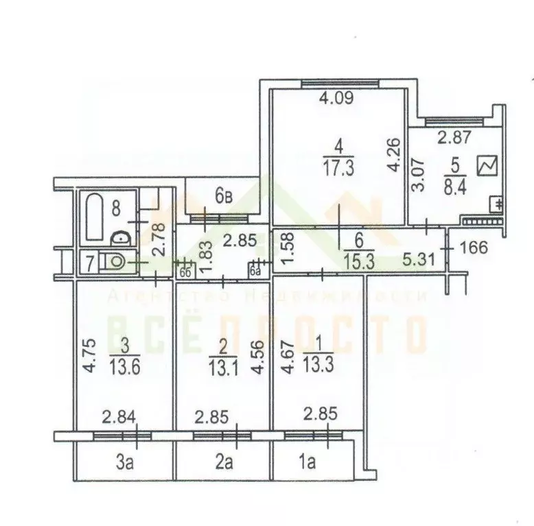
Продается 4-комнатная квартира

Арт.Продается просторная четырёхкомнатная квартира в Юго-Восточном округе район Печатники. Отличная планировка квартиры: 4 изолированные комнаты, в трёх комнатах панорамное остекление с выходом на лоджии с теплыми полами. Большая кухня и коридор. Мебель и техника остается. Отличная квартира для большой семьи. Транспортная доступность: пешая доступность до МЦД Перерва и Курьяново . Рядом с домом автобусная остановка, откуда можно доехать до метро Печатники за 13 минут. Удобный выезд на ЮВХ. В 2028 году планируется открытие станции метро Курьяново в 5 минутах ходьбы от дома. Зеленый район. В двух минутах ходьбы от дома располагается Батюнинский парк - это отличное место для прогулок и отдыха. Батюнинский парк - это уютный парк с прудом, полным кувшинок и уток, которые гуляют по берегу. В девяти минутах ходьбы - Курьяновский парк. В районе есть всё для комфортного проживания: множество магазинов, фитнес клубов, детский сад с бассейном, школы, пункты выдачи маркетплейсов. Ухоженный двор, доброжелательные соседи. Свободная продажа 2 взрослых собственника.

Читать полностью

    Для того, чтобы купить четырехкомнатную квартиру по адресу: Перерва метро (МЦД-2) ( Юго-Восточный адм. округ ) Батюнинская ул., 14, позвоните по телефону +7 (985) 229-05-08. Торопитесь! Объявление №30094837262 о продаже четырехкомнатной квартиры опубликовано Сегодня.

    Позвонить Написать
    25 900 000 Р339 700 $ или 290 600
    Агент
    +7 (985) 229-05-08
    Начать чат с агентом
    Похожие предложения
    3-к кв. Москва Братиславская ул., 14 (75.3 м) - Фото 1
    3-к кв. Москва Братиславская ул., 14 (75.3 м) - Фото 2
    3-комнатная квартира, общая площадь 75м², жилая 45м², кухня 10м²

    Продаётся трёхкомнатная квартира в Москве** Предлагаем вашему вниманию просторную и светлую трёхкомнатную квартиру площадью 75,3 квадратных метра, расположенную в одном из районов Москвы по адресу: Братиславская улица, дом 14. Квартира находится на 9-м...
    • 75 м²
    • 3-ком
    • 9/18 эт.
    • панельный
    26 000 000 Р
    Агент
    +7 (986) Показать номер
    Посмотреть контакты
    4-к кв. Москва Батюнинская ул., 14 (85.8 м) - Фото 1
    4-к кв. Москва Батюнинская ул., 14 (85.8 м) - Фото 2
    4-комнатная квартира, общая площадь 85м², жилая 57м², кухня 8м²

    Арт.Продается просторная четырёхкомнатная квартира в Юго-Восточном округе район Печатники. Отличная планировка квартиры: 4 изолированные комнаты, в трёх комнатах панорамное остекление с выходом на лоджии с теплыми полами. Большая кухня и коридор. Мебель...
    • 85 м²
    • 4-ком
    • 4/12 эт.
    • панельный
    25 900 000 Р
    Агент
    +7 (915) Показать номер
    Посмотреть контакты
    Квартира, 4 комнаты, 85.8 м - Фото 1
    Квартира, 4 комнаты, 85.8 м - Фото 2
    4-комнатная квартира, общая площадь 85м², кухня 8м²

    Арт.Продается просторная четырёхкомнатная квартира в Юго-Восточном округе район Печатники. Отличная планировка квартиры: 4 изолированные комнаты, в трёх комнатах панорамное остекление с выходом на лоджии с теплыми полами. Большая кухня и коридор. Мебель...
    • 85 м²
    • 4-ком
    • 4/12 эт.
    • панельный
    25 900 000 Р
    Агент
    +7 (915) Показать номер
    Посмотреть контакты
    3-комнатная квартира: Москва, улица Марии Ульяновой, 14 (61.2 м) - Фото 1
    3-комнатная квартира: Москва, улица Марии Ульяновой, 14 (61.2 м) - Фото 2
    3-комнатная квартира, общая площадь 61м², жилая 40м², кухня 8м²

    Номер лота: вт-0432397.Свободная продажа. Один взрослый собственник. Основание - ДКП более 5 лет.Продается квартира в престижном Ломоносовском районе города Москвы. Квартира расположена в кирпичном доме 1958 года постройки. Дом с хорошим фасадом, подъезд...
    • 61 м²
    • 3-ком
    • 2/8 эт.
    25 000 000 Р
    Агент
    +7 (966) Показать номер
    Посмотреть контакты
    Продается 2-комнатная квартира - Фото 1
    Продается 2-комнатная квартира - Фото 2
    2-комнатная квартира, общая площадь 77м², жилая 41м², кухня 16м²

    Уютная квартира в пешей доступности до м.Говорово - 5мп. ЖК Татьянин Парк; Дом - монолит -кирпич 2017 года постройки. Квартира -распашонка, окна на две стороны. Комфортный 10 этаж с прекрасным видом на Заводской пруд, с благоустроенными и освещенными...
    • 77 м²
    • 2-ком
    • 10/18 эт.
    26 000 000 Р
    Агент
    +7 (903) Показать номер
    Посмотреть контакты

    Не нашли подходящего объявления?

    Оставьте заявку, и наши риэлторы подберут квартиру в районе Москвы

    (0)