Реализация объекта недвижимости приостановлена

Информация о квартире

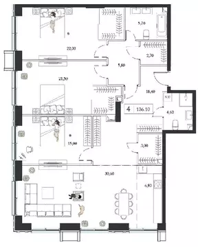
162.0 м2
Площадь
88.0 м2
Жилая
27.0 м2
Кухня
3
Комнаты
6
Этаж
18
Этажность
Развернуть

3-к кв. Москва ул. Архитектора Власова, 6 (162.8 м)

Просторная квартира под отделку в ЖК премиум-класса Вавилово Квартира площадью 162.8 м расположена на шестом этаже ЖК Вавилово . Планировка включает кухню площадью 28.3 м, три комнаты и два санузла. Высота потолков — 3,1 метра. Квартира передаётся в формате white box премиального качества: выполнена разводка инженерных систем, подготовлены поверхности под чистовую отделку, что позволяет реализовать индивидуальный дизайн-проект. Установлены окна из канадского дуба с энергосберегающими стеклопакетами, предусмотрена приточно-вытяжная вентиляция и система кондиционирования. В квартире выполнена качественная электрическая разводка, предусмотрены современные системы отопления и шумоизоляции.О доме. ЖК Вавилово — камерный жилой комплекс премиум-класса. Архитектура проекта разработана Эразмом Пепаняном: пять секций переменной этажности формируют каскадную композицию с закрытыми дворами и эксплуатируемой кровлей. В комплексе предусмотрена развитая внутренняя инфраструктура: фитнес-клуб с 25-метровым бассейном, спортивные залы, коммерческие помещения, детские и образовательные пространства. Территория закрыта и находится под круглосуточной охраной, действует система видеонаблюдения и контроля доступа. Для жителей оборудован трёхуровневый подземный паркинг с кладовыми и сервисными зонами.О локации. Комплекс расположен в Ломоносовском районе ЮЗАО — в окружении зелёных зон и сформированной городской инфраструктуры. В пешей доступности находится станция метро Профсоюзная . Удобные выезды на Ленинский проспект, Третье транспортное и Садовое кольцо обеспечивают быстрый доступ в центр Москвы. Рядом ра

Читать полностью

    Реализация объекта недвижимости приостановлена

    Не нашли подходящего объявления?

    Оставьте заявку, и наши риэлторы подберут квартиру в районе Москвы

    (0)