25 655 952 Р 318 200 $ или 274 600

Информация о квартире

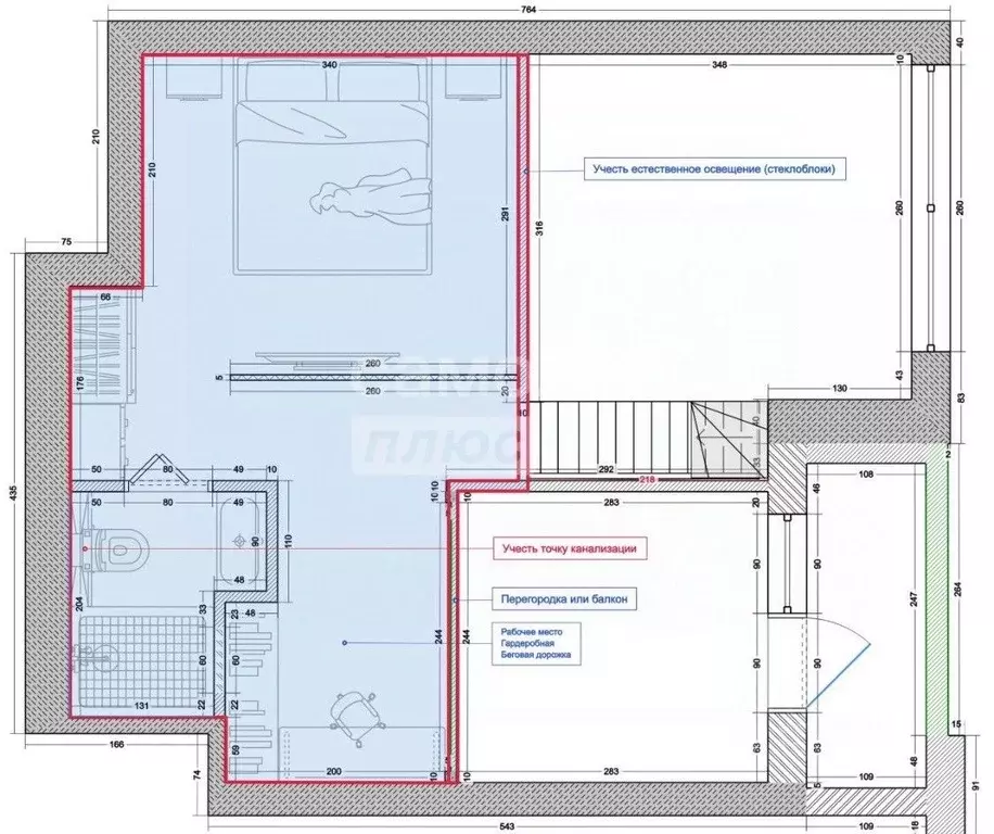
60 м2
Площадь
24 м2
Жилая
12 м2
Кухня
2
Комнаты
27
Этаж
43
Этажность
Развернуть
Агент
+7 (919) 107-55-42
Начать чат с агентом

2-комнатная квартира: Москва, Строительный проезд, 9к1 (60.9 м)

Прямая продажа от застройщика Жилой Комплекс бизнес-класса.Продаётся 2-к квартира номер 851 общей площадью 60.9 кв.м. на 27-м этаже 43 этажного здания. Предчистовая отделка. Цена с учётом скидки.Особенности квартиры:- Организуем показ в удобное для вас время - Просторная спальня, в которой можно разместить большую кровать.- Линейная планировка - максимальная функциональность и удобство.- Увеличенная ширина окна/окон - больше света и визуального простора.- Панорамное окно (1 и более) - раскрывает просторы вашего дома.- Гостевой санузел - комфорт и удобство для ваших гостей.- Постирочная - организуйте пространство для стирки и сушки вещей.- Гибкая планировка - создайте пространство по своему вкусу.- Можно оборудовать 2 или более рабочих места - пространство для нескольких человек.- Можно оборудовать рабочее место - комфорт для работы и учёбы.- Можно сделать распашные двери - удобный доступ и стильный акцент.- Просторная кухня - место для семейных ужинов и кулинарных экспериментов.- Ниша под шкаф - компактное и удобное место для вещей.- Лоджия - уютное место для отдыха и тишины.Квартира с предчистовой отделкой. Вам не придется заниматься черновыми и трудоёмкими работы, а чистовую отделку и дизайн - сделайте на свой вкус.Информация о комплексе:ЖК «Скай Гарден в Покровском-Стрешнево: гармония природы и мегаполиса. Живите среди зелени одноимённого парка, рек и каналов с чистым воздухом, сохраняя все преимущества городской инфраструктуры. Идеальный баланс для тех, кто ценит природу без компромиссов в комфорте.Транспортная доступность:Всего в 12 минутах пешком до м. Тушинская и 15 минутах до станции Тушинская МЦД. На автомобиле: 2 км до Волоколамского шоссе, 2,5 км до МКАД и 15 км до Садового кольцаВнутренняя инфраструктура:К вашим услугам игровые площадки для детей с горками и фонтанами. Йога на газоне, воркаут, велопарковки. На территории: поликлиника, аптека, супермаркет, зоны отдыха.Игровая комната в лобби, хранилище для велосипедов в подъездах. Рядом: кафе, пекарня, мастерские, секции. Парк 3,5 га с набережной для прогулок. Всё для жизни и спорта в шаговой доступности.Квартира с предчистовой отделкой - ваш дизайн без черновых работ

Читать полностью

    Для того, чтобы купить двухкомнатную квартиру по адресу: м. Тушинская, Строительный проезд, 9к1, позвоните по телефону +7 (919) 107-55-42. Торопитесь! Объявление №30094645624 о продаже двухкомнатной квартиры опубликовано Вчера.

    Позвонить Написать
    25 655 952 Р318 200 $ или 274 600
    Агент
    +7 (919) 107-55-42
    Начать чат с агентом
    Похожие предложения
    2-комнатная квартира: Москва, Строительный проезд, 9к1 (70.9 м) - Фото 1
    2-комнатная квартира: Москва, Строительный проезд, 9к1 (70.9 м) - Фото 2
    2-комнатная квартира, общая площадь 70м², жилая 37м², кухня 15м²

    Код объекта: 2091144.Отличная семейная квартира в ЖК Sky Garden по лучшей цене ОПИСАНИЕ: • Общая площадь составляет 70,9 м• White box• 43/44 этаж• Вид на речку ПЛАНИРОВКА: • Две изолированные комнаты: 18,3 м и 18,8 м с зонами под гардеробные• Кухня-гостиная...
    • 70 м²
    • 2-ком
    • 43/44 эт.
    25 990 000 Р
    Агент
    +7 (966) Показать номер
    Посмотреть контакты
    3-к кв. Москва Волоколамское ш., 81/2с6 (69.6 м) - Фото 1
    3-к кв. Москва Волоколамское ш., 81/2с6 (69.6 м) - Фото 2
    3-комнатная квартира, общая площадь 69м², жилая 49м², кухня 4м²

    Код объекта: 2081926.Квартира с замечательным видом и ровной линейной формой, благодаря этому ремонт сократиться ваза по времени и стоимости из-за ровных углов. Дом стоит отдельно от других башен, окружен специально посаженными растениями и деревьями....
    • 69 м²
    • 3-ком
    • 23/24 эт.
    26 990 000 Р
    Агент
    +7 (915) Показать номер
    Посмотреть контакты
    2-к кв. Москва Матвеевское мкр,  (60.0 м) - Фото 1
    2-к кв. Москва Матвеевское мкр,  (60.0 м) - Фото 2
    2-комнатная квартира, общая площадь 60м², жилая 32м², кухня 17м²

    Арт.Уникальная 2-комнатная квартира с потолками 4,6 м в ЖК WesterdamПродаётся редкая квартира формата с высоким потолком 4,6 метра, которая открывает возможность создать эффектное двухуровневое пространство с антресолью и увеличить полезную площадь до...
    • 60 м²
    • 2-ком
    • 2/28 эт.
    • монолит
    25 000 000 Р
    Агент
    +7 (985) Показать номер
    Посмотреть контакты
    2-к кв. Москва Внуковское поселение, бул. Андрея Тарковского, 10 (60.0 ... - Фото 1
    2-к кв. Москва Внуковское поселение, бул. Андрея Тарковского, 10 (60.0 ... - Фото 2
    2-комнатная квартира, общая площадь 60м², жилая 25м², кухня 15м²

    Агент. Фотографии реальные.Представляем Вашему вниманию 2 комнатную квартиру (евро-3) с кухней гостиной и двумя изолированными комнатами. В квартире был произведен качественный современный ремонт, планировочное решение продумано до мелочей, предусмотрено...
    • 60 м²
    • 2-ком
    • 7/17 эт.
    • монолит
    25 500 000 Р
    Агент
    +7 (985) Показать номер
    Посмотреть контакты
    Продается 3-комнатная квартира - Фото 1
    Продается 3-комнатная квартира - Фото 2
    3-комнатная квартира, общая площадь 84м², жилая 48м², кухня 12м²

    ТОРГ Вашему вниманию предлагается большая светлая 3к квартира с лоджией и балконом, 84 кв.м, в монолитном доме 22г постройки, в обжитом, перспективном р-не, со свежим ремонтом в санузлах, прихожей и кухне-гостиной, где имеется новый гарнитур со встроенной...
    • 84 м²
    • 3-ком
    • 8/24 эт.
    25 900 000 Р
    Агент
    +7 (929) Показать номер
    Посмотреть контакты

    Не нашли подходящего объявления?

    Оставьте заявку, и наши риэлторы подберут квартиру в районе Москвы

    (0)