Реализация объекта недвижимости приостановлена

Информация о квартире

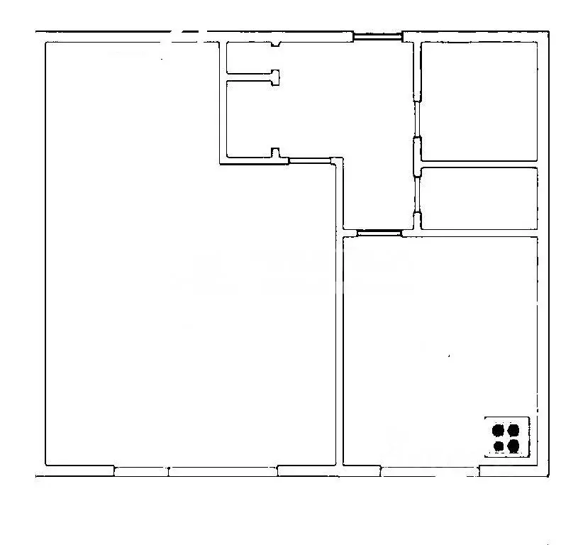
39.0 м2
Площадь
21.0 м2
Жилая
8.0 м2
Кухня
1
Комната
1
Этаж
14
Этажность

Дополнительная информация

Тип дома
панельный
Развернуть

1-к кв. Москва ул. Шолохова, 6 (39.2 м)

Код объекта: 2050757.Для арендного бизнеса или собственного проживания. Просторная однокомнатная квартира в трех минутах от метро.Оптимальная планировка: большая комната с альковом, кухня почти 9 кв.м. , раздельный санузел с ванной.Квартира в жилом состоянии, кондиционер и кухонный гарнитур остаются, остальная мебель по договоренности.Дом 1988г серии П-46 , толстые наружные и межквартирные железобетонные стены. Дом обладает хорошей шумоизоляцией. Чистый подъезд.Хорошие соседи.Во дворе детская и спортивная площадка. Много мест для парковки.Отличная инфраструктура обжитого района: в 50м Пятерочка, рядом детская и взрослая поликлиники, школа и детский сад, ТЦ Шолохов, пункты выдачи маркетплейсов, почта.Для прогулок напротив дома Ульяновский лесопарк .Идеальная транспортная доступность: 3 минуты до метро Ново-Переделкино. Удобный выезд на Боровское шоссе в обе стороны, Филатовское, Киевское шоссе и МКАД.По документам : один собственник, без обременений, свободная продажа.Звоните , уважаемые покупатели и коллеги Квартира ждет новых хозяев Помощь в одобрении ипотеки от ведущих банков. Покупателю выдаётся Правовой сертификат, гарантирующий юридическую чистоту объекта; бонусы по партнёрским программам МИЭЛЬ на товары и услуги известных брендов.

Читать полностью

    Реализация объекта недвижимости приостановлена

    Не нашли подходящего объявления?

    Оставьте заявку, и наши риэлторы подберут квартиру в районе Москвы

    (0)