Россия, Москва, ул. Сергея Бондарчука, 6
350 000 000 Р 4 305 300 $ или 3 745 800

Информация о квартире

350 м2
Площадь
5
Комнат
7
Этаж
11
Этажность

Дополнительная информация

Тип дома
монолит
Развернуть
Агент
+7 (923) 070-73-60
Начать чат с агентом

5-к кв. Москва ул. Сергея Бондарчука, 6 (350.0 м)

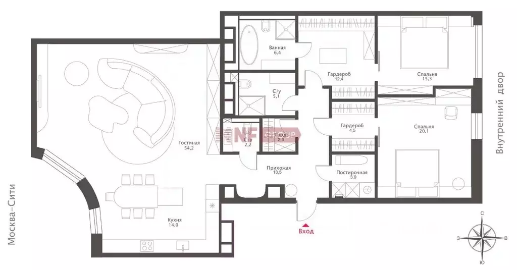
Лот: 106542. В продаже квартира с предчистовой отделкой в комплексе премиум-класса Река — проекте у границы природной территории Долина реки Раменки . Просторная резиденция с террасой 150 м расположена на 7 этаже и отличается большим количеством света благодаря панорамным окнам.Планировка: кухня-гостиная со столовой зоной, гостиная-кинотеатр, мастер-спальня с гардеробной и ванной комнатой, вторая спальня, кабинет, спортзал, гардеробная, санузел, постирочная, холл и выход на террасу.Предчистовой формат позволяет реализовать индивидуальный дизайн-проект и адаптировать пространство под собственные сценарии жизни.Высота потолков — 3,65 м.Окна ориентированы на три стороны и открывают виды во внутренний двор и на парк Событие .2 машино-места в подземном паркинге включены в стоимость.Комплекс расположен рядом с природной зоной и прогулочными маршрутами, обеспечивая баланс городской инфраструктуры и уединённой среды для жизни.Здравствуйте, я Мария Мирзаянц, брокер международной консалтинговой компании NF GROUP.Подробно расскажу об этой квартире и районе, оперативно организую просмотр и согласую лучшие условия.Участник ассоциации агентств элитной недвижимости AREA

Читать полностью

    Для того, чтобы купить 5и-комнатную квартиру по адресу: м. Мичуринский проспект, ул. Сергея Бондарчука, 6, позвоните по телефону +7 (923) 070-73-60. Торопитесь! Объявление №30094621119 о продаже пятикомнатной квартиры опубликовано Сегодня.

    Позвонить Написать
    350 000 000 Р4 305 300 $ или 3 745 800
    Агент
    +7 (923) 070-73-60
    Начать чат с агентом
    Похожие предложения
    5-комнатная квартира: Москва, улица Сергея Бондарчука, 6 (350 м) - Фото 1
    5-комнатная квартира: Москва, улица Сергея Бондарчука, 6 (350 м) - Фото 2
    5-комнатная квартира, общая площадь 350м²

    Лот: 106542. В продаже квартира с предчистовой отделкой в комплексе премиум-класса «Река — проекте у границы природной территории «Долина реки Раменки . Просторная резиденция с террасой 150 м расположена на 7 этаже и отличается большим количеством света...
    • 350 м²
    • 5-ком
    • 7/11 эт.
    350 000 000 Р
    Агент
    +7 (916) Показать номер
    Посмотреть контакты
    5-комнатная квартира: Москва, улица Сергея Бондарчука, 6 (350 м) - Фото 1
    5-комнатная квартира: Москва, улица Сергея Бондарчука, 6 (350 м) - Фото 2
    5-комнатная квартира, общая площадь 350м², жилая 88м², кухня 50м²

    Предлагается великолепная, просторная пятикомнатная квартира с террасой в премиальном комплексе Река , расположенном на западе столицы. Квартира общей площадью 350 м с предчистовой отделкой whitebox. Благодаря панорамным окнам и потолкам высотой 3,65...
    • 350 м²
    • 5-ком
    • 7/12 эт.
    350 000 000 Р
    Агент
    +7 (906) Показать номер
    Посмотреть контакты
    4-к кв. Москва ул. Сергея Бондарчука, 6 (350.0 м) - Фото 1
    4-к кв. Москва ул. Сергея Бондарчука, 6 (350.0 м) - Фото 2
    4-комнатная квартира, общая площадь 350м², жилая 87м², кухня 21м²

    лот J60001Предлагаем вашему вниманию уникальную элитную недвижимость - просторную и светлую квартиру в новом жилом комплексе Река , расположенном в одном из самых престижных районов Москвы - Раменках.Просторная квартира с 4-мя спальнями и террасой в...
    • 350 м²
    • 4-ком
    • 7/12 эт.
    350 000 000 Р
    Агент
    +7 (923) Показать номер
    Посмотреть контакты
    Эксклюзив.Одна квартира на этаже (ном. объекта: 9746) - Фото 1
    Эксклюзив.Одна квартира на этаже (ном. объекта: 9746) - Фото 2
    Эксклюзив.Одна квартира на этаже (ном. объекта: 9746) - Фото 3
    Эксклюзив.Одна квартира на этаже (ном. объекта: 9746) - Фото 4
    Эксклюзив.Одна квартира на этаже (ном. объекта: 9746) - Фото 5
    Эксклюзив.Одна квартира на этаже (ном. объекта: 9746) - Фото 6
    Эксклюзив.Одна квартира на этаже (ном. объекта: 9746) - Фото 7
    Эксклюзив.Одна квартира на этаже (ном. объекта: 9746) - Фото 8
    Эксклюзив.Одна квартира на этаже (ном. объекта: 9746) - Фото 9
    Эксклюзив.Одна квартира на этаже (ном. объекта: 9746) - Фото 10
    5-комнатная квартира, общая площадь 200м², кухня 50м²

    ID 9746 Кутузовский XII 200 м2 / 6 этаж - большая кухня- гостиная 50 кв.м.; - изолированный мастер- блок (40 кв.м.) со своим с/у и гардеробной - мастер-блок 2 ( 30 кв.м.) - Спальня 3 / детская (20 кв.м.) с гардеробной; - спальня 4/ гостевая 16м2 - Отдельная...
    • 200 м²
    • 5-ком
    • 6/11 эт.
    • монолит
    360 000 000 Р
    Агент
    +7 (499) Показать номер
    Агентство
    Panda Estate
    Посмотреть контакты
    3-к кв. Москва Саввинская наб., 13 (156.2 м) - Фото 1
    3-к кв. Москва Саввинская наб., 13 (156.2 м) - Фото 2
    3-комнатная квартира, общая площадь 156м²

    Лот: 104318. В продаже квартира с отделкой на первой линии Москвы-реки в Хамовниках — одном из самых престижных районов столицы.Планировка: кухня-гостиная с панорамными окнами и видом на Москва-Сити , мастер-спальня с гардеробной и собственной ванной...
    • 156 м²
    • 3-ком
    • 5/9 эт.
    355 000 000 Р
    Агент
    +7 (985) Показать номер
    Посмотреть контакты

    Не нашли подходящего объявления?

    Оставьте заявку, и наши риэлторы подберут квартиру в районе Москвы

    (0)