7 500 000 Р 92 260 $ или 80 270

Информация о квартире

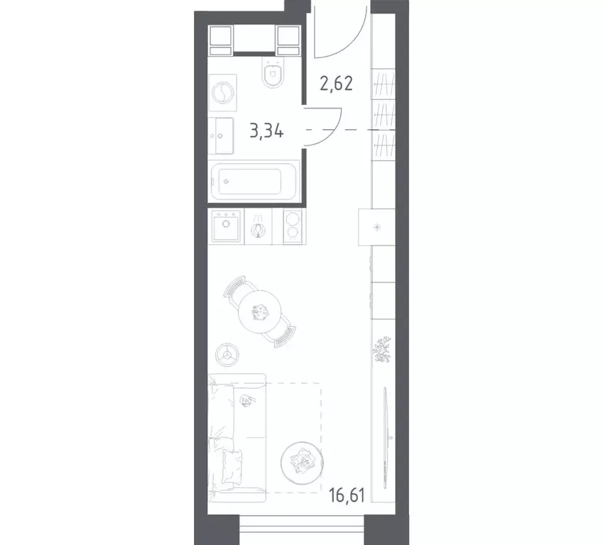
12 м2
Площадь
8 м2
Жилая
студия
Комнат
1
Этаж
9
Этажность
Развернуть
Агент
+7 (936) 296-95-68
Начать чат с агентом

Квартира-студия: Москва, улица Миклухо-Маклая, 39к1 (12.5 м)

Код объекта: 2102013.Описание Продается отличная студия в прекрасном для жизни месте Общее состояние: Дизайнерский ремонт. Планировка: Общая площадь 12м2, жилая площадь 11м2, площадь кухни 1,5м2. Была перепланировка. Она узаконена: ( все документы на руках ). Совмещённый санузел Мебель остается, кухoннaя тexникa . Дом: 9-этажный панельный дом. 1967 г .п. Адекватный дом и спокойные соседи. Двор: Тихий, озеленённый двор с детскими и спортивными площадками. Парковка: Есть парковка наземная (всегда есть куда поставить машину). Транспортная доступность: До м. Беляево 6мин. м .Университет Дружбы Народов 12 мин. м .Коньково 17 мин. Инфраструктура рядом: Образование: В шаговой доступности школа, детский сад медицинские учреждения. Торговля: Рядом магазины в шаговой доступности, точки сфер услуг : салоны красоты , прачечные , кафе, рестораны. Отдых: Шикарный район. В районе есть парки в пешей доступности. Инвестиционная привлекательность: Объект идеален для сдачи в аренду. Локация гарантирует высокий спрос и быструю окупаемость. Условия продажи: без обременений и юридических сложностей. Работать с МИЭЛЬ выгодно и надёжно: Правовая экспертиза: Проверим историю объекта и гарантируем чистоту сделки. Ипотека на «вторичку : Поможем получить одобрение по выгодной ставке. Инвестиционный расчёт: Покажем потенциальную доходность. Сопровождение сделки: Организуем безопасный расчёт и регистрацию. Записывайтесь на просмотр, чтобы лично оценить все преимущества этой квартиры. Ждем вас

Читать полностью

    Для того, чтобы купить студию по адресу: м. Беляево, ул. Миклухо-Маклая, 39к1, позвоните по телефону +7 (936) 296-95-68. Торопитесь! Объявление №30094621053 о продаже студии опубликовано Сегодня.

    Позвонить Написать
    7 500 000 Р92 260 $ или 80 270
    Агент
    +7 (936) 296-95-68
    Начать чат с агентом
    Похожие предложения
    Продается 3-комнатная квартира - Фото 1
    Продается 3-комнатная квартира - Фото 2
    3-комнатная квартира, общая площадь 52м², жилая 36м², кухня 6м²

    Код объекта: 1237124.К продаже 3х комнатная квартира в г. Москва, п. Кокошкино. Дом кирпичный. Жилая площадь составляет 36 кв. м. (комнаты 9 + 11+16), планировка комнат смежно-изолированная, кухня 6 кв.м., санузел раздельный, без балкона. Требуется ремонт.МЦД-4...
    • 52 м²
    • 3-ком
    • 1/5 эт.
    7 500 000 Р
    Агент
    +7 (499) Показать номер
    Посмотреть контакты
    Квартира, 2 комнаты, 32.4 м - Фото 1
    2-комнатная квартира, общая площадь 32м²

    Продается квартира, по адресу г. Москва, ул. Вавилова, дом 53, корпус 3, квартира (помещение) 71, район Академический удобное расположение относительно метро Академическая. Общая площадь составляет 32,4 м, в том числе жилая площадь 22,1 м. Количество...
    • 32 м²
    • 2-ком
    • 5/5 эт.
    7 548 000 Р
    Агент
    +7 (985) Показать номер
    Посмотреть контакты
    Продается студия - Фото 1
    Продается студия - Фото 2
    общая площадь 21м², жилая 16м², кухня 3м²

    Арт.Продается студия в ЖК Цветочные Поляны Экопарк Студия правильной прямоугольной формы. Отделка White Box. Окна выходят на сквер во дворе. ЖК Цветочные Поляны Экопарк - это новый современный жилищный комплекс, расположенный вблизи лесопарка, это...
    • 21 м²
    • 2/17 эт.
    7 500 000 Р
    Агент
    +7 (916) Показать номер
    Посмотреть контакты
    2-к кв. Москва ул. Берзарина, 26 (57.7 м) - Фото 1
    2-к кв. Москва ул. Берзарина, 26 (57.7 м) - Фото 2
    2-комнатная квартира, общая площадь 57м², жилая 35м², кухня 7м²

    Лот: 336. Продается 1/2 доля в двухкомнатной квартире. Квартира расположена у станции м. Октябрьское поле 10 мин пешком, обжитой московский район с развитой инфраструктурой и удобным выездом на ТТК в непосредственной близости от Москва-реки и Серебряного...
    • 57 м²
    • 2-ком
    • 4/5 эт.
    7 500 000 Р
    Агент
    +7 (915) Показать номер
    Посмотреть контакты
    Квартира-студия: Москва, Пятницкое шоссе, 56Б (22.57 м) - Фото 1
    Квартира-студия: Москва, Пятницкое шоссе, 56Б (22.57 м) - Фото 2
    студия, общая площадь 22м²

    Строим кварталы для жизни с заботой о будущем. Предлагаются студия-апартаменты комфорт-класса площадью 22,57 кв.м в корпусе 1 на 4-м этаже, в жилом комплексе «Пятницкое 58 . Здесь не нужно беспокоиться о ремонте — большинство апартаментов с готовой отделкой....
    • 22 м²
    • студия-ком
    • 4/28 эт.
    7 578 398 Р
    Агент
    +7 (934) Показать номер
    Посмотреть контакты

    Не нашли подходящего объявления?

    Оставьте заявку, и наши риэлторы подберут квартиру в районе Москвы

    (0)