13 000 000 Р 163 100 $ или 141 000

Информация о квартире

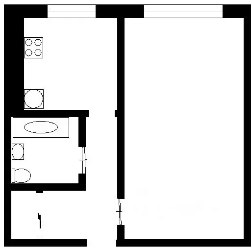
35 м2
Площадь
15 м2
Жилая
11 м2
Кухня
1
Комната
6
Этаж
15
Этажность
Развернуть
Агент
+7 (992) 129-10-83
Начать чат с агентом

1-к кв. Москва Ленинградское ш., 228к4 (35.0 м)

Продается уютная однокомнатная квартира в новом доме, построенном в 2023 году. Площадь квартиры составляет 35 кв. м, из которых 15 кв. м — жилая площадь и 11 кв. м — кухня, где вы сможете наслаждаться семейными обедами. Квартира расположена на 6-м этаже 15-этажного монолитно-кирпичного дома. Потолки высотой 2,7 метра добавляют ощущение простора. Окна выходят во двор, поэтому в квартире всегда тихо и спокойно.В квартире есть косметический ремонт, что позволит вам сразу заселиться и жить с комфортом. Планировка включает совмещенный санузел и просторную лоджию, где можно организовать уютное место для отдыха. В кухне достаточно места для установки всей необходимой техники и мебели.Дом оснащен всеми современными удобствами: есть пассажирский и грузовой лифты, пандус для удобства передвижения, а также мусоропровод. Для вашего автомобиля предусмотрена многоуровневая парковка, поэтому место для машины всегда будет.Район с развитой инфраструктурой: неподалеку находятся магазины, где можно купить всё необходимое. До станции метро Молжаниново всего 19 минут пешком, что делает поездки по городу удобными и быстрыми.Квартира продается по договору купли-продажи. Подходит для ипотеки, без обременений и юридических сложностей. Это отличный вариант как для собственного проживания, так и для инвестиций.Приглашаем вас на просмотр, чтобы лично оценить все преимущества этой квартиры. Звоните и записывайтесь на удобное для вас время

Читать полностью

    Для того, чтобы купить однокомнатную квартиру по адресу: Ленинградское ш., 228к4, позвоните по телефону +7 (992) 129-10-83. Торопитесь! Объявление №30094605889 о продаже однокомнатной квартиры опубликовано 31 марта 2026.

    Позвонить Написать
    13 000 000 Р163 100 $ или 141 000
    Агент
    +7 (992) 129-10-83
    Начать чат с агентом
    Похожие предложения
    1-к кв. Москва Ленинградское ш., 228к4 (34.0 м) - Фото 1
    1-к кв. Москва Ленинградское ш., 228к4 (34.0 м) - Фото 2
    1-комнатная квартира, общая площадь 34м², жилая 14м², кухня 12м²

    БЕЗ ОБРЕМЕНЕНИЯ Прописка Москва Потолки 3.10 м.Продаётся 1-комнатная квартира в ЖК 1-й Ленинградский на 15 этаже. станция МЦД-3 до 12 мин. пешком. ЖК полностью сдан, есть свой садик, вся инфраструктура внутри комплекса.Квартира отличается увеличенными...
    • 34 м²
    • 1-ком
    • 15/15 эт.
    12 400 000 Р
    Агент
    +7 (916) Показать номер
    Посмотреть контакты
    Продается 1-комнатная квартира - Фото 1
    Продается 1-комнатная квартира - Фото 2
    1-комнатная квартира, общая площадь 30м², жилая 18м², кухня 6м²

    Код объекта: 1590617.Продается шикарная, уютная однокомнатная квартира в тихом и зелёном районе на Северо-западе Москвы. Добротное жильё , идеально подходящее, как для спокойного семейного проживания, так и для инвестиционного проекта .Квартира с роскошным...
    • 30 м²
    • 1-ком
    • 4/9 эт.
    13 900 000 Р
    Агент
    +7 (499) Показать номер
    Посмотреть контакты
    2-к кв. Москва Ленинградское ш., 134 (53.1 м) - Фото 1
    2-к кв. Москва Ленинградское ш., 134 (53.1 м) - Фото 2
    2-комнатная квартира, общая площадь 53м²

    Объект реализуется на городских торгах Дополнительная информация и документы расположены на Инвестиционном портале города Москвы по ссылке:https://investmoscow. ru/tenders/tender/20034974?utm_source=cian utm_me dium=razmeshenie-obectov utm_campaign=flatSale...
    • 53 м²
    • 2-ком
    • 1/16 эт.
    13 692 000 Р
    Агент
    +7 (985) Показать номер
    Посмотреть контакты
    Продается 1-комнатная квартира - Фото 1
    Продается 1-комнатная квартира - Фото 2
    1-комнатная квартира, общая площадь 31м², жилая 21м², кухня 5м²

    Арт.Продается уютная однокомнатная квартира в пешей доступности от метро. Квартира находится на комфортном 7-ом этаже, вид с балкона на тихий уютный двор. Квартира чистая, ухоженная. Дом очень теплый. Развитая инфраструктура и удобная транспортная развязка...
    • 31 м²
    • 1-ком
    • 7/9 эт.
    13 000 000 Р
    Агент
    +7 (916) Показать номер
    Посмотреть контакты
    1-к кв. Москва Ленинградское ш., 100 (31.0 м) - Фото 1
    1-к кв. Москва Ленинградское ш., 100 (31.0 м) - Фото 2
    1-комнатная квартира, общая площадь 31м², кухня 9м²

    1-комн с 3-мя окнами, качественным ремонтом и обстановкой С технической точки зрения квартира разделена на две независимые зоны (каждая с отдельным кондиционером), что открывает возможности для гибкого использования пространства или рассматривается как...
    • 31 м²
    • 1-ком
    • 2/9 эт.
    • кирпичный
    13 500 000 Р
    Агент
    +7 (923) Показать номер
    Посмотреть контакты

    Не нашли подходящего объявления?

    Оставьте заявку, и наши риэлторы подберут квартиру в районе Москвы

    (0)