Россия, Москва, 4-й Войковский проезд, 4
16 000 000 Р 197 200 $ или 171 300

Информация о квартире

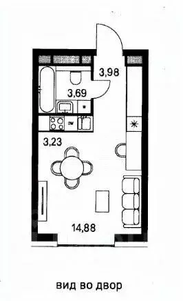
33 м2
Площадь
9 м2
Кухня
1
Комната
1
Этаж
12
Этажность

Дополнительная информация

Тип дома
панельный
Развернуть
Агент
+7 (924) 081-56-42
Начать чат с агентом

1-к кв. Москва 4-й Войковский проезд, 4 (33.1 м)

Номер в базе:. Продаётся уютная квартира ДокументыОдин Собственник, 60 летБолее 20 лет владенияДкпперепланировок нетникто не прописанПодходит под ипотекуКвартираПодходит и для семейного проживания, и как надёжная инвестиция — спрос на жильё в этом районе стабильно высокий, особенно для аренды.Дом1965 года постройка,блочныйДом — 12-этажный, кирпичный, спокойный. Квартира на первом этаже — идеальный выбор для тех, кто ценит практичность:не нужно ждать лифт,удобно заходить с коляской, велосипедом или крупными покупками,есть возможность выйти во двор без подъёма.РайонДом расположен в одном из самых комфортных районов столицы — рядом с метро Войковская (всего 3 минуты пешком), а также с удобным выездом на МЦК (станция Балтийская) и маршрутами МЦД. Благодаря отличной транспортной развязке, добраться можно куда угодно — и в центр, и за МКАД — быстро и без пересадок.Прямо за углом — огромный торгово-развлекательный центр Метрополис : здесь и шопинг, и кино, и фитнес, и детские площадки, и кафе на любой вкус. Всё, что нужно для жизни, — буквально в шаговой доступности: школы, детские сады, поликлиники, аптеки, парки и велодорожки.Звоните, готов организовать оперативный показ.Код пользователя: 198283

Читать полностью

    Для того, чтобы купить однокомнатную квартиру по адресу: м. Стрешнево, 4-й Войковский проезд, 4, позвоните по телефону +7 (924) 081-56-42. Торопитесь! Объявление №30094550527 о продаже однокомнатной квартиры опубликовано Сегодня.

    Позвонить Написать
    16 000 000 Р197 200 $ или 171 300
    Агент
    +7 (924) 081-56-42
    Начать чат с агентом
    Похожие предложения
    2-к кв. Москва ул. Константина Царева, 4 (45.2 м) - Фото 1
    2-комнатная квартира, общая площадь 45м², кухня 6м²

    Двухкомнатная квартира рядом с метро.Квартира требует ремонта. Дом НЕ стоит в плане под РЕНОВАЦИЮПолная стоимость, свободная продажа. Без обременений.Идеальная локация, в шаговой доступности м. Войковская, Д2 Стрешнево, МЦК СтрешневоРядом великолепная...
    • 45 м²
    • 2-ком
    • 5/5 эт.
    • блочный
    16 900 000 Р
    Агент
    +7 (994) Показать номер
    Посмотреть контакты
    Студия Москва Большой Волоколамский проезд, 23 (27.7 м) - Фото 1
    Студия Москва Большой Волоколамский проезд, 23 (27.7 м) - Фото 2
    студия, общая площадь 27м², жилая 17м², кухня 5м²

    Продам студию площадью 27,7 м в престижном жилом комплексе Baires Это идеальный вариант для тех, кто ценит комфорт, стиль и функциональность. В квартире выполнен дизайнерский ремонт, благодаря которому каждый уголок продуман до мелочей.Особенности:Площадь:...
    • 27 м²
    • студия-ком
    • 16/19 эт.
    • монолит
    15 680 000 Р
    Агент
    +7 (989) Показать номер
    Посмотреть контакты
    Квартира-студия: Москва, Большой Волоколамский проезд, 23 (27.7 м) - Фото 1
    Квартира-студия: Москва, Большой Волоколамский проезд, 23 (27.7 м) - Фото 2
    студия, общая площадь 27м², жилая 20м²

    Продам студию площадью 27,7 м в престижном жилом комплексе Baires Это идеальный вариант для тех, кто ценит комфорт, стиль и функциональность. В квартире выполнен дизайнерский ремонт, благодаря которому каждый уголок продуман до мелочей. Особенности:Площадь:...
    • 27 м²
    • студия-ком
    • 16/19 эт.
    15 680 000 Р
    Агент
    +7 (936) Показать номер
    Посмотреть контакты
    Студия Москва проезд 3-й Красногорский, 2 (25.8 м) - Фото 1
    Студия Москва проезд 3-й Красногорский, 2 (25.8 м) - Фото 2
    студия, общая площадь 25м²

    Арт.Представляем вашему вниманию уютную студию, расположенную в живописном уголке северо-запада Москвы в непосредственной близости от величественного парка Покровское-Стрешнево. Это идеальное место для тех, кто ценит гармонию природы и динамичный ритм...
    • 25 м²
    • студия-ком
    • 5/30 эт.
    16 500 000 Р
    Агент
    +7 (986) Показать номер
    Посмотреть контакты
    Продается 3-комнатная квартира - Фото 1
    Продается 3-комнатная квартира - Фото 2
    3-комнатная квартира, общая площадь 75м², жилая 58м², кухня 9м²

    Вашему вниманию предлагаем просторную 3х комнатную квартиру в пешей доступности от метро. Распашонка, не торцевая, комнаты большие и изолированные, сан.узел разд., две лоджии, состояние жилое. Вся необходимая инфраструктура так же в пешей доступности,...
    • 75 м²
    • 3-ком
    • 7/17 эт.
    16 800 000 Р
    Агент
    +7 (916) Показать номер
    Посмотреть контакты

    Не нашли подходящего объявления?

    Оставьте заявку, и наши риэлторы подберут квартиру в районе Москвы

    (0)