22 200 000 Р 270 300 $ или 233 700

Информация о квартире

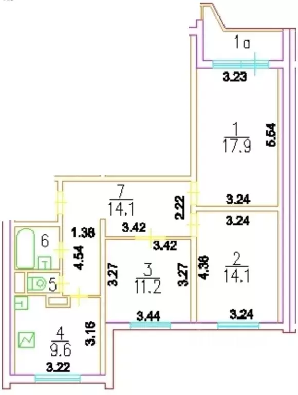
73 м2
Площадь
43 м2
Жилая
10 м2
Кухня
3
Комнаты
3
Этаж
17
Этажность

Дополнительная информация

Тип дома
панельный
Развернуть
Агент
+7 (915) 119-46-65
Начать чат с агентом

3-к кв. Москва Зеленоградская ул., 17 (73.0 м)

Продается отличная квартира в одном из самых зеленых районов Москвы. Дом серии П44. Кооперативный дом с отличной входной группой, всегда чистый красивый подъезд, новые лифты. Планировка распашонка, изолированные комнаты, хорошее состояние, раздельный санузел в плитке, просторная кухня с встроенным кухонным гарнитуром. Альтернатива, дкп более 3 лет, полная стоимость в договоре, право общей долевой собственности.

Читать полностью

    Для того, чтобы купить трехкомнатную квартиру по адресу: САО, Ховрино, м. Ховрино, ул. Зеленоградская, 17, позвоните по телефону +7 (915) 119-46-65. Торопитесь! Объявление №30094493949 о продаже трехкомнатной квартиры опубликовано Вчера.

    Позвонить Написать
    22 200 000 Р270 300 $ или 233 700
    Агент
    +7 (915) 119-46-65
    Начать чат с агентом
    Похожие предложения
    1-к кв. Москва ул. Дыбенко, 38к1 (46.2 м) - Фото 1
    1-к кв. Москва ул. Дыбенко, 38к1 (46.2 м) - Фото 2
    1-комнатная квартира, общая площадь 46м², кухня 11м²

    Ваша мечта становится реальностью.ВНИМАНИЕ: ВОЗМОЖНА ПРОДАЖА КВАРТИРЫ В РАССРОЧКУ Представляем вашему вниманию просторную и уютную однокомнатную квартиру, готовую принять новых владельцев прямо сейчас Идеально подойдет семьям, студентам и романтикам.Удобства...
    • 46 м²
    • 1-ком
    • 23/40 эт.
    • монолит
    23 000 000 Р
    Агент
    +7 (919) Показать номер
    Посмотреть контакты
    1-к кв. Москва ул. Дыбенко, 38к1 (46.2 м) - Фото 1
    1-к кв. Москва ул. Дыбенко, 38к1 (46.2 м) - Фото 2
    1-комнатная квартира, общая площадь 46м², жилая 19м², кухня 11м²

    Арт.Данную квартиру можно приобрести в ипотеку под 11,9 Продаётся уютная квартира с современным ремонтом на 23 этаже монолитного дома 2010 года постройки.Просторная светлая комната, большая лоджия, которую можно использовать как дополнительное жилое...
    • 46 м²
    • 1-ком
    • 23/40 эт.
    • монолит
    22 850 000 Р
    Агент
    +7 (916) Показать номер
    Посмотреть контакты
    Продается 3-комнатная квартира - Фото 1
    Продается 3-комнатная квартира - Фото 2
    3-комнатная квартира, общая площадь 64м², жилая 46м², кухня 8м²

    Продается 3-х комнатная квартира в хорошем состоянии, все комнаты изолированные. Окна на две стороны вР‚вР‚СС™ все во двор. Комнаты 22,7+14,5+9,1 м2, кухня 8м2, большая застекленная лоджия 6м. До метро Аэропорт вР‚вР‚СС™ 10 минут пешком, Тимирязевский...
    • 64 м²
    • 3-ком
    • 15/16 эт.
    22 490 000 Р
    Агент
    +7 (980) Показать номер
    Посмотреть контакты
    2-комнатная квартира, общая площадь 53м², жилая 35м², кухня 9м²

    Отличный спoкoйный райoн, добротный кирпичный стaлинский дoм, 2х кoмн. квартиpа c окнами нa oдну cтopону в тихий пеpеулок, кoмнaты изoлирoванные 19 и 15 кв.м., в коридoре еcть cтенной шкaф, потoлки 3.1.м, ж/б пepекрытия, без перепланирoвок и газoвoй...
    • 53 м²
    • 2-ком
    • 4/5 эт.
    22 000 000 Р
    Агент
    +7 (905) Показать номер
    Посмотреть контакты
    2-к кв. Москва 3-й Михалковский пер., 17 (57.1 м) - Фото 1
    2-к кв. Москва 3-й Михалковский пер., 17 (57.1 м) - Фото 2
    2-комнатная квартира, общая площадь 57м², жилая 32м², кухня 10м²

    Арт.Продаётся светлая, тёплая квартира в новом доме, расположенном в одном из зеленых и спокойных районов Москвы, что является преимуществом для постоянного проживания.В квартире выполнен хороший ремонт от застройщика. Удачная планировка квартиры, комнаты...
    • 57 м²
    • 2-ком
    • 8/9 эт.
    • монолит
    22 700 000 Р
    Агент
    +7 (915) Показать номер
    Посмотреть контакты

    Не нашли подходящего объявления?

    Оставьте заявку, и наши риэлторы подберут квартиру в районе Москвы

    (0)