11 300 000 Р 140 200 $ или 120 900

Информация о квартире

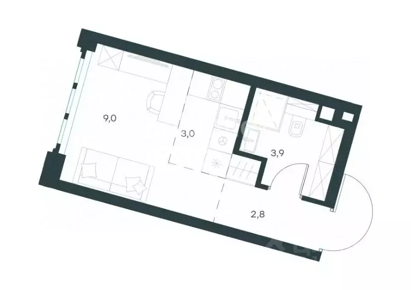
30 м2
Площадь
4 м2
Кухня
2
Комнаты
15
Этаж
16
Этажность

Дополнительная информация

Тип дома
кирпичный
Развернуть
Агент
+7 (985) 325-86-13
Начать чат с агентом

Квартира, 2 комнаты, 30 м

Id 384050. **Просторная двухкомнатная квартира у метро с прозрачной историей и выгодной инвестицией** Эта светлая двухкомнатная квартира на Рязанском проспекте — идеальный вариант для тех, кто ценит удобство, транспортную доступность и стабильность вложений. Расположена всего в трех минутах от метро, она предлагает не только комфортное проживание, но и выгодные перспективы: прописка в Москве, прозрачная история и возможность оформления ипотеки. Квартира площадью 30м спроектирована с умом: две изолированные комнаты (11,5 м и 11 м), кухня 6 м и просторная гостиная зона. Высокие потолки (3,2 м) и панорамные окна создают ощущение простора, а косметический ремонт и мебель позволяют заселиться сразу. Дом 1981 года постройки из кирпича с тремя лифтами и мусоропроводом обеспечивает надежность и комфорт. Район Рязанского проспекта — это развитая инфраструктура: магазины, кафе, школы и поликлиники в шаговой доступности. Отличная транспортная развязка позволяет быстро добраться в любую точку города. Квартира на 15 этаже 16-этажного дома гарантирует тишину и прекрасный вид. Этот объект подойдет как для жизни, так и для инвестиций: его можно сдать в долгосрочную аренду или использовать как комфортное жилье для семьи. Прозрачные условия сделки и готовность к просмотрам по предварительной договоренности делают покупку максимально удобной. Не упустите шанс стать владельцем выгодной недвижимости в одном из самых удобных районов Москвы. Звоните, чтобы узнать детали и организовать просмотр

Читать полностью

    Для того, чтобы купить двухкомнатную квартиру по адресу: Рязанский пр-кт., 5, позвоните по телефону +7 (985) 325-86-13. Торопитесь! Объявление №30094421951 о продаже двухкомнатной квартиры опубликовано 23 марта 2026.

    Позвонить Написать
    11 300 000 Р140 200 $ или 120 900
    Агент
    +7 (985) 325-86-13
    Начать чат с агентом
    Похожие предложения
    2-к кв. Москва Рязанский просп., 5 (30.0 м) - Фото 1
    2-к кв. Москва Рязанский просп., 5 (30.0 м) - Фото 2
    2-комнатная квартира, общая площадь 30м², жилая 21м², кухня 4м²

    Id 384050. **Просторная двухкомнатная квартира у метро с прозрачной историей и выгодной инвестицией** Эта светлая двухкомнатная квартира на Рязанском проспекте — идеальный вариант для тех, кто ценит удобство, транспортную доступность и стабильность вложений....
    • 30 м²
    • 2-ком
    • 15/16 эт.
    • кирпичный
    11 300 000 Р
    Агент
    +7 (985) Показать номер
    Посмотреть контакты
    2-к кв. Москва Рязанский просп., 82К2 (38.9 м) - Фото 1
    2-к кв. Москва Рязанский просп., 82К2 (38.9 м) - Фото 2
    2-комнатная квартира, общая площадь 38м², жилая 24м², кухня 7м²

    Номер лота: вт-0431444.Продаётся светлая уютная двухкомнатная квартира. Комнаты раздельные.Чистовой ремонт. Балкон застекленный. Рядом школы, детские сады, магазины. Метро пять минут пешком.Тихий двор.
    • 38 м²
    • 2-ком
    • 4/9 эт.
    • панельный
    11 750 000 Р
    Агент
    +7 (980) Показать номер
    Посмотреть контакты
    1-к кв. Москва, Москва, Троицк пер. Парковый, 4 (39.0 м) - Фото 1
    1-к кв. Москва, Москва, Троицк пер. Парковый, 4 (39.0 м) - Фото 2
    1-комнатная квартира, общая площадь 39м², жилая 19м², кухня 8м²

    Продаётся уютная однокомнатная квартира с косметическим ремонтом в монолитно-кирпичном доме 2007 года постройки. Потолки 2.8м. В прихожей встроенный глубокий шкаф-купе. Застеклённая лоджия из комнаты.Санузел раздельный, с современной сантехникой. Из окон...
    • 39 м²
    • 1-ком
    • 4/17 эт.
    10 300 000 Р
    Агент
    +7 (985) Показать номер
    Посмотреть контакты
    Студия Москва Южнопортовая ул., 26к2 (18.7 м) - Фото 1
    Студия Москва Южнопортовая ул., 26к2 (18.7 м) - Фото 2
    студия, общая площадь 18м²

    Арт.Отличная квартира - студия в современном жилом комплексе Левел Южнопортовая Ищете уютное пространство в самом сердце Москвы? Представляем уникальную студию в жилом комплексе комфорт-класса Левел Южнопортовая, расположенном всего в нескольких минутах...
    • 18 м²
    • студия-ком
    • 2/24 эт.
    • монолит
    11 000 000 Р
    Агент
    +7 (967) Показать номер
    Посмотреть контакты
    Студия Москва ул. Саларьевская, 13к1 (19.5 м) - Фото 1
    Студия Москва ул. Саларьевская, 13к1 (19.5 м) - Фото 2
    студия, общая площадь 19м², жилая 9м², кухня 5м²

    Уютная квартира-студия в новом, спокойном районе г. Москвы, с большим панорамным окном, готовая к проживанию. Заезжай и живи. Московская прописка. Ортопедический матрац.Обеденный стол и два стульчика.Удобные и просторные места для хранения. Шторы блэкаут...
    • 19 м²
    • студия-ком
    • 21/26 эт.
    • монолит
    11 000 000 Р
    Агент
    +7 (984) Показать номер
    Посмотреть контакты

    Не нашли подходящего объявления?

    Оставьте заявку, и наши риэлторы подберут квартиру в районе Москвы

    (0)