Россия, Москва, Малая Пироговская ул., 8
690 000 000 Р 8 427 300 $ или 7 284 100

Информация о квартире

291 м2
Площадь
5
Комнат
6
Этаж
12
Этажность

Дополнительная информация

Тип дома
монолит
Развернуть
Агент
+7 (985) 803-49-49
Начать чат с агентом

5-к кв. Москва Малая Пироговская ул., 8 (291.3 м)

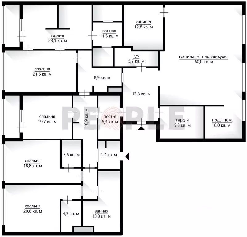
Эксклюзив агентства People | КЛЮЧИ на руках | Оперативный ПОКАЗ в любое времяК продаже предлагается просторная семейная квартира площадью 291.3 м2 в одном из лучших ЖК Хамовников BARRIN HOUSE . Квартира с отделкой из лучших материалов, ремонт высочайшего уровня, разумная удобная для жизни планировка - все для максимально комфортной жизни будущих владельцев.ПЛАНИРОВКА:- Очень просторная гостиная с зоной отдыха.- Кухня, совмещенная с гостиной, полностью оборудованная для самой взыскательной хозяйки, с бытовой техникой ведущих производителей. Кухонный гарнитур компании Brummel.- Дополнительная закрытая кухня для персонала.- Мастер-спальня с очень большой гардеробной. Мастер-ванная с хаммамом.- Две детские комнаты нейтральных тонов, каждая со своей гардеробной. Ванная комната для детских с ванной и душевой.- Дополнительная спальня.- Комната свободного назначения (игровая, кабинет, музыкальная студия).- Гостевой санузел.- Постирочная.- Прихожая.- Дополнительно обустроена теплая лоджия с подушками для отдыха, хаммам.Изысканная отделка с использованием натуральных и благородных материалов. Мрамор и дерево (канадский орех) на полу, натуральная пробка на стенах. Стены в мастер-спальне и кабинете обтянуты кожей алькантара.Итальянская сантехника в санузлах, гардеробные и кухонный гарнитур выполнены на заказ в компании Brummel.Окна квартиры выходят во двор и на улицу М. Пироговская.В подземном паркинге дополнительно предлагаются несколько машиномест.Условия сделки:Один взрослый собственник.Юридически и физически свободна.Более 5 лет в собственности.Личное присутствие собственника на сделке.О КОМПЛЕКСЕ:Элитный жилой комплекс Barrin Houseасположен в сердце исторической Москвы, в Хамовниках и представляет собой архитектурный памятник культурным традициям русского дворянства 18-19 веков.Двор ЖК закрыт для автомобилей, находится под круглосуточным наблюдением, оборудован детской площадкой, разбиты зоны отдыха. В теплое время года работает фонтан.Жителям доступен элитный фитнес-клуб с бассейном и SPA-зоной, детский клуб. Трехуровневый подземный паркинг. Благоустройство территории включает детские площадки, зоны отдыха и сквер. Территория комплекса находится под круглосуточной охраной.В пешей доступности лучшие школы страны (1535, 57, Пироговская гимназия, Золотое сечение). В 3 минутах от ЖК парки Усадьба Трубецких и сквер Девичьего поля.До Лужников, где сейчас представлены все виды спортивных тренировок, не более 5 минут на машине.Рядом с ЖК Усачевский рынок, множество кафе, ресторанов и объектов инфраструктуры.Звоните Оперативно покажем (ключи в агентстве) и ответим на все вопросы ID: 160419

Читать полностью

    Для того, чтобы купить 5и-комнатную квартиру по адресу: м. Спортивная, Малая Пироговская ул., 8, позвоните по телефону +7 (985) 803-49-49. Торопитесь! Объявление №30094419517 о продаже пятикомнатной квартиры опубликовано Вчера.

    Позвонить Написать
    690 000 000 Р8 427 300 $ или 7 284 100
    Агент
    +7 (985) 803-49-49
    Начать чат с агентом
    Похожие предложения
    5-к кв. Москва Кривоарбатский пер., 13 (500.0 м) - Фото 1
    5-к кв. Москва Кривоарбатский пер., 13 (500.0 м) - Фото 2
    5-комнатная квартира, общая площадь 500м²

    Лот: 79483. Эксклюзив NF GROUP. В продаже двухуровневая квартира с отделкой в тщательно реконструированном особняке в Кривоарбатском переулке. Планировка: просторная гостиная-столовая с камином, три спальни с собственными ванными и гардеробными, изолированная...
    • 500 м²
    • 5-ком
    • 5/5 эт.
    • кирпичный
    700 000 000 Р
    Агент
    +7 (985) Показать номер
    Посмотреть контакты
    5-к кв. Москва ул. Усачева, 3 (290.0 м) - Фото 1
    5-к кв. Москва ул. Усачева, 3 (290.0 м) - Фото 2
    5-комнатная квартира, общая площадь 290м², кухня 24м²

    Лот 21682Продается эксклюзивная квартира площадью 290 кв.м. в камерном клубном комплексе Усадьба Трубецких . Просторная терраса 120 кв.м. с панорамным видом на парк станет вашим личным оазисом тишины и уединения.Функциональная планировка продумана до...
    • 290 м²
    • 5-ком
    • 5/5 эт.
    700 000 000 Р
    Агент
    +7 (916) Показать номер
    Посмотреть контакты
    Квартира, 5 и более комнат, 296 м - Фото 1
    Квартира, 5 и более комнат, 296 м - Фото 2
    5-комнатная квартира, общая площадь 296м²

    Эксклюзив агентства People | КЛЮЧИ на руках | Оперативный ПОКАЗ в любое времяК продаже предлагается просторная семейная квартира площадью 296 м2 в одном из лучших ЖК Хамовников BARRIN HOUSE . Квартира с отделкой из лучших материалов, ремонт высочайшего...
    • 296 м²
    • 5-ком
    • 6/12 эт.
    • монолит
    690 000 000 Р
    Агент
    +7 (985) Показать номер
    Посмотреть контакты
    5-комнатная квартира: Москва, Кривоарбатский переулок, 13 (500 м) - Фото 1
    5-комнатная квартира: Москва, Кривоарбатский переулок, 13 (500 м) - Фото 2
    5-комнатная квартира, общая площадь 500м²

    Лот: 79483. В продаже двухуровневая квартира с отделкой в тщательно реконструированном особняке в Кривоарбатском переулке.Планировка: просторная гостиная-столовая с камином, три спальни с собственными ванными и гардеробными, изолированная спальня, кабинет,...
    • 500 м²
    • 5-ком
    • 5/5 эт.
    700 000 000 Р
    Агент
    +7 (916) Показать номер
    Посмотреть контакты
    5-комнатная квартира, общая площадь 290м², кухня 24м²

    Лот 21682Продается эксклюзивная квартира площадью 290 кв.м. в камерном клубном комплексе Усадьба Трубецких . Просторная терраса 120 кв.м. с панорамным видом на парк станет вашим личным оазисом тишины и уединения.Функциональная планировка продумана до...
    • 290 м²
    • 5-ком
    • 5/5 эт.
    700 000 000 Р
    Агент
    +7 (916) Показать номер
    Посмотреть контакты

    Не нашли подходящего объявления?

    Оставьте заявку, и наши риэлторы подберут квартиру в районе Москвы

    (0)