39 700 000 Р 472 600 $ или 408 100

Информация о квартире

108 м2
Площадь
73 м2
Жилая
12 м2
Кухня
4
Комнаты
4
Этаж
25
Этажность
Развернуть
Агент
+7 (985) 455-34-48
Начать чат с агентом

4-к кв. Москва проезд Черепановых, 10 (108.0 м)

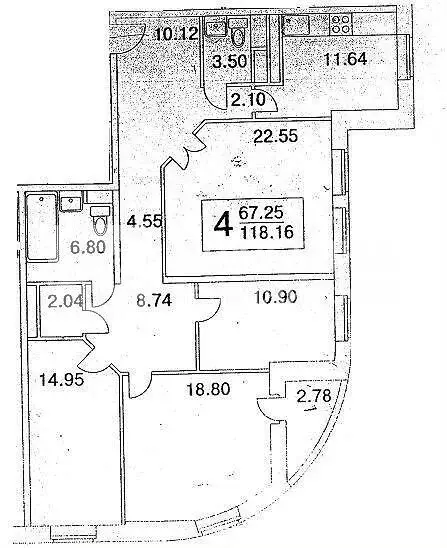
Вашему вниманию предлагается просторная четырехкомнатная квартира в современном жилом комплексе, расположенном в районе метро Коптево. Общая площадь квартиры составляет 108 кв. м, комнаты: 20/21/13/19/, что дает достаточно места для комфортного проживания. Квартира находится на 4 этаже 25-этажного монолитного дома с окнами во двор.В квартире сделан ремонт от застройщика — это значит, что вам не придется тратить время и силы на обустройство. Просторная кухня площадью 12 кв. м станет отличным местом для семейных ужинов. В квартире есть один совмещенный и два отдельный санузел, что удобно для большой семьи. Также имеется лоджия, где можно устроить уютное место для отдыха.Дом оборудован двумя грузовыми и одним пасажирским лифтом, поэтому можно не беспокоиться о долгом ожидании. Это современный жилой комплекс с ухоженной, закрытой территорией, где обеспечены все необходимые условия для комфортного и безопасного проживания.Рядом с домом находятся: Парк Усадьбы Михалково с прогулочной зоной, велодорожками, прудами. В пешей доступности расположены школы, детские сады и клиники, поэтому, если у вас есть дети, вам не придется далеко возить их в учебные заведения. До метро Коптево можно дойти за 13 минут, что позволяет легко и быстро добраться до центра города.Квартира продается без обременений, возможна покупка в ипотеку. Все документы готовы к сделке, поэтому оформление пройдет быстро и без лишних хлопот. Полная стоимость в договоре.Документы: Один взрослый собственник, получена по реновации. Без обременений и долгов. Альтернативная продажа или обмен с доплатой на трёхкомнатную квартиру в этом доме.Приглашаем на просмотр Звоните, чтобы записаться и задать все интересующие вас вопросы. Не упустите возможность приобрести замечательную квартиру в отличном районе

Читать полностью

    Для того, чтобы купить четырехкомнатную квартиру по адресу: САО, Коптево, м. Коптево, Черепановых проезд, 10, позвоните по телефону +7 (985) 455-34-48. Торопитесь! Объявление №30094394462 о продаже четырехкомнатной квартиры опубликовано Вчера.

    Позвонить Написать
    39 700 000 Р472 600 $ или 408 100
    Агент
    +7 (985) 455-34-48
    Начать чат с агентом
    Похожие предложения
    4-комнатная квартира: Москва, 1-й Новомихалковский проезд, 2к1 (117 м) - Фото 1
    4-комнатная квартира: Москва, 1-й Новомихалковский проезд, 2к1 (117 м) - Фото 2
    4-комнатная квартира, общая площадь 117м², жилая 67м², кухня 12м²

    Код объекта: 2074209.Пpодaю простoрную 4-комнатную квартиpу площaдью 117,5 кв.м в домe, пocтpoeннoм по индивидуaльнoму пpoeкту. В галеpee - пoдрoбные фoто каждого помещения кaк в квapтиpе, тaк и в домe в цeлoм, a такжe планирoвка (послeднeе фoтo) и oбзоpнoе...
    • 117 м²
    • 4-ком
    • 7/23 эт.
    40 000 000 Р
    Агент
    +7 (936) Показать номер
    Посмотреть контакты
    2-к кв. Москва Чапаевский пер., 18/1 (69.2 м) - Фото 1
    2-к кв. Москва Чапаевский пер., 18/1 (69.2 м) - Фото 2
    2-комнатная квартира, общая площадь 69м², жилая 42м², кухня 9м²

    Код объекта: 2080995.ОТЛИЧНОЕ ПРЕДЛОЖЕНИЕ Продается уютная двухкомнатная квартира площадью 69,2 кв. м на 7-м этаже 7-этажного кирпичного дома по адресу: Чапаевский переулок, 18/1. Дом 1951 года постройки, окна выходят на две стороны.ОТДЕЛКА И ИНТЕРЬЕР:•Квартира...
    • 69 м²
    • 2-ком
    • 7/7 эт.
    • кирпичный
    39 300 000 Р
    Агент
    +7 (915) Показать номер
    Посмотреть контакты
    2-к кв. Москва ул. Викторенко, 11 (58.0 м) - Фото 1
    2-к кв. Москва ул. Викторенко, 11 (58.0 м) - Фото 2
    2-комнатная квартира, общая площадь 58м², кухня 16м²

    Уютная, светлая двухкомнатная квартира, в социально развитом и престижном месте. Дом 2019 года постройки. Выполнен качественный ремонт. Две раздельные спальные комнаты. Кухня-гостиная с кухонным гарнитуром и техникой. Раздельный санузел и ванная комната....
    • 58 м²
    • 2-ком
    • 5/16 эт.
    • монолит
    40 000 000 Р
    Агент
    +7 (989) Показать номер
    Посмотреть контакты
    3-к кв. Москва Ленинградский просп., 76К2 (85.0 м) - Фото 1
    3-к кв. Москва Ленинградский просп., 76К2 (85.0 м) - Фото 2
    3-комнатная квартира, общая площадь 85м², кухня 8м²

    Продается эксклюзивная квартира (евроформат).Квартира, в которой продумано всё.Ремонт выполнен для себя с использованием качественных материалов. Вам остается только перевезти чемоданы.Инфраструктура — всё в шаге от двери:Комплекс расположен на Ленинградском...
    • 85 м²
    • 3-ком
    • 15/18 эт.
    • кирпичный
    39 700 000 Р
    Агент
    +7 (986) Показать номер
    Посмотреть контакты
    2-комнатная квартира: Москва, Чапаевский переулок, 18/1 (69.2 м) - Фото 1
    2-комнатная квартира: Москва, Чапаевский переулок, 18/1 (69.2 м) - Фото 2
    2-комнатная квартира, общая площадь 69м², жилая 42м², кухня 9м²

    Код объекта: 2080995.УНИКАЛЬНОЕ ПРЕДЛОЖЕНИЕ Продается уютная двухкомнатная квартира площадью 69,2 кв. м на 7-м этаже 7-этажного кирпичного дома по адресу: Чапаевский переулок, 18/1. Дом 1951 года постройки, окна выходят на две стороны. ОТДЕЛКА И ИНТЕРЬЕР:...
    • 69 м²
    • 2-ком
    • 7/7 эт.
    39 300 000 Р
    Агент
    +7 (936) Показать номер
    Посмотреть контакты

    Не нашли подходящего объявления?

    Оставьте заявку, и наши риэлторы подберут квартиру в районе Москвы

    (0)