Россия, Москва, Десеновское поселение, ул. Футбольная, 5
17 800 000 Р 211 900 $ или 183 000

Информация о квартире

60 м2
Площадь
30 м2
Жилая
14 м2
Кухня
2
Комнаты
2
Этаж
3
Этажность

Дополнительная информация

Тип дома
монолит
Развернуть
Агент
+7 (986) 254-15-20
Начать чат с агентом

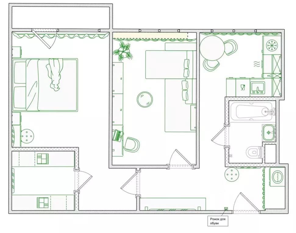
2-к кв. Москва Десеновское поселение, ул. Футбольная, 5 (60.0 м)

Код объекта: 2083875.Уникальное предложение в Москве: двухкомнатная квартира в комплексе с малоэтажной застройкой.Просторная квартира площадью 60 кв. м с изолированными комнатами и лоджией — идеальный выбор для тех, кто ценит комфорт и уют. Окна выходят на две стороны - во двор и на улицу, что обеспечивает хорошую освещённость и дополнительные виды из окна. Квартира расположена на втором этаже трёхэтажного монолитного дома, построенного в 2014 году. Высота потолков 2,9 м создаёт ощущение простора. В квартире косметический ремонт, обои под покраску, на полу ламинат. В санузлах отделка плиткой. Комнаты имеют площадь 14 и 16 кв. м. В доме центральное отопление, два санузла — раздельный и совмещённый. Наземная парковка позволяет без проблем найти место для автомобиля. О комплексе: дома 3-х этажные с современной архитектурой и уютными двориками, с разнообразным озеленением.на территории комплекса сетевой продуктовый магазин. Детский сад с группами, математической направленности и современным оснащением. В пределах одной остановки Санаторий Десна с бассейнами, спортзалом и отличным кафе. Также рядом в районе санаторий Управления по делам Президента. спорткомплекс Армейский с бассейном, футбольным полем и гимнастическим залом. До школы 1392 пешая доступность по удобным тротуарам. Школа занимает высокие позиции в рейтинге школ, каждый год получает гранты от мэра на оснащение и развитие образовательных программ.Медицинская инфраструктура - поликлиника филиал Троицкой больницы, имеет новейшее оснащение и сильных специалистов. Не упустите шанс стать владельцем этой замечательной квартиры Звоните нам прямо сейчас, чтобы узнать больше и записаться на просмотр. Мы гарантируем безопасную сделку и юридическую поддержку нашим клиентам. Поможем одобрить ипотеку с сниженной ставкой.

Читать полностью

    Для того, чтобы купить двухкомнатную квартиру по адресу: м. Десна, Десеновское поселение, ул. Футбольная, 5, позвоните по телефону +7 (986) 254-15-20. Торопитесь! Объявление №30094334959 о продаже двухкомнатной квартиры опубликовано 2 дня назад.

    Позвонить Написать
    17 800 000 Р211 900 $ или 183 000
    Агент
    +7 (986) 254-15-20
    Начать чат с агентом
    Похожие предложения
    2-к кв. Москва Десеновское поселение, ул. Футбольная, 5 (60.0 м) - Фото 1
    2-к кв. Москва Десеновское поселение, ул. Футбольная, 5 (60.0 м) - Фото 2
    2-комнатная квартира, общая площадь 60м², жилая 30м², кухня 14м²

    Код объекта: 2059242.Квартира идеально подойдёт как для проживания, так и для инвестиций.Она может стать вашим уютным гнёздышком или приносить стабильный доход от аренды.ОПИСАНИЕ КВАРТИРЫ:- изолированные комнаты;- просторная кухня;- балкон;- окна выходят...
    • 60 м²
    • 2-ком
    • 2/3 эт.
    • блочный
    17 800 000 Р
    Агент
    +7 (915) Показать номер
    Посмотреть контакты
    2-к кв. Москва ул. Облепиховая, 11 (60.0 м) - Фото 1
    2-к кв. Москва ул. Облепиховая, 11 (60.0 м) - Фото 2
    2-комнатная квартира, общая площадь 60м², жилая 39м², кухня 15м²

    Код объекта: 2087180.Ваша новая жизнь начинается здесь Уникальная квартира в самом сердце Облепиховой улицы ждет вас Представьте: вы входите в квартиру, где еще никто не жил, где каждая деталь пропитана свежестью и новизной. Именно такую квартиру мы...
    • 60 м²
    • 2-ком
    • 3/3 эт.
    • блочный
    17 500 000 Р
    Агент
    +7 (923) Показать номер
    Посмотреть контакты
    Квартира, 2 комнаты, 53.6 м - Фото 1
    2-комнатная квартира, общая площадь 53м², кухня 9м²

    Продается отличная квартира в кирпичном доме с хорошей планировкой Комнаты изолированные, просторная кухня с нишей под холодильник, наличие огромной лоджии Квартира подготовлена под ремонт, можно сделать ремонт своей мечты Район с очень развитой инфраструктурой...
    • 53 м²
    • 2-ком
    • 9/14 эт.
    • кирпичный
    17 000 000 Р
    Агент
    +7 (916) Показать номер
    Посмотреть контакты
    1-к кв. Москва ул. Сальвадора Дали, 1к3 (35.1 м) - Фото 1
    1-к кв. Москва ул. Сальвадора Дали, 1к3 (35.1 м) - Фото 2
    1-комнатная квартира, общая площадь 35м², жилая 14м², кухня 13м²

    Арт.Представьте себе жизнь, где каждый день начинается с вдохновляющего рассвета и заканчивается завораживающим закатом, открывающимся с 14-го этажа вашего личного оазиса Эта видовая квартира в современном монолитном доме 2022 года — не просто жилье,...
    • 35 м²
    • 1-ком
    • 14/16 эт.
    • монолит
    18 000 000 Р
    Агент
    +7 (986) Показать номер
    Посмотреть контакты
    2-к кв. Москва ул. Академика Скрябина, 18 (49.9 м) - Фото 1
    2-к кв. Москва ул. Академика Скрябина, 18 (49.9 м) - Фото 2
    2-комнатная квартира, общая площадь 49м², кухня 5м²

    Продаётся стильная квартира в 10 минутах пешком от метро Рязанский проспект.Последний этаж и красивый панорамный вид на район создают ощущение простора и света. Балкон с зимним остеклением — дополнительное удобное пространство круглый год.В квартире выполнен...
    • 49 м²
    • 2-ком
    • 8/9 эт.
    • панельный
    17 400 000 Р
    Агент
    +7 (915) Показать номер
    Посмотреть контакты

    Не нашли подходящего объявления?

    Оставьте заявку, и наши риэлторы подберут квартиру в районе Москвы

    (0)