12 000 000 Р 142 900 $ или 123 300

Информация о квартире

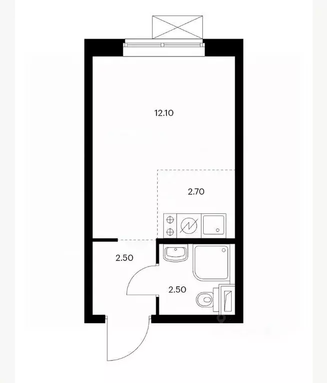
33 м2
Площадь
19 м2
Жилая
6 м2
Кухня
1
Комната
9
Этаж
9
Этажность

Дополнительная информация

Тип дома
панельный
Развернуть
Агент
+7 (923) 075-31-90
Начать чат с агентом

1-к кв. Москва Дубнинская ул., 26К4 (33.5 м)

Код объекта: 2080570.Уютная квартира для студентов в МосквеПредлагаем вашему вниманию однокомнатную квартиру по адресу: Москва, Дубнинская улица, 26к4. Это отличный выбор для студентов, которые ценят комфорт и удобство.РасположениеКвартира находится в одном из самых удобных районов Москвы. Близость к общественному транспорту позволит вам быстро добраться до любой точки города. В непосредственной близости находятся учебные заведения, магазины, кафе и другие объекты инфраструктуры.Площадь и планировкаОбщая площадь квартиры составляет 33,5 кв. м, из которых 19,5 кв. м — жилая площадь. Высота потолков — 2,64 м. Благодаря правильной планировке и изолированным комнатам, пространство можно эффективно использовать для учёбы и отдыха. Кухня площадью 6 кв. м отлично подойдёт для приготовления пищи.РемонтВ квартире выполнен косметический ремонт, поэтому вы сможете сразу заселиться и наслаждаться уютом своего нового дома.Не упустите возможность стать обладателем уютной квартиры в Москве Свяжитесь с нами прямо сейчас, чтобы узнать больше информации и записаться на просмотр.Мы гарантируем безопасную сделку и юридическую поддержку нашим Клиентам. Поможем одобрить ипотеку с сниженной ставкой.

Читать полностью

    Для того, чтобы купить однокомнатную квартиру по адресу: м. Яхромская, ул. Дубнинская, 26К4, позвоните по телефону +7 (923) 075-31-90. Торопитесь! Объявление №30094315543 о продаже однокомнатной квартиры опубликовано 19 марта 2026.

    Позвонить Написать
    12 000 000 Р142 900 $ или 123 300
    Агент
    +7 (923) 075-31-90
    Начать чат с агентом
    Похожие предложения
    Продается 1-комнатная квартира - Фото 1
    Продается 1-комнатная квартира - Фото 2
    1-комнатная квартира, общая площадь 37м², жилая 18м², кухня 7м²

    Код объекта: 1953811.Прекрасный вариант однокомнатной квартиры в Москве по улице 800-летия Москвы, д. 22к2 на 16 этаже 17-этажного панельного дома. Дом в управлении ЖСК, 1985 года постройки, подъезд в отличном состоянии, новые лифты, дважды в день уборка...
    • 37 м²
    • 1-ком
    • 16/17 эт.
    11 990 000 Р
    Агент
    +7 (499) Показать номер
    Посмотреть контакты
    Студия Москва Лобненская ул., 13к4 (19.9 м) - Фото 1
    Студия Москва Лобненская ул., 13к4 (19.9 м) - Фото 2
    студия, общая площадь 19м², жилая 14м²

    Арт.Основные характеристикиГод постройки: 2023.Материал дома: панельный.Обременения: отсутствуют.Материнский капитал: не использовался.Преимущества объектаНовый дом. Построен в 2023 году — современные инженерные решения, надёжные коммуникации, свежий...
    • 19 м²
    • студия-ком
    • 2/30 эт.
    • панельный
    11 500 000 Р
    Агент
    +7 (916) Показать номер
    Посмотреть контакты
    Студия Москва Дмитровское ш., 107Ак5 (25.6 м) - Фото 1
    Студия Москва Дмитровское ш., 107Ак5 (25.6 м) - Фото 2
    студия, общая площадь 25м², жилая 16м², кухня 4м²

    Код объекта: 1509750.Продаётся уютная студия-апартаменты на Дмитровском шоссе, 107Ак5.Идеальный вариант для молодых специалистов и студентов. Здесь вы найдёте комфорт и функциональность. Квартира-студия расположена на 10 этаже 16-этажного дома, построенного...
    • 25 м²
    • студия-ком
    • 10/16 эт.
    12 500 000 Р
    Агент
    +7 (915) Показать номер
    Посмотреть контакты
    Квартира-студия: Москва, Лобненская улица, 13к4 (19.8 м) - Фото 1
    Квартира-студия: Москва, Лобненская улица, 13к4 (19.8 м) - Фото 2
    студия, общая площадь 19м², жилая 12м²

    Код объекта: 2082615.Уникальное предложение в Москве: просторная и уютная студия на Лобненской улице, 13к4. Квартира расположена на втором этаже современного 33-этажного монолитного дома, построенного в 2023 году. Общая площадь квартиры составляет 19,8...
    • 19 м²
    • студия-ком
    • 2/33 эт.
    11 500 000 Р
    Агент
    +7 (962) Показать номер
    Посмотреть контакты
    Квартира-студия: Москва, Дмитровское шоссе, 107Ак5 (25.6 м) - Фото 1
    Квартира-студия: Москва, Дмитровское шоссе, 107Ак5 (25.6 м) - Фото 2
    студия, общая площадь 25м², жилая 16м²

    Код объекта: 1509750.Продаётся уютная студия-апартаменты на Дмитровском шоссе, 107Ак5. Идеальный вариант для молодых специалистов и студентов. Здесь вы найдёте комфорт и функциональность. Квартира-студия расположена на 10 этаже 16-этажного дома, построенного...
    • 25 м²
    • студия-ком
    • 10/16 эт.
    12 500 000 Р
    Агент
    +7 (936) Показать номер
    Посмотреть контакты

    Не нашли подходящего объявления?

    Оставьте заявку, и наши риэлторы подберут квартиру в районе Москвы

    (0)