22 000 000 Р 270 800 $ или 235 900

Информация о квартире

70 м2
Площадь
50 м2
Жилая
6 м2
Кухня
3
Комнаты
5
Этаж
5
Этажность

Дополнительная информация

Тип дома
кирпичный
Развернуть
Агент
+7 (985) 883-94-76
Начать чат с агентом

3-к кв. Москва Судостроительная ул., 30К1 (70.0 м)

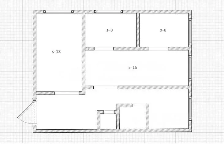
Код объекта: 2077918. Уютная трёхкомнатная квартира в Москве ждёт своих новых жильцов Адрес:Москва, Судостроительная улица, 30к1.Описание: Год постройки: 1959. Материал постройки: кирпичный.Этажность: 5 этажей. Этаж: 5. Окна выходят: на улицу и во двор.Общая площадь: 70 кв. м. Жилая площадь: 50 кв. м. Площадь кухни: 6,5 кв. м. Высота потолков: 3,05 м.Ремонт: косметический. Количество раздельных санузлов:Преимущества:Рядом (15 минут) находиться парк-Усадьба Коломенское, современные набережные, которые располагают к приятным прогулкам.Расположение: квартира находится в районе с развитой инфраструктурой, хорошей транспортной доступностью и близостью к основным магистралям.Площадь и планировка: просторные комнаты (16 + 16 + 18 кв. м) позволяют комфортно разместить семью, а также предусмотреть зоны для отдыха и работы.Инфраструктура: в шаговой доступности находятся школы, детские сады, магазины, аптеки и другие объекты, необходимые для комфортной жизни.Это идеальный выбор для молодых специалистов, семей с детьми и пар без детей, которые ценят комфорт, уют и удобство. Звоните нам прямо сейчас, чтобы узнать больше и записаться на просмотр Мы гарантируем безопасную сделку и юридическую поддержку нашим Клиентам. Поможем одобрить ипотеку со сниженной ставкой.

Читать полностью

    Для того, чтобы купить трехкомнатную квартиру по адресу: м. Кленовый бульвар, ул. Судостроительная, 30К1, позвоните по телефону +7 (985) 883-94-76. Торопитесь! Объявление №30094313422 о продаже трехкомнатной квартиры опубликовано 18 марта 2026.

    Позвонить Написать
    22 000 000 Р270 800 $ или 235 900
    Агент
    +7 (985) 883-94-76
    Начать чат с агентом
    Похожие предложения
    3-к кв. Москва Судостроительная ул., 30К1 (70.3 м) - Фото 1
    3-к кв. Москва Судостроительная ул., 30К1 (70.3 м) - Фото 2
    3-комнатная квартира, общая площадь 70м², жилая 51м², кухня 6м²

    Код объекта: 2071857.Описание квартиры:Продается просторная трехкомнатная квартира общей площадью 70,3 кв. м на 5-м этаже.Планировка:Квартира угловая, что в сочетании с кирпичными стенами дает больше естественного света и при этом сохраняет отличную теплоизоляциюТишина:Окна...
    • 70 м²
    • 3-ком
    • 5/5 эт.
    • кирпичный
    21 950 000 Р
    Агент
    +7 (915) Показать номер
    Посмотреть контакты
    Продается 3-комнатная квартира - Фото 1
    Продается 3-комнатная квартира - Фото 2
    3-комнатная квартира, общая площадь 74м², жилая 45м², кухня 10м²

    Предлагается на продажу 3-х комн квартира в районе Марьино. Комнаты все изолированы, лоджия,с/у разд. Квартира требует ремонта Полная стоимость в ДКП Свободная продажа Ипотека возможна Развитая инфраструктура, рядом магазин ЕВРОСПАР, в пешей доступности...
    • 74 м²
    • 3-ком
    • 6/16 эт.
    22 500 000 Р
    Агент
    +7 (495) Показать номер
    Посмотреть контакты
    Продается 3-комнатная квартира - Фото 1
    Продается 3-комнатная квартира - Фото 2
    3-комнатная квартира, общая площадь 72м², жилая 52м², кухня 7м²

    Код объекта: 1756387. Продается 3-х комнатная квартира 72м2. Квартира просторная, светлая; 3 изолированные комнаты (14м2, 10м2 и 28м2 ) с окнами во всю стену. В большой комнате есть балкон 7 м2. Окна выходят на три стороны. Дом расположен в 6-ти минутах...
    • 72 м²
    • 3-ком
    • 8/19 эт.
    21 500 000 Р
    Агент
    +7 (495) Показать номер
    Посмотреть контакты
    Продается 2-комнатная квартира - Фото 1
    Продается 2-комнатная квартира - Фото 2
    2-комнатная квартира, общая площадь 65м², жилая 37м², кухня 14м²

    Продается 2 комнатная квартира со свежим ремонтом. Распашонка, есть гардеробная, ремонт делали для себя, из качественных материалов. В шаговой доступности (в самом ЖК): аптеки, кафе, кофейни, магазины, детский бассейн, тренажерный зал, озон, вайлдберрис,...
    • 65 м²
    • 2-ком
    • 2/14 эт.
    23 000 000 Р
    Агент
    +7 (916) Показать номер
    Посмотреть контакты
    Продается 2-комнатная квартира - Фото 1
    Продается 2-комнатная квартира - Фото 2
    2-комнатная квартира, общая площадь 54м², жилая 32м², кухня 8м²

    Код объекта: 1859956.Продаётся двухкомнатная квартира в Москве Адрес и расположение Россия, Москва, Ленинский проспект, 123к1. Квартира расположена в районе с развитой инфраструктурой и хорошей транспортной доступностью. Близость к основным магистралям...
    • 54 м²
    • 2-ком
    • 6/16 эт.
    21 999 000 Р
    Агент
    +7 (499) Показать номер
    Посмотреть контакты

    Не нашли подходящего объявления?

    Оставьте заявку, и наши риэлторы подберут квартиру в районе Москвы

    (0)