17 300 000 Р 208 100 $ или 182 700

Информация о квартире

64 м2
Площадь
47 м2
Жилая
8 м2
Кухня
3
Комнаты
3
Этаж
16
Этажность

Дополнительная информация

Тип дома
блочный
Развернуть
Агент
+7 (915) 456-57-87
Начать чат с агентом

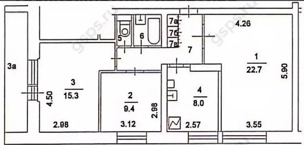
3-к кв. Москва Коровинское ш., 6К3 (64.5 м)

Продаётся светлая, уютная 3х комнатная квартира в доме 1989 года постройки, так называемая Брежневка; серия дома известна прекрасной шумоизоляцией и теплоизоляцией. Дом расположен в отдалении от Коровинского шоссе, квартира тихая. Общая площадь составляет 64,5 квм Без учёта лоджии; просторная прихожая, все комнаты изолированые, 22,7- 15,3-9,4 квм, кухня 8 квм, можно объединить с комнатой в большую кухню-гостиную, с/ узел раздельный, огромная лоджия Подъезд без посторонних запахов. Квартира требует ремонта, продаётся свободной от мебели. Обжитой район с развитой инфраструктурой , где всё необходимое для комфортной жизни находится в шаговой доступности. До м Селигерская 10 мин пешком, до м Яхромская- 14, до м Моссельмаш так же 14 мин пешком. Свободная продажа. Никто не прописан. Полная стоимость в договоре. Показы в удобное для Вас время по предварительной договорённости.

Читать полностью

    Для того, чтобы купить трехкомнатную квартиру по адресу: м. Селигерская, Коровинское ш., 6К3, позвоните по телефону +7 (915) 456-57-87. Торопитесь! Объявление №30094313404 о продаже трехкомнатной квартиры опубликовано Вчера.

    Позвонить Написать
    17 300 000 Р208 100 $ или 182 700
    Агент
    +7 (915) 456-57-87
    Начать чат с агентом
    Похожие предложения
    Продается 3-комнатная квартира - Фото 1
    Продается 3-комнатная квартира - Фото 2
    3-комнатная квартира, общая площадь 64м², жилая 47м², кухня 8м²

    Продаётся светлая, уютная 3х комнатная квартира в доме 1989 года постройки, так называемая Брежневка; серия дома известна прекрасной шумоизоляцией и теплоизоляцией. Дом расположен в отдалении от Коровинского шоссе, квартира тихая. Общая площадь составляет...
    • 64 м²
    • 3-ком
    • 3/16 эт.
    17 300 000 Р
    Агент
    +7 (905) Показать номер
    Посмотреть контакты
    3-к.Коровинское ш., д.6к3 - Фото 1
    3-к.Коровинское ш., д.6к3 - Фото 2
    3-к.Коровинское ш., д.6к3 - Фото 3
    3-к.Коровинское ш., д.6к3 - Фото 4
    3-к.Коровинское ш., д.6к3 - Фото 5
    3-к.Коровинское ш., д.6к3 - Фото 6
    3-к.Коровинское ш., д.6к3 - Фото 7
    3-к.Коровинское ш., д.6к3 - Фото 8
    3-к.Коровинское ш., д.6к3 - Фото 9
    3-к.Коровинское ш., д.6к3 - Фото 10
    3-к.Коровинское ш., д.6к3 - Фото 11
    3-к.Коровинское ш., д.6к3 - Фото 12
    3-к.Коровинское ш., д.6к3 - Фото 13
    3-к.Коровинское ш., д.6к3 - Фото 14
    3-к.Коровинское ш., д.6к3 - Фото 15
    3-к.Коровинское ш., д.6к3 - Фото 16
    3-к.Коровинское ш., д.6к3 - Фото 17
    3-к.Коровинское ш., д.6к3 - Фото 18
    3-к.Коровинское ш., д.6к3 - Фото 19
    3-к.Коровинское ш., д.6к3 - Фото 20
    3-комнатная квартира, без ремонта, общая площадь 64.5м², жилая 47.4м², кухня 8м², с балконом

    Продаётся светлая, уютная 3х комнатная квартира в доме 1989 года постройки, так называемая Брежневка; серия дома известна прекрасной шумоизоляцией и теплоизоляцией. Дом расположен в отдалении от Коровинского шоссе, квартира тихая. Общая площадь...
    • 64.5 м²
    • 3-ком
    • 3/16 эт.
    • блочный
    17 300 000 Р
    Агент
    +7 (905) Показать номер
    Посмотреть контакты
    2-к кв. Москва Коровинское ш., 5К2 (54.4 м) - Фото 1
    2-к кв. Москва Коровинское ш., 5К2 (54.4 м) - Фото 2
    2-комнатная квартира, общая площадь 54м², жилая 32м², кухня 9м²

    Арт.Уникальное предложение Светлая 2-комнатная квартира в Москве с развитой инфраструктурой и отличной транспортной доступностьюЕсли вы ищете просторную, современную квартиру в тихом районе Москвы с удобным расположением и готовой мебелью — это предложение...
    • 54 м²
    • 2-ком
    • 5/14 эт.
    • панельный
    17 500 000 Р
    Агент
    +7 (986) Показать номер
    Посмотреть контакты
    1-к кв. Москва Селигерская ул., 26к1 (37.4 м) - Фото 1
    1-к кв. Москва Селигерская ул., 26к1 (37.4 м) - Фото 2
    1-комнатная квартира, общая площадь 37м², кухня 9м²

    Номер в базе:. В продаже 1 комнатная квартира с отличным ремонтом ТРАНСПОРТНАЯ ДОСТУПНОСТЬ: -6 мин. пешком до м. Селигерская;-11 мин. пешком до м. Яхромская; -автобусные остановки рядом с домом.О КВАРТИРЕВ квартире функциональная планировка и сделан...
    • 37 м²
    • 1-ком
    • 3/17 эт.
    • панельный
    16 800 000 Р
    Агент
    +7 (980) Показать номер
    Посмотреть контакты
    2-комнатная квартира: Москва, Бескудниковский бульвар, 19к2 (50.8 м) - Фото 1
    2-комнатная квартира: Москва, Бескудниковский бульвар, 19к2 (50.8 м) - Фото 2
    2-комнатная квартира, общая площадь 50м², жилая 30м², кухня 9м²

    Вашему вниманию предлагается 2-х комнатная квартира в доме серии П-44Т (2010 года постройки). Ухоженный подъезд, консьерж, 2 лифта (грузовой и пассажирский).Параметры квартиры: Общая площадь — 50 кв. м. Кухня — 9 кв. м с эркером. Комнаты изолированные....
    • 50 м²
    • 2-ком
    • 5/17 эт.
    18 000 000 Р
    Агент
    +7 (989) Показать номер
    Посмотреть контакты

    Не нашли подходящего объявления?

    Оставьте заявку, и наши риэлторы подберут квартиру в районе Москвы

    (0)