12 075 310 Р 149 000 $ или 130 300

Информация о квартире

37 м2
Площадь
1
Комната
22
Этаж
24
Этажность
Развернуть
Агент
+7 (916) 168-22-57
Начать чат с агентом

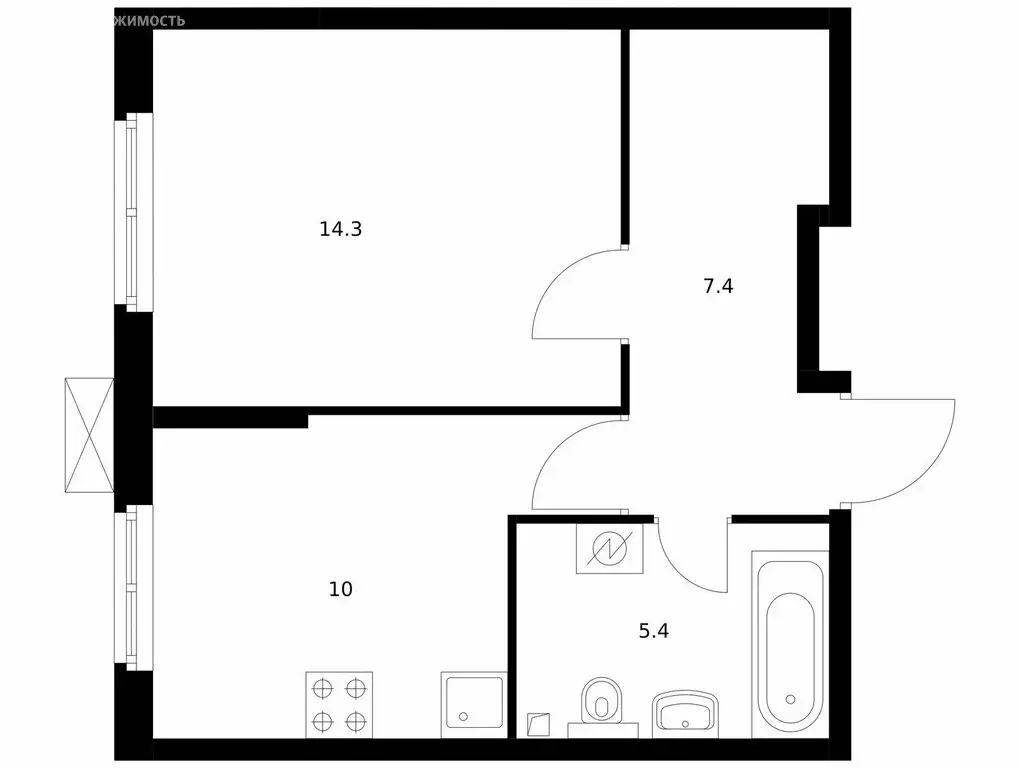
1-комнатная квартира: Москва, Муравская улица, 44к2 (37.7 м)

Продаётся 1-комн.квартира площадью 37.70 кв.м на 22 этаже 25 этажного дома (Корпус 15, секция 3) проекта ПИК Митинский лес. Светлый просторный подъезд на уровне земли, функциональная планировка, большие окна.«Митинский лес возводится в Митино — районе, известном хорошей экологией. По соседству с домами протянулся большой парк. За 20 минут можно дойти от проекта до метро «Пятницкое шоссе , а за 30 — доехать на автомобиле до центра Москвы.Район, в котором строится проект, хорошо развит. Рядом школы, детские сады и поликлиники. За 11 минут можно доехать до гипермаркета «Глобус и крупных фитнес-клубов. В культурном окружении квартала — музей Морского космического флота и Академгородок Митино, где дети могут познакомиться с наукой через игру.Инфраструктура проектаНа территории квартала будет вся необходимая инфраструктура: школа для 1100 учеников и два детских сада — один из них, на 150 мест, уже открыт.Во дворах — благоустроенные зелёные парки с местами для отдыха, детскими и спортивными площадками. Через квартал протянется широкий пешеходный бульвар для прогулок на свежем воздухе. На первых этажах домов работают магазины, кафе и полезные сервисы. А для владельцев автомобилей предусмотрены подземные паркинги.ПланировкиВ проекте «Митинский лес широкий выбор планировок: от компактных и продуманных студий до просторных четырёхкомнатных квартир для большой семьи. Есть варианты с кухней-гостиной, гардеробной, постирочной и двумя санузлами. Для тех, кому важно дополнительное пространство, есть планировки с балконом или собственной лоджией.Квартиры сдаются с отделкой на выбор: готовая — для тех, кто хочет переехать сразу, или без отделки — чтобы сделать всё по-своему и воплотить самые смелые дизайнерские идеи. Артикул - 700109

Читать полностью

    Для того, чтобы купить однокомнатную квартиру по адресу: м. Пятницкое шоссе, ул. Муравская, 44к2, позвоните по телефону +7 (916) 168-22-57. Торопитесь! Объявление №30094285690 о продаже однокомнатной квартиры опубликовано Сегодня.

    Позвонить Написать
    12 075 310 Р149 000 $ или 130 300
    Агент
    +7 (916) 168-22-57
    Начать чат с агентом
    Похожие предложения в Москве
    1-комнатная квартира: Москва, Муравская улица, 44к2 (37.8 м) - Фото 1
    1-комнатная квартира: Москва, Муравская улица, 44к2 (37.8 м) - Фото 2
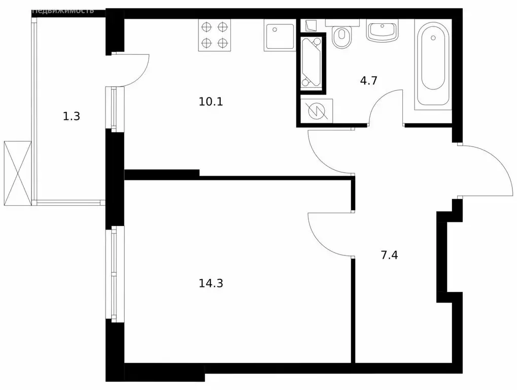
    1-комнатная квартира, общая площадь 37м²

    Продаётся 1-комн.квартира площадью 37.80 кв.м на 22 этаже 24 этажного дома (Корпус 15, секция 2) проекта ПИК Митинский лес. Светлый просторный подъезд на уровне земли, функциональная планировка, большие окна.«Митинский лес возводится в Митино — районе,...
    • 37 м²
    • 1-ком
    • 22/24 эт.
    12 092 220 Р
    Агент
    +7 (916) Показать номер
    Посмотреть контакты
    1-комнатная квартира: Москва, Муравская улица, 44к2 (37.1 м) - Фото 1
    1-комнатная квартира: Москва, Муравская улица, 44к2 (37.1 м) - Фото 2
    1-комнатная квартира, общая площадь 37м²

    Продаётся 1-комн.квартира площадью 37.10 кв.м на 2 этаже 25 этажного дома (Корпус 15, секция 5) проекта ПИК Митинский лес. Светлый просторный подъезд на уровне земли, функциональная планировка, большие окна.«Митинский лес возводится в Митино — районе,...
    • 37 м²
    • 1-ком
    • 2/24 эт.
    11 300 660 Р
    Агент
    +7 (916) Показать номер
    Посмотреть контакты
    1-комнатная квартира: Москва, Муравская улица, 44к2 (37.7 м) - Фото 1
    1-комнатная квартира: Москва, Муравская улица, 44к2 (37.7 м) - Фото 2
    1-комнатная квартира, общая площадь 37м²

    Продаётся 1-комн.квартира площадью 37.70 кв.м на 24 этаже 24 этажного дома (Корпус 15, секция 1) проекта ПИК Митинский лес. Светлый просторный подъезд на уровне земли, функциональная планировка, большие окна.«Митинский лес возводится в Митино — районе,...
    • 37 м²
    • 1-ком
    • 24/24 эт.
    11 965 980 Р
    Агент
    +7 (916) Показать номер
    Посмотреть контакты
    1-комнатная квартира: Москва, Муравская улица, 44к2 (37.8 м) - Фото 1
    1-комнатная квартира: Москва, Муравская улица, 44к2 (37.8 м) - Фото 2
    1-комнатная квартира, общая площадь 37м², жилая 14м², кухня 10м²

    Продаётся 1-комн.квартира площадью 37.80 кв.м на 3 этаже 25 этажного дома (Корпус 15, секция 6) проекта ПИК Митинский лес. Светлый просторный подъезд на уровне земли, функциональная планировка, большие окна.«Митинский лес возводится в Митино — районе,...
    • 37 м²
    • 1-ком
    • 3/24 эт.
    11 536 560 Р
    Агент
    +7 (916) Показать номер
    Посмотреть контакты
    1-комнатная квартира: Москва, Муравская улица, 44к2 (37.9 м) - Фото 1
    1-комнатная квартира: Москва, Муравская улица, 44к2 (37.9 м) - Фото 2
    1-комнатная квартира, общая площадь 37м²

    Продаётся 1-комн.квартира площадью 37.90 кв.м на 3 этаже 25 этажного дома (Корпус 15, секция 5) проекта ПИК Митинский лес. Светлый просторный подъезд на уровне земли, функциональная планировка, большие окна.«Митинский лес возводится в Митино — районе,...
    • 37 м²
    • 1-ком
    • 3/24 эт.
    11 650 460 Р
    Агент
    +7 (916) Показать номер
    Посмотреть контакты

    Не нашли подходящего объявления?

    Оставьте заявку, и наши риэлторы подберут квартиру в районе Москвы

    (0)