20 100 000 Р 250 500 $ или 218 500

Информация о квартире

45 м2
Площадь
8 м2
Кухня
2
Комнаты
5
Этаж
5
Этажность

Дополнительная информация

Тип дома
кирпичный
Развернуть
Агент
+7 (992) 129-01-90
Начать чат с агентом

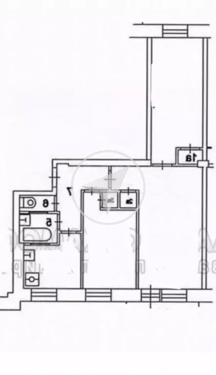
Квартира, 2 комнаты, 45.1 м

Продается уютная 2-комнатная квартира в удобном районе, всего в 7 минутах пешком от метро Марьина Роща. Квартира расположена на последнем, 5 этаже кирпичного дома. Общая площадь составляет 45,1 кв. м, жилая площадь — 34 кв. м, площадь кухни — 8 кв. м. Высота потолков — 2,8 метра, что создает ощущение простора и света.В квартире выполнен дизайнерский ремонт, который подчеркнет ваш стиль и создаст атмосферу уюта. Удобная планировка позволяет рационально использовать пространство, а окна, выходящие во двор, обеспечат тишину и спокойствие. Кухня оборудована всей необходимой техникой, чтобы ваше пребывание здесь было максимально комфортным. Совмещенный санузел оформлен в современном стиле.Дом в хорошем состоянии, с наземной парковкой, поэтому вы всегда найдете место для своего автомобиля. Кирпичные стены обеспечивают отличную звукоизоляцию и тепло. В шаговой доступности находятся школы, детские сады, клиники и магазины, что делает этот район идеальным для семейной жизни.Квартира продается по договору купли-продажи, возможна покупка в ипотеку. Все документы в порядке, юридически чистая сделка. Обременений на объект нет, поэтому можно быть уверенным в безопасности сделки.Приглашаем вас на просмотр, чтобы лично оценить все преимущества этой замечательной квартиры. Звоните и записывайтесь на удобное для вас время

Читать полностью

    Для того, чтобы купить двухкомнатную квартиру по адресу: ул. Сущевский Вал, 60к2, позвоните по телефону +7 (992) 129-01-90. Торопитесь! Объявление №30094252099 о продаже двухкомнатной квартиры опубликовано Вчера.

    Позвонить Написать
    20 100 000 Р250 500 $ или 218 500
    Агент
    +7 (992) 129-01-90
    Начать чат с агентом
    Похожие предложения
    2-к кв. Москва ул. Сущевский Вал, 60К2 (45.1 м) - Фото 1
    2-к кв. Москва ул. Сущевский Вал, 60К2 (45.1 м) - Фото 2
    2-комнатная квартира, общая площадь 45м², жилая 34м², кухня 8м²

    Продается уютная 2-комнатная квартира в удобном районе, всего в 7 минутах пешком от метро Марьина Роща. Квартира расположена на последнем, 5 этаже кирпичного дома. Общая площадь составляет 45,1 кв. м, жилая площадь — 34 кв. м, площадь кухни — 8 кв. м....
    • 45 м²
    • 2-ком
    • 5/5 эт.
    • кирпичный
    20 100 000 Р
    Агент
    +7 (992) Показать номер
    Посмотреть контакты
    3-к кв. Москва ул. Сущевский Вал, 23 (60.0 м) - Фото 1
    3-к кв. Москва ул. Сущевский Вал, 23 (60.0 м) - Фото 2
    3-комнатная квартира, общая площадь 60м², жилая 45м², кухня 6м²

    Id 11681. Тихий и спокойный район. 3-ком. квартира. Кирпичный дом. Чистый подъезд. Окна смотрят на две стороны. Въезд во двор под шлагбаум. Требуется ремонт. Квартира продается с мебелью и бытовой техникой. С/у совмещенный. В собственности более 5 лет....
    • 60 м²
    • 3-ком
    • 2/9 эт.
    • кирпичный
    19 500 000 Р
    Агент
    +7 (985) Показать номер
    Посмотреть контакты
    Продается 1-комнатная квартира - Фото 1
    Продается 1-комнатная квартира - Фото 2
    1-комнатная квартира, общая площадь 39м², жилая 16м², кухня 11м²

    Код объекта: 1228279. Продаётся 1 комнатная квартира в красивом ЖК бизнес-класса Большая Семёрка . Дом сдан Общая площадь 39.2 м2, кухня 11 м2 с выходом на лоджию. Комплекс расположен на берегу реки Яуза в окружении трёх парков с крупными лесными массивами:...
    • 39 м²
    • 1-ком
    • 6/17 эт.
    20 000 000 Р
    Агент
    +7 (909) Показать номер
    Посмотреть контакты
    Продается 3-комнатная квартира - Фото 1
    Продается 3-комнатная квартира - Фото 2
    3-комнатная квартира, общая площадь 76м², жилая 47м², кухня 10м²

    3-х комнатная квартира, рядом с м. Бабушкинская, на 7м этаже 17 этажного дома. Планировка: холл, три изолированные комнаты, просторная кухня правильной формы, ванная комната, СУ. Квартира находится в обжитом районе (богатая инфраструктура школы, детские...
    • 76 м²
    • 3-ком
    • 7/17 эт.
    21 000 000 Р
    Агент
    +7 (926) Показать номер
    Посмотреть контакты
    Продается 1-комнатная квартира - Фото 1
    Продается 1-комнатная квартира - Фото 2
    1-комнатная квартира, общая площадь 32м², жилая 19м², кухня 7м²

    Код объекта: 2059735.Покупка квартиры в центре Москвы надежная инвестиция. Продается квартира с отличным ремонтом в ЦАО.Описание квартиры: - Квартира со свежим ремонтом. Балкон остеклен, обшит деревом, выход из комнаты. Санузел совмещен. Жилая площадь...
    • 32 м²
    • 1-ком
    • 8/12 эт.
    19 000 000 Р
    Агент
    +7 (499) Показать номер
    Посмотреть контакты

    Не нашли подходящего объявления?

    Оставьте заявку, и наши риэлторы подберут квартиру в районе Москвы

    (0)