14 700 000 Р 173 300 $ или 151 700

Информация о квартире

46 м2
Площадь
30 м2
Жилая
7 м2
Кухня
2
Комнаты
2
Этаж
12
Этажность

Дополнительная информация

Тип дома
панельный
Развернуть
Агент
+7 (989) 046-04-67
Начать чат с агентом

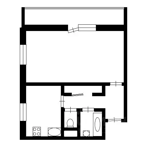
2-к кв. Москва Неманский проезд, 7к1 (46.2 м)

Продается отличная уютная двухкомнатная квартира, расположенная в 12-этажном панельном доме. Общая площадь составляет 46,2 кв. м., 30,4 кв. м, квадратная кухня — 6.8 кв. м. Окна выходят на запад, на Неманский проезд. В квартире сделан косметический ремонт, что позволит вам сразу заехать и жить. Вся мебель и техника остается в квартире. Планировка включает в себя две раздельные комнаты: 16,6 м2 с выходом на лоджию и 14 м2 (комната квадратная). Раздельный санузел. Дом оборудован двумя пассажирскими лифтами и мусоропроводом. Развитая инфраструктура района: в шаговой доступности расположены магазины, школы, во дворе детский сад и московская школа искусств, что делает это место идеальным для семейного проживания. До ближайшего метро можно дойти пешком за 15 минут, рядом остановка транспорта. Физически свободна. Более трех лет в собственности. Альтернатива на любую комнату в Москве.

Читать полностью

    Для того, чтобы купить двухкомнатную квартиру по адресу: СЗАО, Строгино, м. Строгино, Неманский проезд, 7к1, позвоните по телефону +7 (989) 046-04-67. Торопитесь! Объявление №30094208856 о продаже двухкомнатной квартиры опубликовано 18 марта 2026.

    Позвонить Написать
    14 700 000 Р173 300 $ или 151 700
    Агент
    +7 (989) 046-04-67
    Начать чат с агентом
    Похожие предложения
    Продается 2-комнатная квартира - Фото 1
    Продается 2-комнатная квартира - Фото 2
    2-комнатная квартира, общая площадь 45м², жилая 30м², кухня 6м²

    Предлагается уютное двухкомнатное жильё в Москве, в районе Строгино, с удобным расположением всего в нескольких минутах ходьбы от станции метро Строгино. Объект в собственности свыше трёх лет, один взрослый собственник, что облегчает оформление ипотеки....
    • 45 м²
    • 2-ком
    • 2/12 эт.
    15 800 000 Р
    Агент
    +7 (996) Показать номер
    Посмотреть контакты
    2-к кв. Москва № 100 кв-л, 1к2 (36.0 м) - Фото 1
    2-к кв. Москва № 100 кв-л, 1к2 (36.0 м) - Фото 2
    2-комнатная квартира, общая площадь 36м², жилая 25м², кухня 9м²

    Вашему вниманию предлагается отличный вариант: функциональная евродвушка в ЖК Мякинино Парк . Район приятно удивит Вас безупречной экологией и практически девственной природой. Экологически чистый район. Запад - Северо-Запад Столицы Жилой комплекс...
    • 36 м²
    • 2-ком
    • 4/25 эт.
    • панельный
    14 000 000 Р
    Агент
    +7 (985) Показать номер
    Посмотреть контакты
    1-к кв. Москва ул. Исаковского, 24К1 (32.6 м) - Фото 1
    1-к кв. Москва ул. Исаковского, 24К1 (32.6 м) - Фото 2
    1-комнатная квартира, общая площадь 32м², жилая 19м², кухня 6м²

    Продаётся уютная однокомнатная квартира 32,6кв.м. Дом находится рядом с парком на берегу Москва-реки,в районе с развитой инфраструктурой: детские сады,школы,поликлиники, магазины, метро Строгино в шаговой доступности.Быстрый выход на сделку .Один взрослый...
    • 32 м²
    • 1-ком
    • 6/9 эт.
    • панельный
    14 000 000 Р
    Агент
    +7 (985) Показать номер
    Посмотреть контакты
    1-к кв. Москва Таллинская ул., 8 (38.7 м) - Фото 1
    1-к кв. Москва Таллинская ул., 8 (38.7 м) - Фото 2
    1-комнатная квартира, общая площадь 38м², жилая 20м², кухня 9м²

    Продается уютная однокомнатная квартира площадью 38,7 кв. м в доме 1982 года постройки. Дом находится на девятом этаже двенадцатиэтажного панельного здания с двумя пассажирскими лифтами и мусоропроводом. Высота потолков составляет 2,65 м, что создает...
    • 38 м²
    • 1-ком
    • 9/12 эт.
    • панельный
    14 990 000 Р
    Агент
    +7 (984) Показать номер
    Посмотреть контакты
    1-к кв. Москва ул. Маршала Катукова, 10К1 (37.8 м) - Фото 1
    1-к кв. Москва ул. Маршала Катукова, 10К1 (37.8 м) - Фото 2
    1-комнатная квартира, общая площадь 37м², жилая 18м², кухня 8м²

    Просторная 1-комнатная квартира рядом с пляжем.Квартира полностью готова к проживанию без дополнительных вложений. Свежий аккуратный ремонт. Основная мебель остается, техника по договорённости. Окна во двор, поэтому тихо. Квартира теплая, не угловая....
    • 37 м²
    • 1-ком
    • 1/16 эт.
    • панельный
    14 000 000 Р
    Агент
    +7 (986) Показать номер
    Посмотреть контакты

    Не нашли подходящего объявления?

    Оставьте заявку, и наши риэлторы подберут квартиру в районе Москвы

    (0)