Россия, Москва, 3-й Автозаводский проезд, 3
24 300 000 Р 292 300 $ или 256 700

Информация о квартире

45 м2
Площадь
26 м2
Жилая
10 м2
Кухня
2
Комнаты
3
Этаж
16
Этажность

Дополнительная информация

Тип дома
монолит
Развернуть
Агент
+7 (916) 863-15-18
Начать чат с агентом

2-к кв. Москва 3-й Автозаводский проезд, 3 (45.0 м)

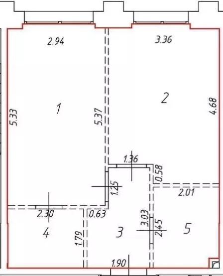
Id 61601. Просторная двухкомнатная квартира в современном доме у метроПредставляем к продаже светлую и уютную двухкомнатную квартиру площадью 45 м в престижном жилом комплексе Клубный дом Story . Объект расположен на 3 этаже 16-этажного монолитного дома, сданного в эксплуатацию в 2019 году. Квартира находится в отличном состоянии с качественным косметическим ремонтом и полностью готова к заселению. Вас ждут просторные комнаты 15 и 10 м, отдельная кухня 10 м с мебелью и совмещенный санузел.Этот дом создан для комфортной жизни. Высокие трехметровые потолки создают ощущение простора, а панорамные окна наполняют пространство светом. В подъезде работают два пассажирских и один грузовой лифт. Ваш автомобиль будет в безопасности в собственном подземном паркинге. Ключевое преимущество - феноменальная транспортная доступность: всего 2 минуты пешком до станции метро Автозаводская , что обеспечивает молниеносную связь с центром Москвы. В шаговой доступности также находится станция ЗИЛ .Район сочетает в себе динамику деловой Москвы и развитую инфраструктуру для жизни. Вокруг расположены новые благоустроенные набережные Москвы-реки, парки, фитнес-центры, кафе и супермаркеты. Идеальное расположение оценит как деловой человек, ценящий каждую минуту, так и семья с детьми. Квартира полностью меблирована, что открывает возможности для моментального переезда или выгодной сдачи в аренду премиальному сегменту арендаторов.Данное предложение - это редкая возможность приобрести современное жилье в монолитном доме в одном из самых перспективных районов столицы. Объект продается на свободных условиях. Цена:. Не упустите шанс стать владельцем квартиры, где каждая деталь продумана для вашего комфорта. Свяжитесь для организации приватного просмотра и сделайте шаг к жизни в новом ритме Москвы.

Читать полностью

    Для того, чтобы купить двухкомнатную квартиру по адресу: м. ЗИЛ, 3-й Автозаводский проезд, 3, позвоните по телефону +7 (916) 863-15-18. Торопитесь! Объявление №30094190274 о продаже двухкомнатной квартиры опубликовано Сегодня.

    Позвонить Написать
    24 300 000 Р292 300 $ или 256 700
    Агент
    +7 (916) 863-15-18
    Начать чат с агентом
    Похожие предложения
    1-к кв. Москва наб. Марка Шагала, 13 (39.5 м) - Фото 1
    1-к кв. Москва наб. Марка Шагала, 13 (39.5 м) - Фото 2
    1-комнатная квартира, общая площадь 39м², жилая 12м², кухня 13м²

    Арт.. Продаётся квартира формата Евро-2 в жилом комплексе Shagal .О квартире:Расположена на 25 этаже корпуса 13 (1 очередь).Кухня - 13,80м2.Комната - 12,8м2.С/у совмещенный - 4,8м2.Коридор - 4,7м2.Гардеробная - 3,4м2.Окружение:Принцип города 15 минут...
    • 39 м²
    • 1-ком
    • 25/25 эт.
    • монолит
    23 500 000 Р
    Агент
    +7 (985) Показать номер
    Посмотреть контакты
    1-к кв. Москва Автозаводская ул., 23С120 (34.4 м) - Фото 1
    1-к кв. Москва Автозаводская ул., 23С120 (34.4 м) - Фото 2
    1-комнатная квартира, общая площадь 34м², жилая 16м², кухня 9м²

    Id 388771. Продам просторную, уютную, квартиру. В квартире сделан ремонт, стены под покраску, окна ПВХ, на полу ламинат и плитка, санузел совмещенный, застеклённая просторная лоджия. Кухня полностью укомплектована техникой. Подъезд чистый, консьерж, видеонаблюдение....
    • 34 м²
    • 1-ком
    • 15/15 эт.
    24 000 000 Р
    Агент
    +7 (985) Показать номер
    Посмотреть контакты
    2-к кв. Москва Автозаводская ул., 23Бк2 (44.1 м) - Фото 1
    2-к кв. Москва Автозаводская ул., 23Бк2 (44.1 м) - Фото 2
    2-комнатная квартира, общая площадь 44м², жилая 24м², кухня 15м²

    Арт.ПРОДАЖА ПРОСТОРНОЙ КВАРТИРЫ С ДИЗАЙНЕРСКИМ РЕМОНТОМ И ПАНОРАМНЫМ ВИДОМ В ЖК ПАРК ЛЕГЕНД Уникальное предложение в одном из самых концептуальных и престижных жилых комплексов Москвы — ЖК Парк Легенд . Квартира с дизайнерским ремонтом на 24 этаже...
    • 44 м²
    • 2-ком
    • 24/24 эт.
    • монолит
    25 000 000 Р
    Агент
    +7 (916) Показать номер
    Посмотреть контакты
    1-к кв. Москва наб. Марка Шагала, 13 (45.0 м) - Фото 1
    1-к кв. Москва наб. Марка Шагала, 13 (45.0 м) - Фото 2
    1-комнатная квартира, общая площадь 45м², жилая 15м², кухня 15м²

    Продается 1 к кв, 45 кв м, в сданном доме,свободная планировка, без ремонта, в бетоне. кухня- 15,3спальня- 15,9. В доме имеется консьерж-сервис и смотровая площадка. 1 собственник, есть ипотека, без мат.капаУ застройщика дороже и нет в наличии таких форматов...
    • 45 м²
    • 1-ком
    • 7/17 эт.
    23 000 000 Р
    Агент
    +7 (917) Показать номер
    Посмотреть контакты
    2-комнатная квартира: Москва, набережная Марка Шагала, 15к1 (43.8 м) - Фото 1
    2-комнатная квартира: Москва, набережная Марка Шагала, 15к1 (43.8 м) - Фото 2
    2-комнатная квартира, общая площадь 43м², жилая 26м², кухня 11м²

    Арт.Линейная евродвушк с видом на рассвет и Москву-реку в ЖК «Шагал Представьте: каждое утро вы любуетесь первыми лучами солнышка над рекой прямо из своих окон — это не мечта, а реальность вашей новой квартиры - заряжаетесь на позитив ) Свободная...
    • 43 м²
    • 2-ком
    • 11/27 эт.
    23 990 000 Р
    Агент
    +7 (965) Показать номер
    Посмотреть контакты

    Не нашли подходящего объявления?

    Оставьте заявку, и наши риэлторы подберут квартиру в районе Москвы

    (0)