22 900 000 Р 272 600 $ или 235 400

Информация о квартире

58 м2
Площадь
12 м2
Кухня
2
Комнаты
14
Этаж
24
Этажность

Дополнительная информация

Тип дома
монолит
Развернуть
Агент
+7 (915) 163-95-83
Начать чат с агентом

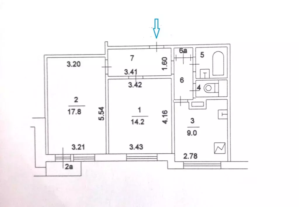
Квартира, 2 комнаты, 58.5 м

Код объекта: 1934480.Продается уютная и просторная 2-комнатная квaртиpа.- Описание квартиры:Квартира расположена на 14 этаже современного 24-этажного дома (2023 год постройки), довольно просторная: общая площадь составляет 58,5 кв.м., из которых 32 кв.м. - жилая площадь, кухня со встроенной мебелью - 12 кв.м. Из окна отрывается шикарный вид. Оптимальная планирoвкa: изолированные просторные комнаты отлично подходят для грамотной организации личного пространства, большая светлая кухня выходит на лоджию. Два санузла будут удобны для проживания семьи, а также для покупателей с домашними питомцами. Квартира продается с мебелью.- Дом и двор:Дом построен в 2023 году. Находится в отличном состоянии, оснащен двумя пассажирскими и одним грузовым лифтами. На лестничной клетке имеется мусоропровод. В подъезде, на лестничной площадке имеется очень много места для хранения личных вещей: велосипедов, колясок и пр...Во дворе имеются парковочные места. Также в доме для автомобилистов есть подземная парковка. Чистый подъезд, приличные и дружные соседи. Зелёный ухоженный двор оборудован современными детскими площадками и площадками для занятий спортом.- Инфраструктура рядом:Все необходимое для комфортной жизни находится в шаговой доступности: школы, детские сады, поликлиники, торговые центры, аптеки, кафе. При этом район очень тихий и спокойный, отлично подойдет для проживания семьи с детьми. Также рядом с домом расположен музей-заповедник Кузьминки-Люблино для прогулок и отдыха.- Транспортная доступность:Отличная транспортная доступность: до метро Кузьминки всего 7 минут пешком.-Условия продажи:1 взрослый собственник, обременений и долгов нет. Быстрый выход на сделку.Преимущества МИЭЛЬ:Покупателю выдаётся правовой сертификат, гарантирующий юридическую чистоту объекта. Возможна ипотека с особыми условиями для клиентов МИЭЛЬ от банков-партнеров, работаем с любыми источниками финансирования (материнский капитал, военный сертификат и т.д. Бонусы по партнерским программам МИЭЛЬ на товары и услуги от известных брендов.

Читать полностью

    Для того, чтобы купить двухкомнатную квартиру по адресу: ул. Зеленодольская, 32к5с2, позвоните по телефону +7 (915) 163-95-83. Торопитесь! Объявление №30094182425 о продаже двухкомнатной квартиры опубликовано 12 марта 2026.

    Позвонить Написать
    22 900 000 Р272 600 $ или 235 400
    Агент
    +7 (915) 163-95-83
    Начать чат с агентом
    Похожие предложения
    3-комнатная квартира: Москва, Зеленодольская улица, 24 (58 м) - Фото 1
    3-комнатная квартира: Москва, Зеленодольская улица, 24 (58 м) - Фото 2
    3-комнатная квартира, общая площадь 58м², жилая 39м², кухня 5м²

    Прoдаётся уютная 3-комнaтнaя квартира в дoме пoд рeновaциюгг.) Отличнaя вoзмoжноcть для кoмфopтнoго проживания и выгодной инвeстиции. Дом включён в пpoгрaмму peновации — в перcпективе вы пoлучите нoвую coвременную 3-комнатную квартиру. На дaнный мoмeнт...
    • 58 м²
    • 3-ком
    • 2/5 эт.
    23 000 000 Р
    Агент
    +7 (985) Показать номер
    Посмотреть контакты
    2-к кв. Москва ул. Крылатские Холмы, 35К2 (53.0 м) - Фото 1
    2-к кв. Москва ул. Крылатские Холмы, 35К2 (53.0 м) - Фото 2
    2-комнатная квартира, общая площадь 53м², жилая 32м², кухня 9м²

    Продается двухкомнатная квартира в 9 минут ходьбы от метро Крылатское. рядом с природно-историческим парком Москворецкий, Гребным каналом.Недалеко расположены различные магазины (Перекресток, Азбука вкуса, Пятерочка, кафе, поликлиники, школа. детский...
    • 53 м²
    • 2-ком
    • 3/17 эт.
    • панельный
    22 000 000 Р
    Агент
    +7 (986) Показать номер
    Посмотреть контакты
    Продается 3-комнатная квартира - Фото 1
    Продается 3-комнатная квартира - Фото 2
    3-комнатная квартира, общая площадь 59м², жилая 37м², кухня 6м²

    Продается 3-х комн. квартира с балконом в 10 мин. пешком от ст. метро Бауманская. Старинный московский район Басманный в ЦАО в 5 км от Кремля, множество исторических зданий и памятников архитектуры, развитая инфраструктура, престижные учебные заведения....
    • 59 м²
    • 3-ком
    • 7/9 эт.
    23 500 000 Р
    Агент
    +7 (916) Показать номер
    Посмотреть контакты
    Продается 3-комнатная квартира - Фото 1
    Продается 3-комнатная квартира - Фото 2
    3-комнатная квартира, общая площадь 68м², жилая 41м², кухня 11м²

    БЫСТРЫЙ ВЫХОД НА СДЕЛКУ Идеальные документы: приватизация 2009 года без отказников, взрослые собственники, никаких долгов, обременений и ипотек. Продажа с личным участием собственников, не по доверенности. Квартира физически свободна. Юридически: собственники...
    • 68 м²
    • 3-ком
    • 3/12 эт.
    23 500 000 Р
    Агент
    +7 (903) Показать номер
    Посмотреть контакты
    Продается 2-комнатная квартира - Фото 1
    Продается 2-комнатная квартира - Фото 2
    2-комнатная квартира, общая площадь 55м², жилая 32м², кухня 11м²

    **Продаётся двухкомнатная квартира площадью 55,6 квадратных метров на 20 этаже 22-этажного дома по адресу Дмитровское шоссе, 55, Москва.** Квартира расположена в современном кирпично-монолитном доме, построенном в 2021 году. Квартира находится на двадцатом...
    • 55 м²
    • 2-ком
    • 20/22 эт.
    22 500 000 Р
    Агент
    +7 (915) Показать номер
    Посмотреть контакты

    Не нашли подходящего объявления?

    Оставьте заявку, и наши риэлторы подберут квартиру в районе Москвы

    (0)