400 000 000 Р 5 080 000 $ или 4 352 700

Информация о квартире

171 м2
Площадь
84 м2
Жилая
15 м2
Кухня
3
Комнаты
7
Этаж
7
Этажность
Развернуть
Агент
+7 (986) 253-99-48
Начать чат с агентом

3-к кв. Москва Селезневская ул., 22 (171.0 м)

ID 65166: ЖК Дом на Селезневской. Предлагается к продаже эксклюзивный двухуровневый пентхаус в элитном клубном доме в районе Тверской.Интерьер квартиры создан с душой и для себя: в отделке использованы эффектные фактуры травертина, мрамора, на полу уложен дубовый паркет. Сдержанная гамма природных оттенков создают атмосферу тепла и гармонии - квартира невероятно изящная, уютная и наполнена естественным светом. Многие предметы мебели выполнены по индивидуальному заказу. Управлять всеми приборами в доме (в том числе дистанционно) помогает система умный дом . За комфортный микроклимат отвечают системы кондиционирования.На первом уровне расположена просторная гостиная с декоративным камином, выделенная кухня с выходом на террасу. Левая анфилада ведет в столовую, правая - в мастер-сьют, включающий гардеробную с окном, ванную комнату и собственно спальню с балконом. Круговая планировка квартиры, подчеркнута эффектными дверными порталами. Второй уровень отдан под рабочую зону, здесь расположен элегантный кабинет, дополнительная гардеробная зона, а также рабочая кухня и постирочная. В доме всего 24 квартиры. Презентабельные светлые лобби с охраной и зонами ожидания. На крыше дома расположена большая оборудованная терраса с шезлонгами, навесами и озеленением. На внутренней территории комплекса - благоустроенный дворик. В подземном паркинге предусмотрены 2 машиноместа, спуск на парковку на лифте возможен с любого этажа.Дом построен в окружении зеленых зон: за жилым комплексом расстилается уютный Антроповский сквер с прудом. В пешей доступности расположены Делегатский и Екатерининский парки, сад Эрмитаж и Миусский сквер. Вокруг - насыщенная инфраструктура центра столицы. ПРЯМОЙ ПРЕДСТАВИТЕЛЬ СОБСТВЕННИКА.ОПЕРАТИВНЫЙ ПОКАЗ. БЕЗ КОМИССИИ ДЛЯ ПОКУПАТЕЛЯ. Intermark Real Estate - участник ассоциации AREA. Брокер объекта Малиновская Виктория. Мы работаем в выходные и праздничные дни, будем рады вашим звонкам в любое время.

Читать полностью

    Для того, чтобы купить трехкомнатную квартиру по адресу: м. Новослободская, ул. Селезневская, 22, позвоните по телефону +7 (986) 253-99-48. Торопитесь! Объявление №30094144212 о продаже трехкомнатной квартиры опубликовано Вчера.

    Позвонить Написать
    400 000 000 Р5 080 000 $ или 4 352 700
    Агент
    +7 (986) 253-99-48
    Начать чат с агентом
    Похожие предложения
    3-комнатная квартира: Москва, Газетный переулок, 13с2 (139 м) - Фото 1
    3-комнатная квартира: Москва, Газетный переулок, 13с2 (139 м) - Фото 2
    3-комнатная квартира, общая площадь 139м², жилая 79м², кухня 47м²

    Эксклюзивные апартаменты в самом сердце Москвы — в нескольких минутах от Московского Кремля. Уникальные апартаменты премиального уровня в клубном доме, расположенном в историческом центре столицы. Локация, сочетающая престиж, приватность и шаговую доступность...
    • 139 м²
    • 3-ком
    • 3/5 эт.
    390 000 000 Р
    Агент
    +7 (926) Показать номер
    Посмотреть контакты
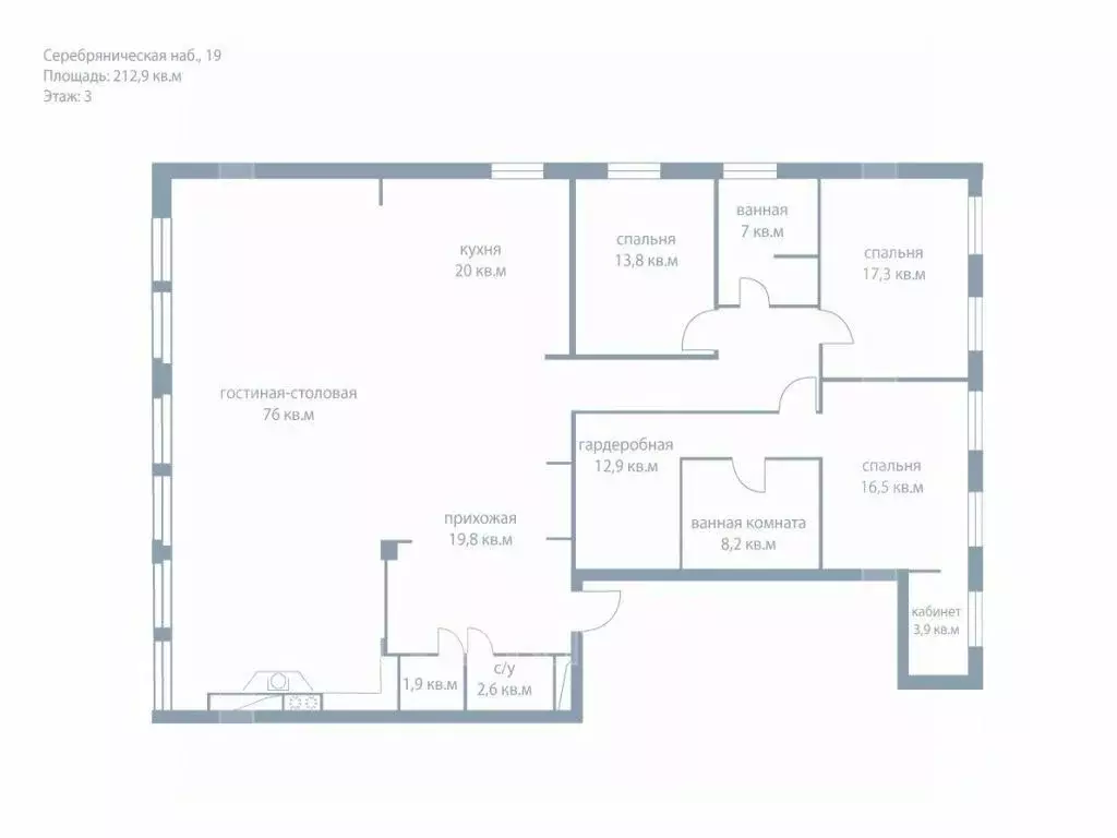
    5-к кв. Москва Серебряническая наб., 19 (212.9 м) - Фото 1
    5-к кв. Москва Серебряническая наб., 19 (212.9 м) - Фото 2
    5-комнатная квартира, общая площадь 212м², жилая 120м², кухня 24м²

    ID 58037: Эксклюзив. Только в Intermark. ЖК АртХаус. Стильная и полностью готовая к проживанию квартира в ЖК АртХаус . На 212.9 кв.м удалось разместить потрясающую студию с огромным панорамным окном и действующим камином с зонами гостиной, кухни и столовой,...
    • 212 м²
    • 5-ком
    • 3/6 эт.
    390 000 000 Р
    Агент
    +7 (916) Показать номер
    Посмотреть контакты
    3-к кв. Москва Селезневская ул., 22 (171.2 м) - Фото 1
    3-к кв. Москва Селезневская ул., 22 (171.2 м) - Фото 2
    3-комнатная квартира, общая площадь 171м², кухня 14м²

    Пентхаус на Селезневке. Пространство, в которое влюбляешься с первого взгляда В продаже — пентхаус с новой дизайнерской отделкой в премиальном жилом комплексе Дом на Селезневской, расположенном в тихой и по-настоящему камерной части Тверского района....
    • 171 м²
    • 3-ком
    • 7/7 эт.
    400 000 000 Р
    Агент
    +7 (915) Показать номер
    Посмотреть контакты
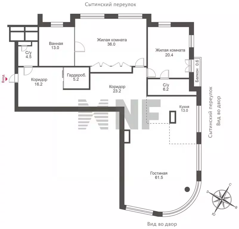
    3-к кв. Москва Богословский пер., 12А (198.9 м) - Фото 1
    3-к кв. Москва Богословский пер., 12А (198.9 м) - Фото 2
    3-комнатная квартира, общая площадь 198м²

    Лот: 22960. В продаже квартира с дизайнерской отделкой в клубном доме класса de luxe Сытинский на Патриарших.Планировка: гостиная-кухня, две спальни с собственными ванными, гардеробная комната, гостевой с\у.Гостевой холл декорирован мраморной мозаикой...
    • 198 м²
    • 3-ком
    • 2/8 эт.
    • монолит
    400 000 000 Р
    Агент
    +7 (933) Показать номер
    Посмотреть контакты
    3-комнатная квартира: Москва, Селезнёвская улица, 22 (171.2 м) - Фото 1
    3-комнатная квартира: Москва, Селезнёвская улица, 22 (171.2 м) - Фото 2
    3-комнатная квартира, общая площадь 171м²

    ID 24211 Предлагаем вам уникальную возможность приобрести 2-уровневый пентхаус с террасой в изысканном комплексе «Дом на Селезневской . Этот неизменно стильный и комфортабельный объект жилья станет идеальным местом для тех, кто ценит качество и элегантность.Основные...
    • 171 м²
    • 3-ком
    • 7/7 эт.
    400 000 000 Р
    Агент
    +7 (966) Показать номер
    Посмотреть контакты

    Не нашли подходящего объявления?

    Оставьте заявку, и наши риэлторы подберут квартиру в районе Москвы

    (0)