24 900 000 Р 310 400 $ или 270 700

Информация о квартире

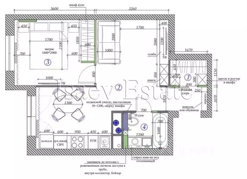
58 м2
Площадь
32 м2
Жилая
12 м2
Кухня
2
Комнаты
18
Этаж
29
Этажность
Развернуть
Агент
+7 (986) 323-93-94
Начать чат с агентом

2-к кв. Москва Аминьевское ш., 4Дк3литВ (58.0 м)

Вашему вниманию предлагается светлая двухкомнатная квартира в ЖК Вестердам Квартира видовая, просторный вид с 18 этажа. Квартира без отделки.Жилой комплекс Вестердам располагается в районе Очаково -Матвеевское престижного ЗАО Москвы. Комплекс качественно благоустроен, включает яблоневый сад с прогулочными дорожками и местами отдыха на участке площадью 4 гектара. Закрытый двор без машин, круглосуточная охрана.Развитая инфраструктура, на нижних этажах зданий располагаются кафе, магазины, аптеки, салоны красоты, wildberris, ozon и всё самое необходимое для комфортного проживания.Удобная транспортная доступность, до станции метро Аминьевская 5 минут пешком. Удобный выезд на Аминьвское шоссе, проспект Генерала Дорохова, Мичуринский и Кутузовский проспекты.Идеальные Документы Никаких обременений, зарегистрированные лица отсутствуют.Покажем в Любое Удобное для Вас время

Читать полностью

    Для того, чтобы купить двухкомнатную квартиру по адресу: м. Аминьевская, Аминьевское ш., 4Дк3литВ, позвоните по телефону +7 (986) 323-93-94. Торопитесь! Объявление №30094110939 о продаже двухкомнатной квартиры опубликовано 09 марта 2026.

    Позвонить Написать
    24 900 000 Р310 400 $ или 270 700
    Агент
    +7 (986) 323-93-94
    Начать чат с агентом
    Похожие предложения
    1-к кв. Москва Аминьевское ш., 4Дк3литВ (40.0 м) - Фото 1
    1-к кв. Москва Аминьевское ш., 4Дк3литВ (40.0 м) - Фото 2
    1-комнатная квартира, общая площадь 40м², жилая 20м², кухня 10м²

    ДОМ: ЖК Вестердам , современный комплекс, расположенный на своей закрытой охраняемой территории, с подземным паркингом и своей инфраструктурой.КВАРТИРА: уютная квартира с продуманным до мелочей планировочным решением:Просторная кухня, гостиная, изолированная...
    • 40 м²
    • 1-ком
    • 12/29 эт.
    • монолит
    25 000 000 Р
    Агент
    +7 (923) Показать номер
    Посмотреть контакты
    3-к кв. Москва Аминьевское ш., 4Дк1 (78.7 м) - Фото 1
    3-к кв. Москва Аминьевское ш., 4Дк1 (78.7 м) - Фото 2
    3-комнатная квартира, общая площадь 78м²

    Продается квартира, по адресу г. Москва, Аминьевское шоссе, дом 4Д, корпус 1, квартира 222, район Очаково-Матвеевское, удобное расположение относительно метро Аминьевская. Общая площадь составляет 78,7 м, в том числе кухня 11,3 м и жилая площадь 46,8...
    • 78 м²
    • 3-ком
    • 2/25 эт.
    25 978 870 Р
    Агент
    +7 (985) Показать номер
    Посмотреть контакты
    2-к кв. Москва Озерная ул., 1к1/3 (40.0 м) - Фото 1
    2-к кв. Москва Озерная ул., 1к1/3 (40.0 м) - Фото 2
    2-комнатная квартира, общая площадь 40м², кухня 4м²

    Евро-двушка с отделкой white box с панорамным видом на благоустраиваемый природный заказник Долина реки Очаковки .Квартира находится в. 30-этажном корпусе 3 ж/к бизнес-класса Левел МичуринскийПрекрасная транспортная доступность:- от 17 мин. пешком...
    • 40 м²
    • 2-ком
    • 29/30 эт.
    • монолит
    24 900 000 Р
    Агент
    +7 (916) Показать номер
    Посмотреть контакты
    2-к кв. Москва Большая Очаковская ул., 1 (64.08 м) - Фото 1
    2-к кв. Москва Большая Очаковская ул., 1 (64.08 м) - Фото 2
    2-комнатная квартира, общая площадь 64м², жилая 37м², кухня 10м²

    Код объекта: 2062247.Чистые документы готовые к сделке Звоните чтобы договориться о просмотре и узнать детали Двухкомнатная квартира на Большой Очаковской улице, расположена на 10-м этаже 25-этажного панельного дома, построенного в 2011 году. Общая площадь...
    • 64 м²
    • 2-ком
    • 10/25 эт.
    • панельный
    24 500 000 Р
    Агент
    +7 (915) Показать номер
    Посмотреть контакты
    1-к кв. Москва Озерная ул., 1к2/5 (35.0 м) - Фото 1
    1-к кв. Москва Озерная ул., 1к2/5 (35.0 м) - Фото 2
    1-комнатная квартира, общая площадь 35м², жилая 12м², кухня 14м²

    Код объекта: 2072507. Квартира с дизайнерским ремонтом в ЖК бизнес-класса LEVEL Мичуринский Ключи на руках — заезжайте после ремонта Продаётся светлая и просторная квартира площадью 35 м в 5 корпусе сданного ЖК LEVEL Мичуринский .Высота потолков —...
    • 35 м²
    • 1-ком
    • 5/37 эт.
    • монолит
    26 000 000 Р
    Агент
    +7 (986) Показать номер
    Посмотреть контакты

    Не нашли подходящего объявления?

    Оставьте заявку, и наши риэлторы подберут квартиру в районе Москвы

    (0)