25 000 000 Р 300 700 $ или 264 100

Информация о квартире

74 м2
Площадь
10 м2
Кухня
3
Комнаты
6
Этаж
17
Этажность

Дополнительная информация

Тип дома
панельный
Развернуть
Агент
+7 (989) 572-19-19
Начать чат с агентом

3-к кв. Москва ул. 800-летия Москвы, 32 (74.2 м)

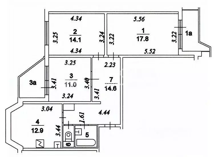
Предлагается просторная трёхкомнатная квартира площадью 74,2 м в районе Восточное Дегунино, по адресу: улица 800-летия Москвы, дом 32.Квартира расположена на 6 этаже 17-этажного дома серии П-44 — одной из самых надёжных и востребованных серий московских домов. Функциональная планировка включает три изолированные комнаты, просторную кухню 10,1 м, раздельный санузел и застеклённую лоджию, что делает квартиру идеальным вариантом для комфортной семейной жизни.Квартира находится в хорошем жилом состоянии. Покупателю остаётся кухонный гарнитур, часть мебели, что позволяет сразу заехать и жить без дополнительных вложений.Дом обслуживается управляющей компанией ЖСК Дегунино-3 , находится в ухоженном состоянии и оснащён пассажирским и грузовым лифтами, мусоропроводом и благоустроенной придомовой территорией. Рядом с домом предусмотрена удобная наземная парковка.Одним из ключевых преимуществ квартиры является отличная транспортная доступность. Рядом расположен МЦД-1 Бескудниково , откуда можно быстро добраться до центра Москвы. В пешей доступности также находятся станции метро Яхромская и Селигерская , а удобный выезд на Дмитровское шоссе позволяет комфортно передвигаться на автомобиле.Район отличается развитой инфраструктурой и большим количеством зелёных зон. В шаговой доступности расположены школы, детские сады, поликлиники, супермаркеты, кафе и торговые центры. Для прогулок и отдыха идеально подойдёт парк Северные Дубки — уютное зелёное пространство с прогулочными аллеями, детскими и спортивными площадками.Квартира полностью готова к продаже:один собственник, без обременений, свободная продажа. Быстрый выход на сделку.Это отличный вариант для семьи, которая ищет просторную квартиру в районе с развитой инфраструктурой, удобной транспортной доступностью и комфортной городской средой.

Читать полностью

    Для того, чтобы купить трехкомнатную квартиру по адресу: м. Яхромская, ул. 800-летия Москвы, 32, позвоните по телефону +7 (989) 572-19-19. Торопитесь! Объявление №30094065292 о продаже трехкомнатной квартиры опубликовано 06 марта 2026.

    Позвонить Написать
    25 000 000 Р300 700 $ или 264 100
    Агент
    +7 (989) 572-19-19
    Начать чат с агентом
    Похожие предложения
    3-к кв. Москва ул. 800-летия Москвы, 32 (74.2 м) - Фото 1
    3-к кв. Москва ул. 800-летия Москвы, 32 (74.2 м) - Фото 2
    3-комнатная квартира, общая площадь 74м², жилая 59м², кухня 10м²

    Арт.Одобряю ипотеку под 11.9 Звоните, буду рад ответить на вопросы ;)3-комнатная квартира 74,2 м с качественным ремонтом и мебелью, 6 этаж, рядом с МЦД и метроПродается просторная трёхкомнатная квартира с качественным ремонтом и полной меблировкой. Жилье...
    • 74 м²
    • 3-ком
    • 6/17 эт.
    • панельный
    25 000 000 Р
    Агент
    +7 (967) Показать номер
    Посмотреть контакты
    3-к кв. Москва Дмитровское ш., 90К1 (75.8 м) - Фото 1
    3-к кв. Москва Дмитровское ш., 90К1 (75.8 м) - Фото 2
    3-комнатная квартира, общая площадь 75м², жилая 42м², кухня 12м²

    Код объекта: 1956204.Отличное предложение Квартира для большой семьи с детьми.Просторная квартира с потенциалом. Прекрасный вид из окон и возможность сделать ремонт по своему вкусу — идеальное сочетание для воплощения ваших дизайнерских идей. Изолированные...
    • 75 м²
    • 3-ком
    • 2/17 эт.
    • панельный
    24 300 000 Р
    Агент
    +7 (915) Показать номер
    Посмотреть контакты
    2-к кв. Москва Бескудниковский бул., 50/1 (60.0 м) - Фото 1
    2-к кв. Москва Бескудниковский бул., 50/1 (60.0 м) - Фото 2
    2-комнатная квартира, общая площадь 60м², жилая 34м², кухня 11м²

    Эксклюзив Дом КЛУБНОГО типа Всего 10 этажей ПОДЗЕМНЫЙ паркинг Свежий ДИЗАЙНЕРСКИЙ ремонт в новом ЖК Никто не жил Новая квартира с ГАРДЕРОБКОЙ По документам: один взрослый собственник, никто не прописан, полная стоимость в договоре Звоните...
    • 60 м²
    • 2-ком
    • 2/10 эт.
    25 000 000 Р
    Агент
    +7 (989) Показать номер
    Посмотреть контакты
    Продается 3-комнатная квартира - Фото 1
    Продается 3-комнатная квартира - Фото 2
    3-комнатная квартира, общая площадь 80м², жилая 52м², кухня 10м²

    Код объекта: 1963617.Продается 3-х комнатная просторная квартира в новой Москве, район ЖК Переделкино Ближнее . Дом 2019 года. Общая площадь 80 кв. м. на 8 этаже 17-ти этажного дома серии П44Т. В подъезде 2 лифта (грузовой и пассажирский). Во всей квартире...
    • 80 м²
    • 3-ком
    • 8/17 эт.
    24 200 000 Р
    Агент
    +7 (499) Показать номер
    Посмотреть контакты
    Продается 3-комнатная квартира - Фото 1
    Продается 3-комнатная квартира - Фото 2
    3-комнатная квартира, общая площадь 79м², жилая 41м², кухня 11м²

    Светлая, просторная трехкомнатая квартира в престижном ЖК Скандинавия. Ремонт делали для себя, продажа в связи с переездом в другой город. В отделке использованы высококлассные отделочные материалы, большая кухня, комнаты 13, 16, 12 м, лоджия, два санузла...
    • 79 м²
    • 3-ком
    • 13/16 эт.
    24 500 000 Р
    Агент
    +7 (916) Показать номер
    Посмотреть контакты

    Не нашли подходящего объявления?

    Оставьте заявку, и наши риэлторы подберут квартиру в районе Москвы

    (0)