14 000 000 Р 179 900 $ или 154 300

Информация о квартире

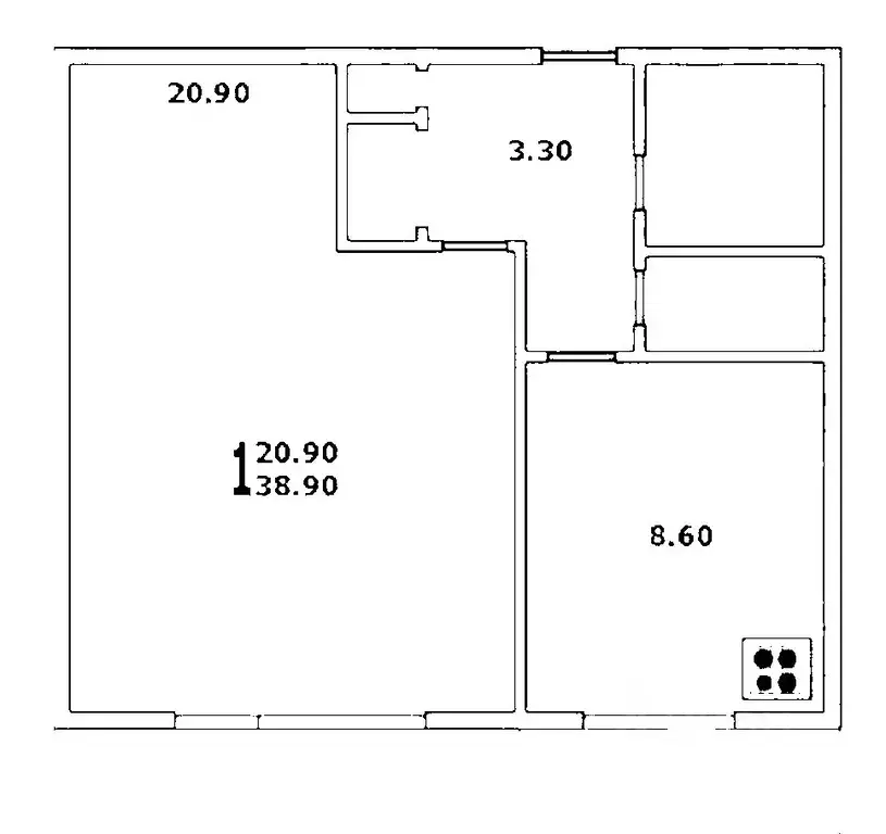
32 м2
Площадь
6 м2
Кухня
1
Комната
3
Этаж
9
Этажность

Дополнительная информация

Тип дома
панельный
Развернуть
Агент
+7 (916) 031-47-90
Начать чат с агентом

1-к кв. Москва Стройковская ул., 8 (32.7 м)

Продается уютная однокомнатная квартира, расположенная по адресу Россия, Москва, Стройковская улица, 8.. Общая площадь квартиры составляет 32.7 кв. м, кухня — 9 кв. м. Квартира находится на 3-м этаже 9-этажного панельного дома, построенного в 1968 году. Высота потолков — 2.64 метра. До станции метро Пролетарская всего 8 минут пешком.Квартира ждет новых владельцев, чтобы воплотить ваши идеи по ремонту и дизайну. Санузел совмещенный, окна выходят во двор, что обеспечит спокойствие и тишину.Дом в хорошем состоянии, после кап.ремонта, оборудован пассажирским лифтом и мусоропроводом. Для удобства жильцов предусмотрена наземная парковка. В шаговой доступности находятся школы, детские сады, клиники и магазины, что делает этот район удобным для жизни. Продажа квартиры прямая, без обременений. Ипотека возможна. Приглашаем вас на просмотр Звоните и записывайтесь, чтобы оценить все преимущества этой квартиры лично.

Читать полностью

    Для того, чтобы купить однокомнатную квартиру по адресу: м. Пролетарская, ул. Стройковская, 8, позвоните по телефону +7 (916) 031-47-90. Торопитесь! Объявление №30093978052 о продаже однокомнатной квартиры опубликовано 2 дня назад.

    Позвонить Написать
    14 000 000 Р179 900 $ или 154 300
    Агент
    +7 (916) 031-47-90
    Начать чат с агентом
    Похожие предложения
    1-к кв. Москва Стройковская ул., 6 (32.7 м) - Фото 1
    1-к кв. Москва Стройковская ул., 6 (32.7 м) - Фото 2
    1-комнатная квартира, общая площадь 32м², жилая 18м², кухня 6м²

    Продаётся однокомнатная квартира в шаговой доступности от метро Пролетарская. Квартира под ремонт, на момент передачи покупателю будет полностью освобождена от остатков мебели. Общая площадь квартиры 32,7 кв. м, комната 18,7 кв. м, площадь кухни 6,7 кв....
    • 32 м²
    • 1-ком
    • 1/9 эт.
    • панельный
    14 000 000 Р
    Агент
    +7 (916) Показать номер
    Посмотреть контакты
    1-к кв. Москва ул. Талалихина, 3 (39.0 м) - Фото 1
    1-к кв. Москва ул. Талалихина, 3 (39.0 м) - Фото 2
    1-комнатная квартира, общая площадь 39м², жилая 20м², кухня 9м²

    Вашему вниманию предлагается квартира с удобной планировкой, большая комната, сан.узел раздельный. Дом хорошо расположен, вокруг просторные зеленые дворы с детскими площадками, местами для отдыха. Район с развитой инфраструктурой, рядом все необходимые...
    • 39 м²
    • 1-ком
    • 1/16 эт.
    • панельный
    14 300 000 Р
    Агент
    +7 (916) Показать номер
    Посмотреть контакты
    1-комнатная квартира: Москва, Малая Калитниковская улица, 16 (31 м) - Фото 1
    1-комнатная квартира: Москва, Малая Калитниковская улица, 16 (31 м) - Фото 2
    1-комнатная квартира, общая площадь 31м², жилая 18м², кухня 6м²

    ДОМ: Кирпичный дом девятиэтажный дом расположен в тихом центре Москвы, в 14-20 минутах пешком от нескольких станций метро («Пролетарская , «Волгоградский проспект и др.). В доме 3 подъезда, пассажирский лифт, железобетонные перекрытия.КВАРТИРА: С дизайнерским...
    • 31 м²
    • 1-ком
    • 1/9 эт.
    13 900 000 Р
    Агент
    +7 (906) Показать номер
    Посмотреть контакты
    1-к кв. Москва Малая Калитниковская ул., 16 (31.0 м) - Фото 1
    1-к кв. Москва Малая Калитниковская ул., 16 (31.0 м) - Фото 2
    1-комнатная квартира, общая площадь 31м², жилая 18м², кухня 6м²

    Код объекта: 2062122.Уникальное предложение в Москве: продаётся однокомнатная квартира с дизайнерским ремонтом на Малой Калитниковской улице, 16.Эта квартира — идеальное решение для тех, кто ищет комфортное жильё в спокойном районе. Квартира расположена...
    • 31 м²
    • 1-ком
    • 1/9 эт.
    • кирпичный
    13 900 000 Р
    Агент
    +7 (985) Показать номер
    Посмотреть контакты
    1-комнатная квартира: Москва, улица Талалихина, 3 (39 м) - Фото 1
    1-комнатная квартира: Москва, улица Талалихина, 3 (39 м) - Фото 2
    1-комнатная квартира, общая площадь 39м², жилая 20м², кухня 9м²

    Вашему вниманию предлагается квартира с удобной планировкой, большая комната, сан.узел раздельный. Дом хорошо расположен, вокруг просторные зеленые дворы с детскими площадками, местами для отдыха. Район с развитой инфраструктурой, рядом все необходимые...
    • 39 м²
    • 1-ком
    • 1/16 эт.
    14 500 000 Р
    Агент
    +7 (966) Показать номер
    Посмотреть контакты

    Не нашли подходящего объявления?

    Оставьте заявку, и наши риэлторы подберут квартиру в районе Москвы

    (0)